Alexandra Court, Empire Way, Wembley, Middlesex HA9
By Hilton & Fox
£ 274,950
Reviews
2 out of 5 stars
Hilton & Fox says ..
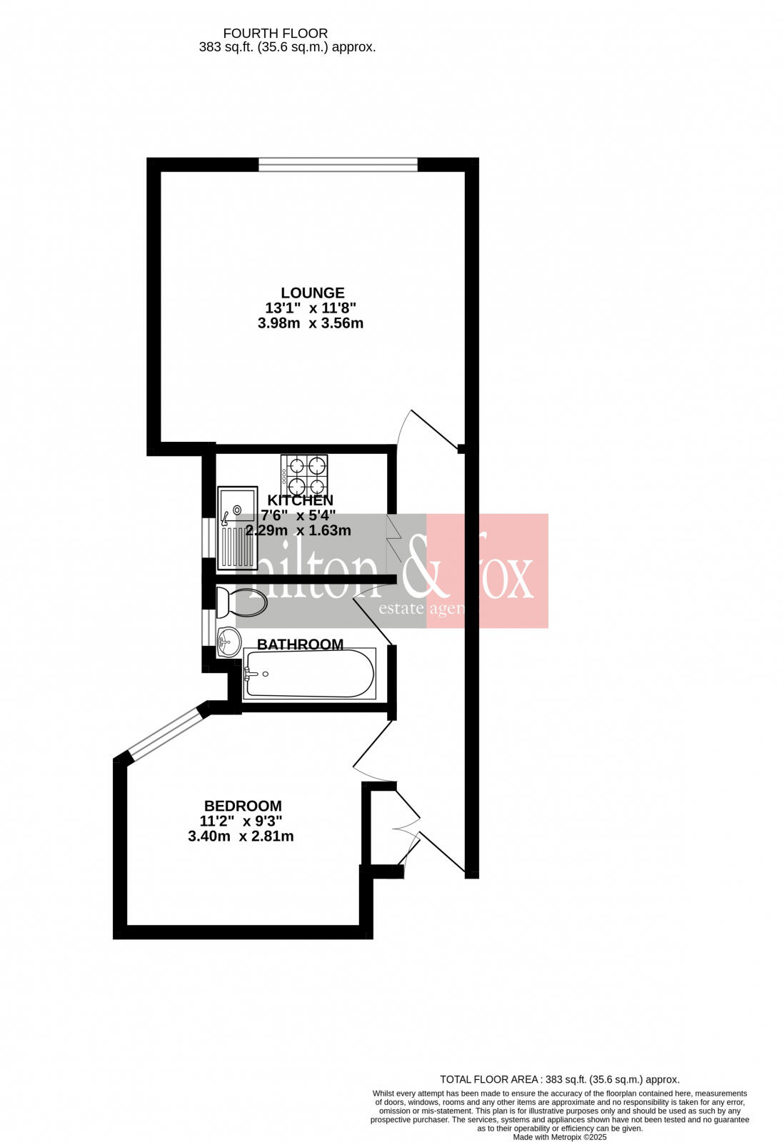
Offered with no further chain and located within moments of the World-Famous Wembley Stadium is this One Bedroom Top Floor Flat. Internally the property could benefit from some updating but has a large lounge, double bedroom, Family kitchen and Bathroom. Externally the property is located just op...
Property Oracle says ..
The property is a two-bedroom apartment located in Wembley, London. It is close to Wembley Stadium and has good transport links. However, the property is in need of modernisation, as seen in the photos. There is no garden. The list price seems reasonable considering the location and transport links, but the property will require significant investment to bring it up to a modern standard.
Therefore, we give this property 4 / 10. *Disclaimer: This is our option and does constitute a recommendation or financial advice. Do your own research. *
- Price
- 6
- Condition
- 3
- Location
- 7
- Land
- 1
- Bedrooms
- 2
- Bathrooms
- 0
- Sqft (est)
- 383.00
The heatmap indicates the level of crime in the area. The color of the heatmap indicates the crime severity and recency.
Metrics Year-on-Year
- Average area value
- 567,500.00 £Increased by 23.85 %
- Est sale value
- 412,874.00 £Increased by 96.72 %
- Average area rental value
- 2,508.00 £/moIncreased by 2.66 %
- Est letting value
- 1,532.00 £/moIncreased by 100.00 %
- Est rental Yield
- 5.30 %Decreased by 17.19 %
- Crime Rate
- 27.00 %Unchanged by 0.00 %
Agent Activity
Hilton & Fox created the listing.
Nearby Schools
| Name | Type | Ofsted | Distance |
|---|---|---|---|
| St Christopher'S Prep School | Other Independent School | 0.45 KM | |
| New Level Academy | Other Independent School | Requires improvement | 0.64 KM |
| St Joseph Rc Junior School | Voluntary Aided School | Outstanding | 0.68 KM |
| St Joseph'S Rc Infant School | Voluntary Aided School | Outstanding | 0.70 KM |
| Ark Elvin Academy | Academy Sponsor Led | Good | 0.84 KM |
Images
Nearby Streets
| Name | Average Price | Average Sqft | Distance |
|---|---|---|---|
| Wembley Triangle | £ 0 | 0 | 0.00 KM |
| Kingswood Road | £ 0 | 0 | 0.00 KM |
| Public Right of Way 54 | £ 225,000 | 0 | 0.00 KM |
| Olympic Steps | £ 0 | 0 | 0.00 KM |
| Marley Street | £ 0 | 0 | 0.00 KM |
Nearby Transport
| Name | NLC | TLC | Distance |
|---|---|---|---|
| Wembley Stadium | 1509 | WCX | 0.38 KM |
| Wembley Central | 1423 | WMB | 1.33 KM |
| Stonebridge Park | 1454 | SBP | 1.89 KM |
| North Wembley | 1422 | NWB | 2.08 KM |
| South Kenton | 1453 | SOK | 2.86 KM |
Nearby Listings
| Address | Price | Type | Score | Distance |
|---|---|---|---|---|
| Alexandra Court, Empire Way, Wembley, Middlesex HA9 | £ 274,950 | BUY | 4 / 10 | 0.00 KM |
| Alexandra Court, Empire Way, Wembley, Middlesex HA9 | £ 209,950 | BUY | 4 / 10 | 0.00 KM |
| 100 Alexandra Court, Empire Way, Wembley, Middlesex, HA9 0QZ | £ 195,000 | BUY | 4 / 10 | 0.01 KM |
| Empire Way, Wembley | £ 249,950 | BUY | Unknown | 0.01 KM |
| Alexandra Court, Empire Way, Wembley, Middlesex, HA9 | £ 315,000 | BUY | 5 / 10 | 0.03 KM |
Nearby Properties
| Address | Price | Distance |
|---|---|---|
| 55 Manor Drive | £ 328,000 | 0.14 KM |
| 11 Manor Drive | £ 575,000 | 0.14 KM |
| 45 Manor Drive | £ 330,000 | 0.14 KM |
| 47 Manor Drive | £ 284,000 | 0.14 KM |
| 5 Manor Drive | £ 290,000 | 0.14 KM |