Monochrome Homes says ..
We are delighted to present this three-bedroom semi-detached house, ideally situated on a quiet and sought-after residential road in Caterham on the Hill. This property offers a fantastic opportunity for buyers looking to create their dream home.
Property Oracle says ..
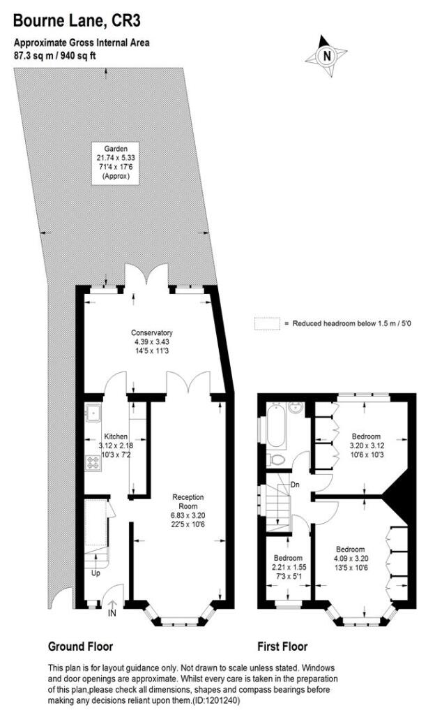
This three-bedroom semi-detached house in Caterham, Surrey is located on Bourne Lane, a residential street with a mix of property types. The property benefits from being within a reasonable distance of several railway stations, providing convenient access to commuting routes. There are also a number of schools nearby, including several rated as “Good” by Ofsted. The property itself appears to be in generally good condition, although some minor cosmetic updates might enhance its appeal. The garden is relatively small, but provides some outdoor space. While the property is listed at £450,000, the average price for similar properties in the area is significantly higher, suggesting that the asking price might represent good value for money, especially given the current market conditions.
Therefore, we give this property 6 / 10. *Disclaimer: This is our option and does constitute a recommendation or financial advice. Do your own research. *
- Price
- 8
- Condition
- 7
- Location
- 8
- Land
- 4
- Bedrooms
- 3
- Bathrooms
- 1
The heatmap indicates the level of crime in the area. The color of the heatmap indicates the crime severity and recency.
Metrics Year-on-Year
- Average area value
- 642,000.00 £Increased by 28.16 %
- Average area rental value
- 1,300.00 £/moDecreased by 39.05 %
- Est rental Yield
- 2.43 %Decreased by 52.45 %
- Crime Rate
- 6.00 %Unchanged by 0.00 %
Agent Activity
Monochrome Homes created the listing.
Nearby Schools
| Name | Type | Ofsted | Distance |
|---|---|---|---|
| Oneschool Global Kenley Campus | Other Independent School | 0.77 KM | |
| Hillcroft Primary School | Academy Converter | Good | 0.88 KM |
| Audley Primary School | Community School | Good | 0.94 KM |
| Essendene Lodge School | Other Independent School | 0.99 KM | |
| Caterham Sure Start Children'S Centre | Children's Centre Linked Site | 1.01 KM |
Images
Nearby Streets
| Name | Average Price | Average Sqft | Distance |
|---|---|---|---|
| Eaton Place | £ 0 | 0 | 0.00 KM |
| Merlewood Close | £ 0 | 0 | 0.00 KM |
| Avenue Road | £ 475,000 | 0 | 0.00 KM |
| Town End Close | £ 550,000 | 0 | 0.00 KM |
| Clifton Close | £ 0 | 0 | 0.00 KM |
Nearby Transport
| Name | NLC | TLC | Distance |
|---|---|---|---|
| Caterham | 5351 | CAT | 2.23 KM |
| Whyteleafe South | 5439 | WHS | 2.27 KM |
| Whyteleafe | 5396 | WHY | 2.38 KM |
| Upper Warlingham | 5391 | UWL | 2.51 KM |
| Kenley | 5419 | KLY | 3.54 KM |
Nearby Listings
| Address | Price | Type | Score | Distance |
|---|---|---|---|---|
| Bourne Lane, Caterham | £ 450,000 | BUY | 6 / 10 | 0.00 KM |
| Bourne Lane, Caterham on the Hill | £ 550,000 | BUY | 7 / 10 | 0.00 KM |
| Bourne Lane, Caterham, CR3 | £ 525,000 | BUY | 7 / 10 | 0.02 KM |
| Bourne Lane, Caterham | £ 425,000 | BUY | 6 / 10 | 0.04 KM |
| Foxon Lane, Caterham, CR3 | £ 500,000 | BUY | 7 / 10 | 0.09 KM |
Nearby Properties
| Address | Price | Distance |
|---|---|---|
| 11 Bourne Lane | £ 465,500 | 0.01 KM |
| 6 Bourne Lane | £ 542,000 | 0.01 KM |
| 15 Bourne Lane | £ 222,000 | 0.01 KM |
| 4 Bourne Lane | £ 310,000 | 0.01 KM |
| 10 Bourne Lane | £ 345,000 | 0.01 KM |