Yopa says ..
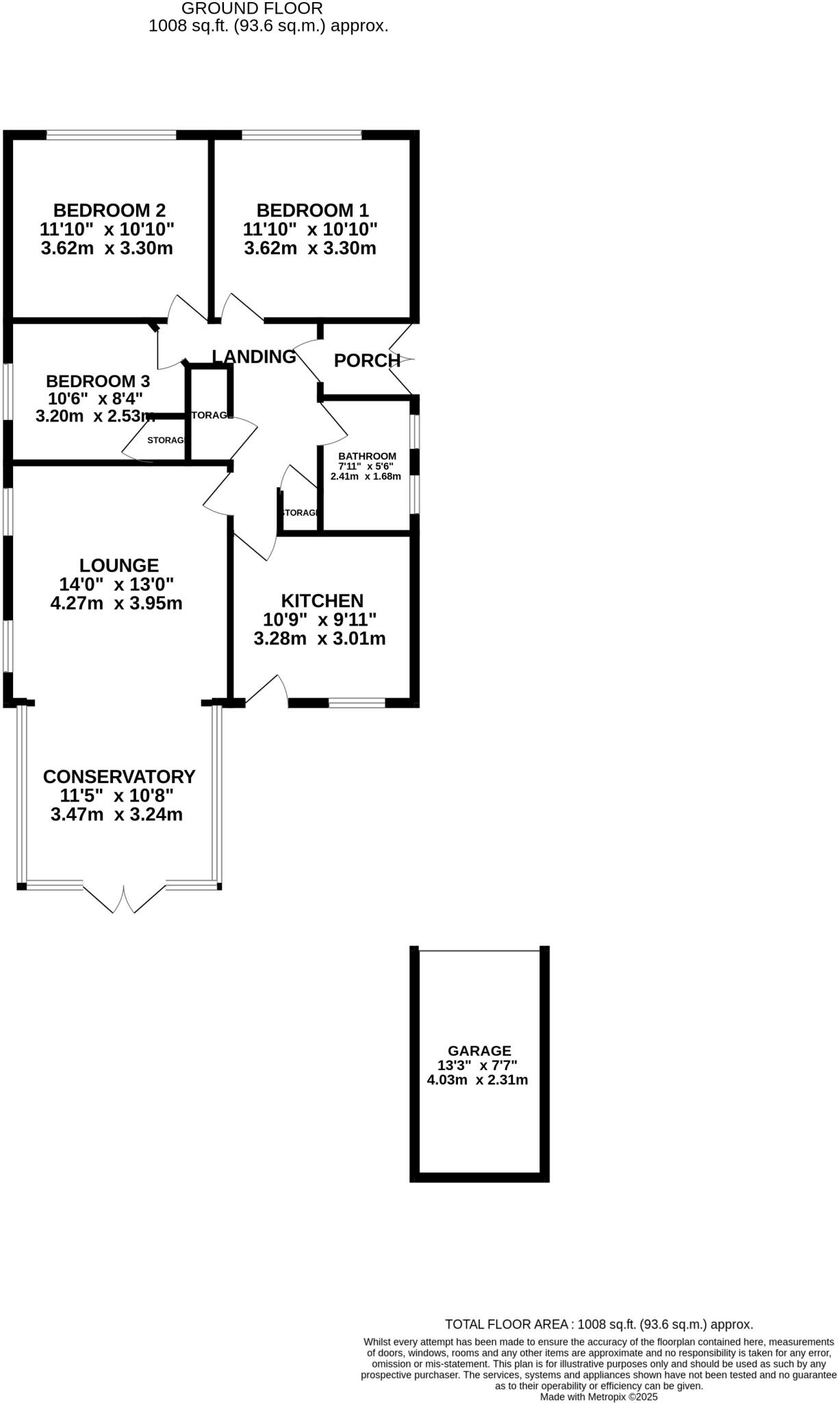
A spacious 3-bed detached bungalow on Furzehatt Park Road, Plymstock. Features a lounge, conservatory, kitchen with garden access, modern shower room, multi-car driveway, garage & a stunning south-west facing garden. Offered with no onward chain.
Property Oracle says ..
Therefore, we give this property 7 / 10. *Disclaimer: This is our option and does constitute a recommendation or financial advice. Do your own research. *
- Price
- 7
- Condition
- 7
- Location
- 8
- Land
- 6
- Bedrooms
- 3
- Bathrooms
- 1
- Sqft (est)
- 900.35
The heatmap indicates the level of crime in the area. The color of the heatmap indicates the crime severity and recency.
Metrics Year-on-Year
- Average area value
- 311,919.00 £Decreased by 6.41 %
- Est sale value
- 419,563.10 £Increased by 32.76 %
- Average area rental value
- 1,169.00 £/moIncreased by 9.05 %
- Est letting value
- 900.35 £/moUnchanged by 0.00 %
- Est rental Yield
- 4.50 %Increased by 16.58 %
- Crime Rate
- 14.00 %Unchanged by 0.00 %
from 333,288.00 £
from 316,022.85 £
from 1,072.00 £/mo
from 900.35 £/mo
from 3.86 %
from 14.00 %
Agent Activity
Yopa created the listing.
Nearby Schools
| Name | Type | Ofsted | Distance |
|---|---|---|---|
| Coombe Dean School | Academy Converter | Requires improvement | 0.22 KM |
| Goosewell Primary Academy | Academy Sponsor Led | Good | 0.76 KM |
| Plymstock Children'S Centre | Children's Centre | 0.85 KM | |
| Elburton Primary School | Academy Converter | Outstanding | 1.29 KM |
| Plymstock School | Academy Converter | Good | 1.39 KM |
Images
Nearby Streets
| Name | Average Price | Average Sqft | Distance |
|---|---|---|---|
| Springfield Lane | £ 0 | 0 | 0.00 KM |
| Woodlands | £ 0 | 0 | 0.00 KM |
| Church Road | £ 327,500 | 0 | 0.00 KM |
| Paddock Close | £ 0 | 0 | 0.00 KM |
| Arcadia | £ 0 | 0 | 0.00 KM |
Nearby Transport
| Name | NLC | TLC | Distance |
|---|---|---|---|
| Plymouth | 3580 | PLY | 7.73 KM |
Nearby Listings
| Address | Price | Type | Score | Distance |
|---|---|---|---|---|
| Furzehatt Park Road, Plymouth, PL9 | £ 400,000 | BUY | 7 / 10 | 0.00 KM |
| Furzehatt Rise, Elburton, Plymouth. | £ 460,000 | BUY | Unknown | 0.04 KM |
| Fletcher Way, Plymouth, PL9 | £ 385,000 | BUY | 5 / 10 | 0.11 KM |
| Fletcher Way, Plymstock, Plymouth. | £ 365,000 | BUY | Unknown | 0.11 KM |
| Springfield Road, Plymstock | £ 450,000 | BUY | 7 / 10 | 0.12 KM |
Nearby Properties
| Address | Price | Distance |
|---|---|---|
| 9 Furzehatt Park Road | £ 397,000 | 0.01 KM |
| 14 Furzehatt Park Road | £ 240,000 | 0.01 KM |
| 20 Furzehatt Park Road | £ 305,000 | 0.01 KM |
| 13 Furzehatt Park Road | £ 222,000 | 0.01 KM |
| 17 Furzehatt Park Road | £ 430,000 | 0.01 KM |