Phillips Square, Honiton, Devon, EX14
By Greenslade Taylor Hunt
£ 212,500
Reviews
3 out of 5 stars
Greenslade Taylor Hunt says ..
A three bedroom mid terrace property just a short walk from Honiton town centre. NO CHAIN.
Property Oracle says ..
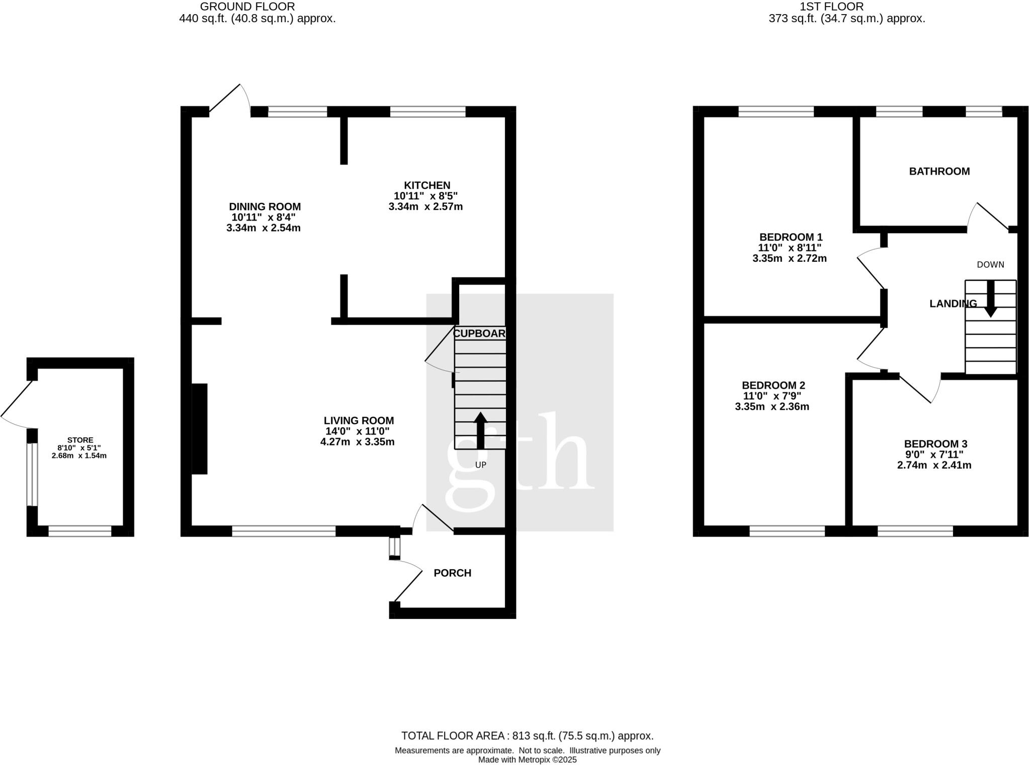
This is a 3-bedroom terraced house in Honiton, Devon. The property is located close to local schools and transportation links. The property is in need of some modernisation, but is priced reasonably for the area. It has front and rear gardens, with a shed in the rear garden.
Therefore, we give this property 6 / 10. *Disclaimer: This is our option and does constitute a recommendation or financial advice. Do your own research. *
- Price
- 7
- Condition
- 5
- Location
- 6
- Land
- 6
- Bedrooms
- 3
- Bathrooms
- 1
- Sqft (est)
- 813.00
The heatmap indicates the level of crime in the area. The color of the heatmap indicates the crime severity and recency.
Metrics Year-on-Year
- Average area value
- 345,000.00 £Increased by 13.42 %
- Est sale value
- 194,307.00 £Decreased by 16.14 %
- Average area rental value
- 1,213.00 £/moIncreased by 47.75 %
- Est letting value
- 0.00 £/mo
- Est rental Yield
- 4.22 %Increased by 30.25 %
- Crime Rate
- 28.00 %Unchanged by 0.00 %
Agent Activity
Greenslade Taylor Hunt created the listing.
Nearby Schools
| Name | Type | Ofsted | Distance |
|---|---|---|---|
| Honiton Community College | Academy Converter | Good | 0.50 KM |
| Honiton Primary School | Community School | Requires improvement | 0.83 KM |
| Littletown Primary Academy | Academy Converter | Good | 1.16 KM |
| Honiton & District Children'S Centre | Children's Centre | 1.19 KM | |
| Awliscombe Church Of England Primary School | Voluntary Aided School | Good | 3.83 KM |
Images
Nearby Streets
| Name | Average Price | Average Sqft | Distance |
|---|---|---|---|
| Lee Close | £ 0 | 0 | 0.00 KM |
| Town Farm Close | £ 0 | 0 | 0.00 KM |
| Bonds Cottages | £ 0 | 0 | 0.00 KM |
| A375 | £ 575,000 | 0 | 0.00 KM |
| Ridgeleigh Court | £ 111,250 | 0 | 0.00 KM |
Nearby Transport
| Name | NLC | TLC | Distance |
|---|---|---|---|
| Honiton | 5717 | HON | 1.08 KM |
Nearby Listings
| Address | Price | Type | Score | Distance |
|---|---|---|---|---|
| Phillips Square, Honiton, Devon, EX14 | £ 212,500 | BUY | 6 / 10 | 0.00 KM |
| West View Terrace, Honiton | £ 299,950 | BUY | 6 / 10 | 0.05 KM |
| Dowell Street, Honiton | £ 300,000 | BUY | Unknown | 0.08 KM |
| Riverside Close, Honiton, Devon, EX14 | £ 410,000 | BUY | Unknown | 0.14 KM |
| Lee Close, Honiton, Devon, EX14 | £ 155,000 | BUY | Unknown | 0.16 KM |
Nearby Properties
| Address | Price | Distance |
|---|---|---|
| 8 Phillips Square | £ 139,000 | 0.02 KM |
| 2 Phillips Square | £ 210,000 | 0.03 KM |
| 5 Phillips Square | £ 114,500 | 0.03 KM |
| 16 Northcote Lane | £ 250,000 | 0.05 KM |
| Misbourne Lodge | £ 328,000 | 0.10 KM |