The Walled Garden, Woolley, Wakefield
By Richard Kendall
£ 795,000
Reviews
3 out of 5 stars
Richard Kendall says ..
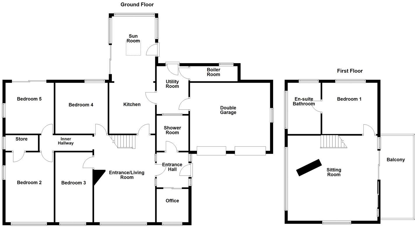
An extended and INDIVIDUALLY DESIGNED five bedroom detached home bosting WELL PROPORTIONED accommodation, generous driveway and ATTRACTIVE gardens. VIRTUAL TOUR AVAILABLE. Awaiting EPC rating.
Property Oracle says ..
The property is located in Woolley, Wakefield, West Yorkshire. Based on the provided information and images, the property appears to be in good condition, with a modern kitchen and updated bathrooms. The property also benefits from a sizable garden. Considering the average price per square foot in the area is £304, and this property is listed at £795,000 with 2,400 sqft, the price per sqft is £331.25. While this is slightly higher than the average, the property’s condition, size, and the presence of a garden justify the higher price per square foot compared to other properties in the area. The nearby properties for sale show a range of prices, with some significantly higher than the average, suggesting that the list price is within the range of comparable properties in the desirable Woolley location. The proximity to good schools and transport links further supports a higher than average price. The images show a well-maintained property with a good-sized garden, which are desirable features in this market.
Therefore, we give this property 7 / 10. *Disclaimer: This is our option and does constitute a recommendation or financial advice. Do your own research. *
- Price
- 7
- Condition
- 8
- Location
- 9
- Land
- 7
- Bedrooms
- 5
- Bathrooms
- 2
- Sqft (est)
- 2,400.00
The heatmap indicates the level of crime in the area. The color of the heatmap indicates the crime severity and recency.
Metrics Year-on-Year
- Average area value
- 266,869.00 £Decreased by 21.28 %
- Est sale value
- 794,400.00 £Increased by 8.52 %
- Average area rental value
- 1,150.00 £/moIncreased by 29.21 %
- Est letting value
- 2,400.00 £/mo
- Est rental Yield
- 5.17 %Increased by 64.13 %
- Crime Rate
- 7.00 %Unchanged by 0.00 %
Agent Activity
Richard Kendall created the listing.
Nearby Schools
| Name | Type | Ofsted | Distance |
|---|---|---|---|
| Crigglestone Dane Royd Junior And Infant School | Community School | Outstanding | 2.15 KM |
| Pennine Camphill Community | Special Post 16 Institution | Requires improvement | 2.23 KM |
| Dove School | Other Independent Special School | Good | 2.73 KM |
| Wellgate Primary School | Academy Converter | Good | 2.88 KM |
| Hendal Primary School | Community School | Good | 3.21 KM |
Images
Nearby Streets
| Name | Average Price | Average Sqft | Distance |
|---|---|---|---|
| The Walled Garden | £ 0 | 0 | 0.00 KM |
| Seckar Lane | £ 350,000 | 0 | 0.00 KM |
Nearby Transport
| Name | NLC | TLC | Distance |
|---|---|---|---|
| Darton | 8420 | DRT | 3.60 KM |
| Sandal And Agbrigg | 8358 | SNA | 6.42 KM |
| Wakefield Kirkgate | 8584 | WKK | 7.65 KM |
| Barnsley | 6774 | BNY | 7.65 KM |
| Wakefield Westgate | 8591 | WKF | 7.72 KM |
Nearby Listings
| Address | Price | Type | Score | Distance |
|---|---|---|---|---|
| The Walled Garden, Woolley, Wakefield | £ 795,000 | BUY | 7 / 10 | 0.00 KM |
| Old Mount Farm, Woolley, Wakefield, WF4 2LD | £ 340,000 | BUY | 6 / 10 | 0.25 KM |
| Old Mount Farm, Woolley, Wakefield | £ 625,000 | BUY | Unknown | 0.27 KM |
| The Top Floor Apartment, Old Mount Farm, Woolley, WF4 | £ 375,000 | BUY | 6 / 10 | 0.31 KM |
| The Green, Woolley, Wakefield | £ 575,000 | BUY | 6 / 10 | 0.35 KM |
Nearby Properties
| Address | Price | Distance |
|---|---|---|
| 20 Old Mount Farm | £ 315,000 | 0.27 KM |
| 25 Old Mount Farm | £ 612,500 | 0.27 KM |
| 16 Old Mount Farm | £ 229,950 | 0.27 KM |
| 7 Old Mount Farm | £ 225,000 | 0.27 KM |
| 26 Old Mount Farm | £ 715,000 | 0.27 KM |