West Parade, West End, Lincoln
By Starkey & Brown
£ 225,000
Reviews
2 out of 5 stars
Starkey & Brown says ..
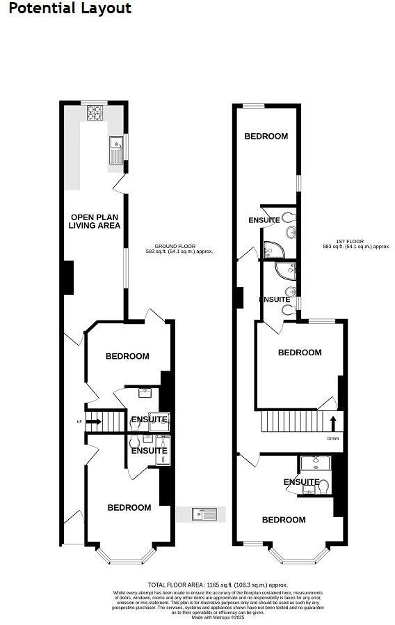
5 BED HMO! Located in the sought after west end area of Lincoln, within walking distance of The University of Lincoln and the city centre is this five bedroom house of multiple occupancy on West Parade. The property currently generates an income of £21,840 (a gross return of 9.7%) and offer...
Property Oracle says ..
This property is a five bedroom, two bathroom house located on West Parade in Lincoln. The property is within walking distance of Lincoln city centre and Lincoln University. Based on the images provided the property appears to be in fair condition, however some modernisation may be required. The property does not appear to have a garden. The list price of £225,000 seems reasonable considering the location and size of the property, but further investigation into the property’s condition would be needed to confirm this.
Therefore, we give this property 5 / 10. *Disclaimer: This is our option and does constitute a recommendation or financial advice. Do your own research. *
- Price
- 7
- Condition
- 6
- Location
- 8
- Land
- 1
- Bedrooms
- 5
- Bathrooms
- 2
- Sqft (est)
- 1,165.73
The heatmap indicates the level of crime in the area. The color of the heatmap indicates the crime severity and recency.
Metrics Year-on-Year
- Average area value
- 309,000.00 £Increased by 24.83 %
- Est sale value
- 465,126.27 £Increased by 112.23 %
- Average area rental value
- 761.00 £/moIncreased by 25.79 %
- Est letting value
- 0.00 £/mo
- Est rental Yield
- 2.96 %Increased by 1.02 %
- Crime Rate
- 9.00 %Unchanged by 0.00 %
Agent Activity
Starkey & Brown created the listing.
Nearby Schools
| Name | Type | Ofsted | Distance |
|---|---|---|---|
| Lincolnshire Secure Unit | Secure Units | 0.26 KM | |
| The St Faith And St Martin Church Of England Junior School, Lincoln | Voluntary Controlled School | Good | 0.33 KM |
| University Of Lincoln | Higher Education Institutions | Good | 0.46 KM |
| Carholme Children'S Centre | Children's Centre Linked Site | 0.74 KM | |
| Westgate Academy | Academy Converter | Good | 0.80 KM |
Images
Nearby Streets
| Name | Average Price | Average Sqft | Distance |
|---|---|---|---|
| Belle Vue Terrace | £ 181,863 | 0 | 0.00 KM |
| Hampton Court | £ 0 | 0 | 0.00 KM |
| Orchard Street | £ 112,500 | 0 | 0.00 KM |
| Wigford Way | £ 0 | 0 | 0.00 KM |
| Guildhall Street | £ 0 | 0 | 0.00 KM |
Nearby Transport
| Name | NLC | TLC | Distance |
|---|---|---|---|
| Lincoln | 6340 | LCN | 1.12 KM |
| Hykeham | 6310 | HKM | 7.16 KM |
Nearby Listings
| Address | Price | Type | Score | Distance |
|---|---|---|---|---|
| West Parade, West End, Lincoln | £ 475,000 | BUY | 7 / 10 | 0.00 KM |
| West Parade, West End, Lincoln | £ 225,000 | BUY | 5 / 10 | 0.00 KM |
| West Parade, Lincoln | £ 425,000 | BUY | 7 / 10 | 0.03 KM |
| Whitehall Grove, Lincoln | £ 205,000 | BUY | 6 / 10 | 0.07 KM |
| Rudgard Lane, West End, Lincoln | £ 150,000 | BUY | 5 / 10 | 0.08 KM |
Nearby Properties
| Address | Price | Distance |
|---|---|---|
| 45 West Parade | £ 125,000 | 0.00 KM |
| 45a West Parade | £ 185,000 | 0.00 KM |
| 37 West Parade | £ 230,000 | 0.00 KM |
| 39 West Parade | £ 105,000 | 0.00 KM |
| 9 Whitehall Grove | £ 140,000 | 0.07 KM |