Malden Road, Nascot Wood, Watford WD17 4EW
By Salters Residential
£ 295,000
Reviews
3 out of 5 stars
Salters Residential says ..
A superb one bedroom garden maisonette within ten minutes walk of Watford Junction.
Property Oracle says ..
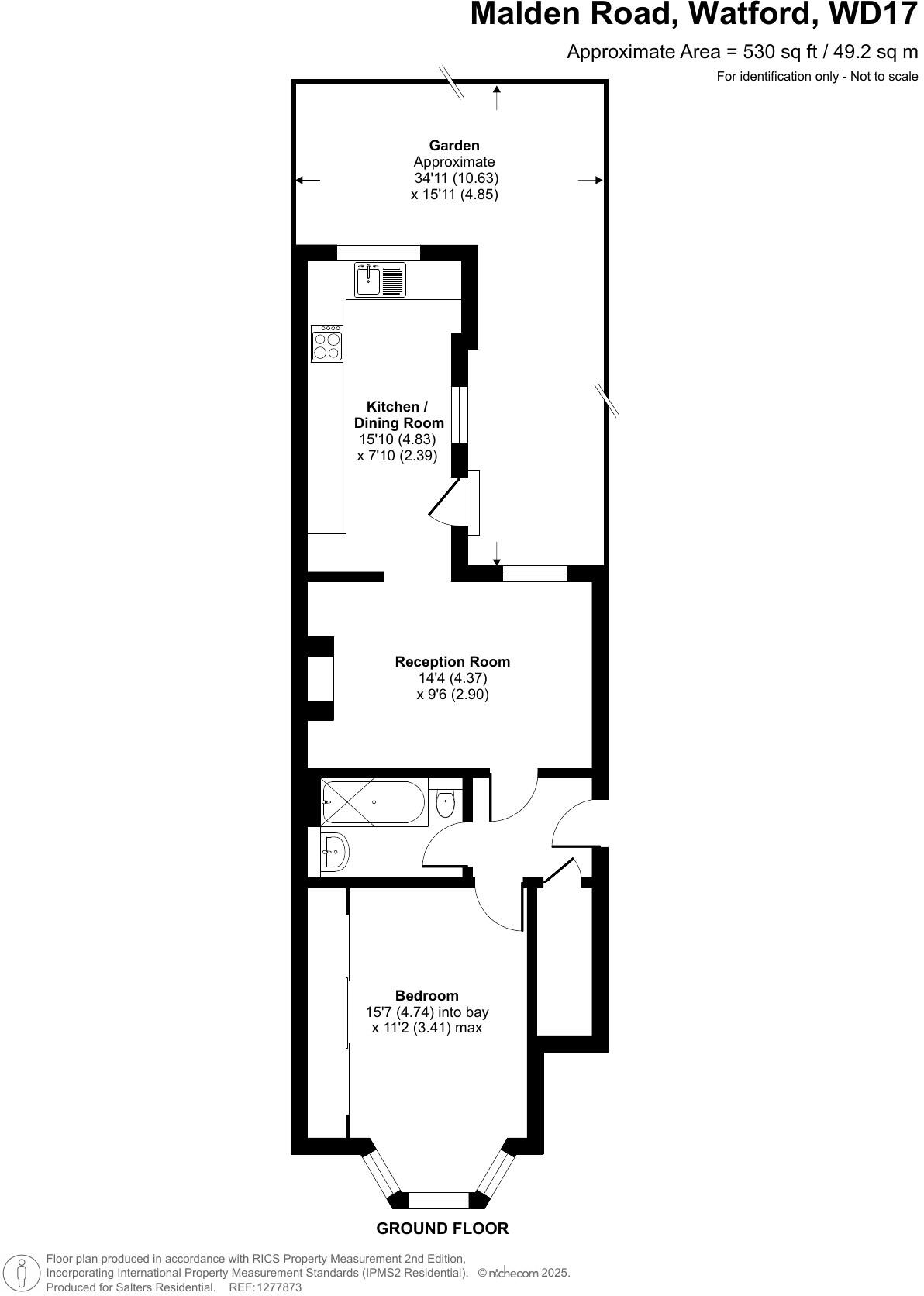
This maisonette is located in Nascot Wood, Watford, and benefits from being close to Watford Junction train station, providing convenient access to London and other areas. The property itself is a one-bedroom, one-bathroom maisonette with a small garden. Based on the images, the property appears to be in good condition, with a modern kitchen and bathroom. While the living area shows some signs of wear, it is not in need of significant renovation. The list price of £295,000 is lower than the average price for the area, which is £609,190. However, this is likely due to the smaller size of the property (428 sqft) compared to the average (1098 sqft). Considering the location, condition, and size, the price seems reasonable, although not necessarily a bargain.
Therefore, we give this property 7 / 10. *Disclaimer: This is our option and does constitute a recommendation or financial advice. Do your own research. *
- Price
- 7
- Condition
- 8
- Location
- 7
- Land
- 6
- Bedrooms
- 1
- Bathrooms
- 1
- Sqft (est)
- 428.00
- Lot (est)
- 530.00
The heatmap indicates the level of crime in the area. The color of the heatmap indicates the crime severity and recency.
Metrics Year-on-Year
- Average area value
- 746,000.00 £Increased by 26.32 %
- Est sale value
- 275,632.00 £Increased by 14.80 %
- Average area rental value
- 1,717.00 £/moDecreased by 5.35 %
- Est letting value
- 428.00 £/moUnchanged by 0.00 %
- Est rental Yield
- 2.76 %Decreased by 25.20 %
- Crime Rate
- 3.00 %Unchanged by 0.00 %
Agent Activity
Salters Residential created the listing.
Nearby Schools
| Name | Type | Ofsted | Distance |
|---|---|---|---|
| Lanchester Primary School | Free Schools | Good | 0.49 KM |
| West Herts College | Further Education | 0.53 KM | |
| Watford St John'S Church Of England Primary School | Free Schools | Good | 0.88 KM |
| W4 Littlebury Family Centre | Children's Centre | 0.98 KM | |
| Chater Junior School | Community School | Outstanding | 0.98 KM |
Images
Nearby Streets
| Name | Average Price | Average Sqft | Distance |
|---|---|---|---|
| A411 | £ 260,000 | 0 | 0.00 KM |
| Stamford Road | £ 0 | 0 | 0.00 KM |
| Pinewood Close | £ 775,000 | 0 | 0.00 KM |
| Station Road | £ 350,000 | 0 | 0.00 KM |
| Maple Grove | £ 0 | 0 | 0.00 KM |
Nearby Transport
| Name | NLC | TLC | Distance |
|---|---|---|---|
| Watford Junction | 1402 | WFJ | 0.73 KM |
| Watford High Street | 1455 | WFH | 1.68 KM |
| Watford North | 1403 | WFN | 2.06 KM |
| Bushey | 1395 | BSH | 2.72 KM |
| Garston (Hertfordshire) | 1559 | GSN | 3.56 KM |
Nearby Listings
| Address | Price | Type | Score | Distance |
|---|---|---|---|---|
| Malden Road, Nascot Wood, Watford WD17 4EW | £ 295,000 | BUY | 7 / 10 | 0.00 KM |
| Malden Road, Watford | £ 280,000 | BUY | 6 / 10 | 0.06 KM |
| Malden Road, Watford, WD17 4EW | £ 300,000 | BUY | 6 / 10 | 0.06 KM |
| Malden Road, Nascot Village | £ 300,000 | BUY | 7 / 10 | 0.07 KM |
| Beechwood Lodge, Watford, WD17 | £ 250,000 | BUY | Unknown | 0.08 KM |
Nearby Properties
| Address | Price | Distance |
|---|---|---|
| 15 Essex Road | £ 310,000 | 0.06 KM |
| 47 Essex Road | £ 687,500 | 0.06 KM |
| 17a Essex Road | £ 310,000 | 0.06 KM |
| 19b Essex Road | £ 310,000 | 0.06 KM |
| 1 Essex Road | £ 600,000 | 0.06 KM |