Robert Leech says ..
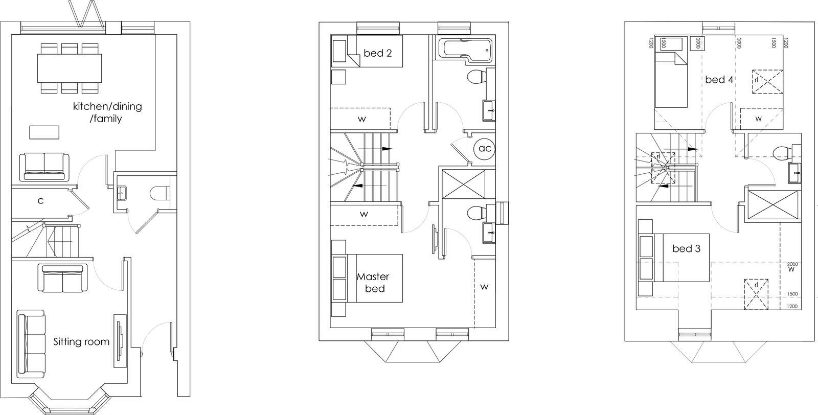
One of three fantastic new build properties on Ranelagh Road, a highly sought after location due to its convenience for both Reigate and Redhill town centres, Redhill train station, and many of the local schools. The property benefits from off road parking, air conditioning, 10 year new ...
Property Oracle says ..
This end-of-terrace property on Ranelagh Road, Redhill, offers a blend of modern living and convenience. The house features four bedrooms and three bathrooms, making it suitable for families. The recent renovations are evident in the contemporary kitchen and bathrooms. The property benefits from a well-maintained garden with a patio, enhancing its appeal. Its location provides easy access to local schools and transportation links, adding to its desirability. Considering the condition, location, and features, this property presents a solid opportunity for potential buyers.
Therefore, we give this property 7 / 10. *Disclaimer: This is our option and does constitute a recommendation or financial advice. Do your own research. *
- Price
- 7
- Condition
- 9
- Location
- 7
- Land
- 7
- Bedrooms
- 4
- Bathrooms
- 3
The heatmap indicates the level of crime in the area. The color of the heatmap indicates the crime severity and recency.
Metrics Year-on-Year
- Average area value
- 611,111.00 £Decreased by 6.31 %
- Average area rental value
- 1,850.00 £/moIncreased by 3.24 %
- Est rental Yield
- 3.63 %Increased by 10.00 %
- Crime Rate
- 12.00 %Unchanged by 0.00 %
Agent Activity
Robert Leech created the listing.
Nearby Schools
| Name | Type | Ofsted | Distance |
|---|---|---|---|
| Hatchlands Primary | Free Schools | 0.29 KM | |
| St Joseph'S Catholic Primary School, Redhill | Voluntary Aided School | Good | 0.49 KM |
| Wray Common Primary School | Academy Converter | 0.67 KM | |
| Dunottar School | Other Independent School | 0.94 KM | |
| St John'S Primary School | Academy Converter | 0.94 KM |
Images
Nearby Streets
| Name | Average Price | Average Sqft | Distance |
|---|---|---|---|
| Linkfield Corner (Refell's Bridge) | £ 0 | 0 | 0.00 KM |
| Radnor Court | £ 0 | 0 | 0.00 KM |
| Millway | £ 1,850,000 | 0 | 0.00 KM |
| Highlands Road | £ 2,450,000 | 0 | 0.00 KM |
| Ridgeway Court | £ 270,000 | 0 | 0.00 KM |
Nearby Transport
| Name | NLC | TLC | Distance |
|---|---|---|---|
| Earlswood (Surrey) | 5414 | ELD | 1.52 KM |
| Redhill | 5478 | RDH | 1.52 KM |
| Reigate | 5480 | REI | 2.73 KM |
| Merstham | 5475 | MHM | 4.36 KM |
| Salfords (Surrey) | 5380 | SAF | 4.44 KM |
Nearby Listings
| Address | Price | Type | Score | Distance |
|---|---|---|---|---|
| Ranelagh Road, Redhill | £ 675,000 | BUY | 7 / 10 | 0.00 KM |
| Ranelagh Road, Redhill | £ 650,000 | BUY | 7 / 10 | 0.00 KM |
| JUST LAUNCHED - The Showhome at Ranelagh Mews | £ 895,000 | BUY | 7 / 10 | 0.04 KM |
| Coming Soon - Ranelagh Mews, Redhill | £ 775,000 | BUY | 7 / 10 | 0.04 KM |
| Shrewsbury Road, RH1 | £ 835,000 | BUY | 7 / 10 | 0.04 KM |
Nearby Properties
| Address | Price | Distance |
|---|---|---|
| 19 Ranelagh Road | £ 600,000 | 0.01 KM |
| 1 Ranelagh Road | £ 275,000 | 0.01 KM |
| 42 Ranelagh Road | £ 280,000 | 0.01 KM |
| 43 Ranelagh Road | £ 461,000 | 0.01 KM |
| 9 Ranelagh Road | £ 525,000 | 0.01 KM |