South Bank Avenue, Off Bishopthorpe Road
By Churchills Estate Agents
£ 500,000
Reviews
3 out of 5 stars
Churchills Estate Agents says ..
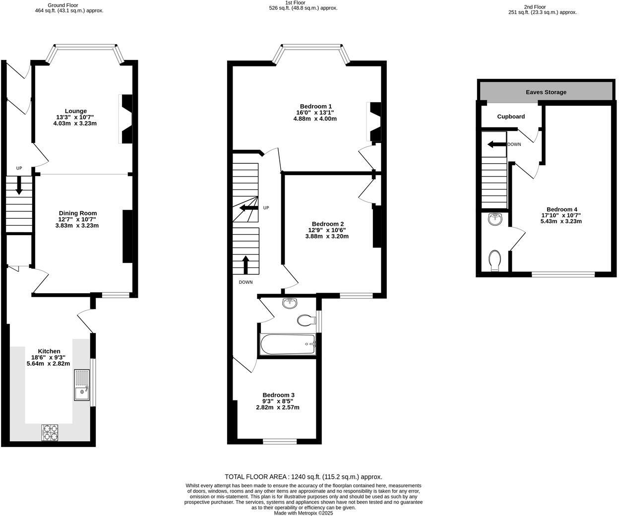
A superb four bedroom, three storey period town house with south facing rear courtyard garden set within one of York’s most sought after and desirable locations. Close to Millennium bridge, Bishopthorpe Road, popular schools and York's historic city centre. Maintained by the current vendor to a ...
Property Oracle says ..
This is a four-bedroom terraced house located in the Micklegate area of York. The property offers 1,240 sqft of living space and includes a garden. The house is situated in a convenient location, close to local amenities, schools, and transportation links. While the property is generally in good condition, some aspects of the interior could benefit from updating. The asking price of £500,000 seems reasonable given the location and size of the property.
Therefore, we give this property 7 / 10. *Disclaimer: This is our option and does constitute a recommendation or financial advice. Do your own research. *
- Price
- 7
- Condition
- 7
- Location
- 8
- Land
- 6
- Bedrooms
- 4
- Bathrooms
- 1
- Sqft (est)
- 1,240.00
The heatmap indicates the level of crime in the area. The color of the heatmap indicates the crime severity and recency.
Metrics Year-on-Year
- Average area value
- 542,496.00 £Increased by 34.28 %
- Est sale value
- 518,320.00 £Increased by 33.55 %
- Average area rental value
- 1,435.00 £/moIncreased by 6.30 %
- Est letting value
- 1,240.00 £/moUnchanged by 0.00 %
- Est rental Yield
- 3.17 %Decreased by 20.95 %
- Crime Rate
- 1.00 %Unchanged by 0.00 %
Agent Activity
Churchills Estate Agents created the listing.
Nearby Schools
| Name | Type | Ofsted | Distance |
|---|---|---|---|
| Knavesmire Primary School | Academy Converter | 0.37 KM | |
| Knavesmire Children'S Centre | Children's Centre | 0.37 KM | |
| Millthorpe School | Academy Converter | Good | 0.50 KM |
| Scarcroft Primary School | Academy Converter | 0.81 KM | |
| York Steiner School | Other Independent School | Inadequate | 1.12 KM |
Images
Nearby Streets
| Name | Average Price | Average Sqft | Distance |
|---|---|---|---|
| Drake Street | £ 180,000 | 0 | 0.00 KM |
| Bishopgate Street | £ 0 | 0 | 0.00 KM |
| Nunnery Lane | £ 0 | 0 | 0.00 KM |
| Bishopthorpegate Street | £ 230,000 | 0 | 0.00 KM |
| Bishopthorpe Road | £ 0 | 0 | 0.00 KM |
Nearby Transport
| Name | NLC | TLC | Distance |
|---|---|---|---|
| York | 8263 | YRK | 1.48 KM |
| Poppleton | 8254 | POP | 7.59 KM |
Nearby Listings
| Address | Price | Type | Score | Distance |
|---|---|---|---|---|
| South Bank Avenue, Off Bishopthorpe Road | £ 500,000 | BUY | 7 / 10 | 0.00 KM |
| South Bank Avenue, York | £ 455,000 | BUY | 7 / 10 | 0.07 KM |
| South Bank Avenue, York YO23 1EA | £ 489,950 | BUY | Unknown | 0.07 KM |
| South Bank Avenue, Bishopthorpe Road | £ 500,000 | BUY | 7 / 10 | 0.10 KM |
| Balmoral Terrace, South Bank, YO23 | £ 330,000 | BUY | 6 / 10 | 0.12 KM |
Nearby Properties
| Address | Price | Distance |
|---|---|---|
| 3 Nunthorpe View | £ 325,000 | 0.06 KM |
| 4 Nunthorpe View | £ 305,000 | 0.06 KM |
| 161 Bishopthorpe Road | £ 216,000 | 0.07 KM |
| 171 Bishopthorpe Road | £ 431,700 | 0.07 KM |
| 153 Bishopthorpe Road | £ 515,000 | 0.07 KM |