Martin & Co says ..
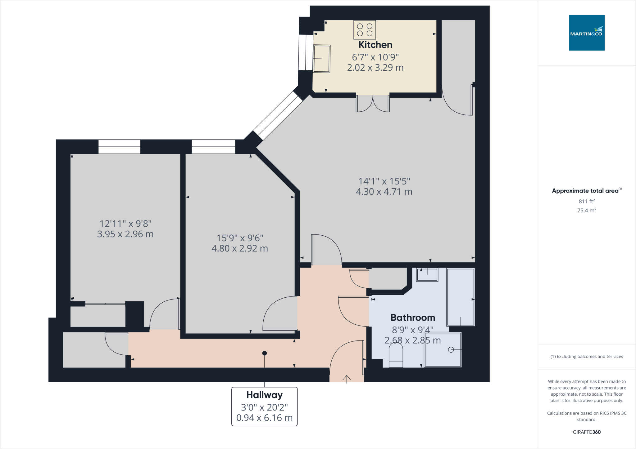
Spacious two-bedroom first-floor apartment in Castle Court, a McCarthy & Stone assisted living development for over 65s. Features 24hr on-site staff, emergency alarms, lifts, weekly cleaning with laundry, and access to personal care services. Enjoy subsidised 3-course lunches daily, a guest s...
Property Oracle says ..
Therefore, we give this property 5 / 10. *Disclaimer: This is our option and does constitute a recommendation or financial advice. Do your own research. *
- Price
- 8
- Condition
- 7
- Location
- 7
- Land
- 1
- Bedrooms
- 2
- Bathrooms
- 1
- Sqft (est)
- 811.60
The heatmap indicates the level of crime in the area. The color of the heatmap indicates the crime severity and recency.
Metrics Year-on-Year
- Average area value
- 456,000.00 £Increased by 25.16 %
- Est sale value
- 582,728.80 £Increased by 65.44 %
- Average area rental value
- 1,667.00 £/moIncreased by 20.45 %
- Est letting value
- 1,623.20 £/moIncreased by 100.00 %
- Est rental Yield
- 4.39 %Decreased by 3.73 %
- Crime Rate
- 2.00 %Unchanged by 0.00 %
from 364,328.00 £
from 352,234.40 £
from 1,384.00 £/mo
from 811.60 £/mo
from 4.56 %
from 2.00 %
Agent Activity
Martin & Co created the listing.
Nearby Schools
| Name | Type | Ofsted | Distance |
|---|---|---|---|
| Tonbridge School | Other Independent School | 0.66 KM | |
| Ymca West Kent | Special Post 16 Institution | 0.93 KM | |
| Hilden Grange School | Other Independent School | 0.95 KM | |
| Hilden Oaks Preparatory School And Nursery | Other Independent School | 0.95 KM | |
| Slade Primary School And Attached Unit For Children With Hearing Impairment | Community School | Outstanding | 1.04 KM |
Images
Nearby Streets
| Name | Average Price | Average Sqft | Distance |
|---|---|---|---|
| Morley Road | £ 300,000 | 0 | 0.00 KM |
| Lyons Crescent | £ 330,357 | 0 | 0.00 KM |
| Tannery Road | £ 0 | 0 | 0.00 KM |
| Castle Street | £ 290,000 | 0 | 0.00 KM |
| Rochester Road | £ 0 | 0 | 0.00 KM |
Nearby Transport
| Name | NLC | TLC | Distance |
|---|---|---|---|
| Tonbridge | 5229 | TON | 1.49 KM |
| High Brooms | 5235 | HIB | 5.64 KM |
| Hildenborough | 5236 | HLB | 6.15 KM |
| Leigh (Kent) | 5294 | LIH | 7.86 KM |
| Tunbridge Wells | 5230 | TBW | 8.03 KM |
Nearby Listings
| Address | Price | Type | Score | Distance |
|---|---|---|---|---|
| Castle Court, Hadlow Road | £ 145,000 | BUY | 5 / 10 | 0.00 KM |
| Ground Floor - Garden Flat - Castle Court, Hadlow Road, Tonbridge, TN9 1QU | £ 100,000 | BUY | 7 / 10 | 0.01 KM |
| Castle Court, Hadlow Road, Tonbridge, TN9 1QU | £ 75,000 | BUY | 6 / 10 | 0.01 KM |
| Hadlow Road, Tonbridge | £ 95,000 | BUY | 7 / 10 | 0.01 KM |
| Castle Court (Tonbridge), Tonbridge | £ 130,000 | BUY | Unknown | 0.02 KM |
Nearby Properties
| Address | Price | Distance |
|---|---|---|
| 50 Hadlow Road | £ 647,000 | 0.08 KM |
| 38 Hadlow Road | £ 355,000 | 0.08 KM |
| 48a Hadlow Road | £ 212,000 | 0.08 KM |
| 26 Hadlow Road | £ 470,000 | 0.11 KM |
| 28 Hadlow Road | £ 391,000 | 0.11 KM |