Bailey Street, Rotherhithe, SE8
By Benham & Reeves
£ 425,000
Reviews
3 out of 5 stars
Benham & Reeves says ..
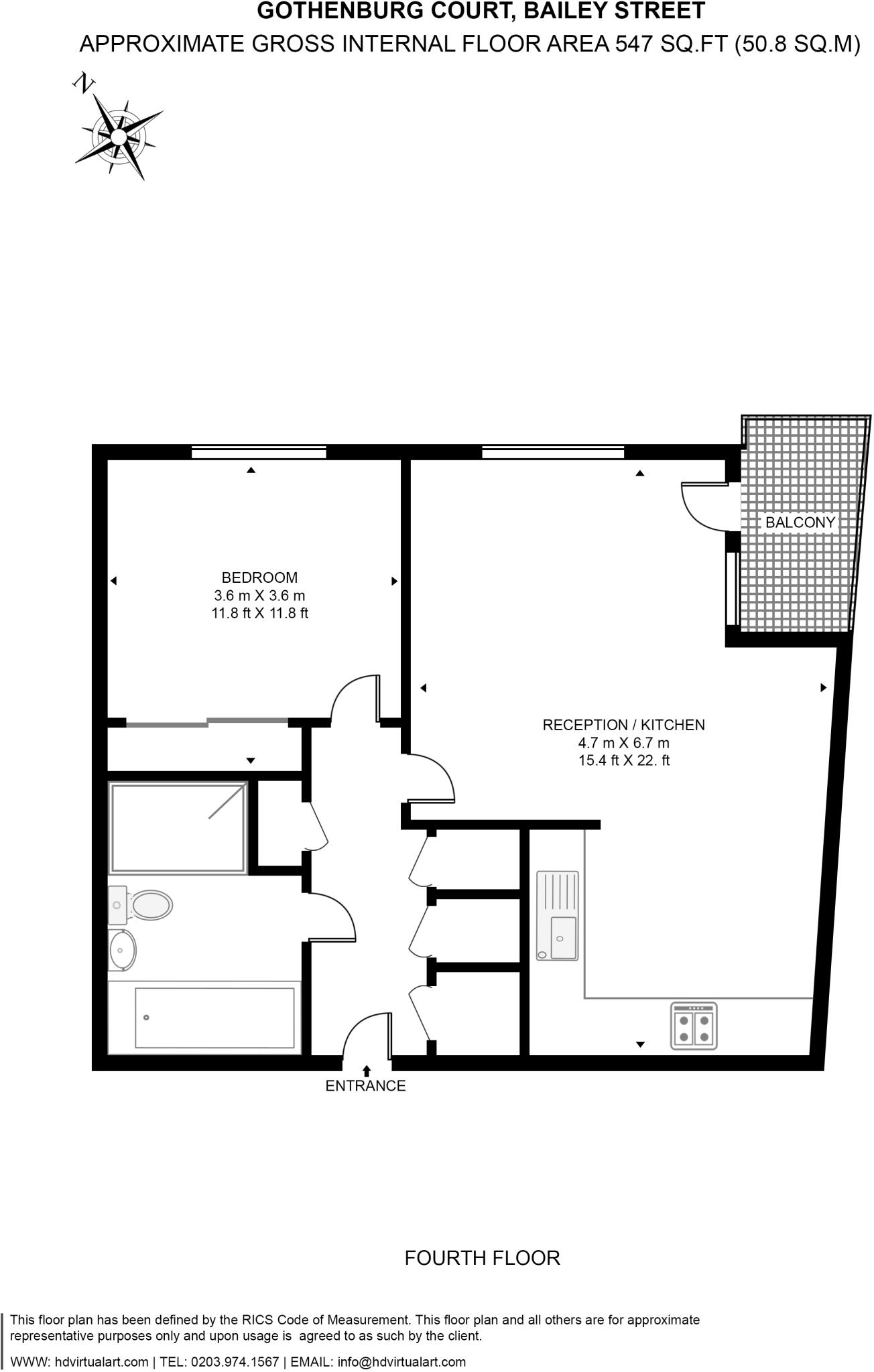
As part of the highly sought-after Greenland Place development, situated on the fourth floor, this property features one bedroom, one bathroom and a naturally illuminated kitchen/reception area that opens onto a private balcony.
Property Oracle says ..
This is a one-bedroom apartment located on Bailey Street, Rotherhithe. The property is in good condition and benefits from its proximity to transportation links and local schools. The apartment includes a modern kitchen and bathroom, and a balcony. The asking price appears to be in line with similar properties in the area. Overall, this property presents a solid opportunity for buyers looking in the Rotherhithe area.
Therefore, we give this property 6 / 10. *Disclaimer: This is our option and does constitute a recommendation or financial advice. Do your own research. *
- Price
- 7
- Condition
- 8
- Location
- 7
- Land
- 3
- Bedrooms
- 1
- Bathrooms
- 1
- Sqft (est)
- 547.00
The heatmap indicates the level of crime in the area. The color of the heatmap indicates the crime severity and recency.
Metrics Year-on-Year
- Average area value
- 460,000.00 £Decreased by 0.33 %
- Est sale value
- 341,875.00 £Decreased by 7.68 %
- Average area rental value
- 2,264.00 £/moIncreased by 1.25 %
- Est letting value
- 1,641.00 £/moUnchanged by 0.00 %
- Est rental Yield
- 5.91 %Increased by 1.72 %
- Crime Rate
- 9.00 %Unchanged by 0.00 %
Agent Activity
Benham & Reeves created the listing.
Nearby Schools
| Name | Type | Ofsted | Distance |
|---|---|---|---|
| Deptford Park Primary School | Community School | Good | 0.26 KM |
| Marathon Science School | Other Independent School | Good | 0.34 KM |
| Sir Francis Drake Primary School | Community School | Requires improvement | 0.61 KM |
| Clyde Early Childhood Centre | Children's Centre | 0.79 KM | |
| Clyde Nursery School. | Local Authority Nursery School | Outstanding | 0.87 KM |
Images
Nearby Streets
| Name | Average Price | Average Sqft | Distance |
|---|---|---|---|
| Cary Avenue | £ 0 | 0 | 0.00 KM |
| Lighter Close | £ 0 | 0 | 0.00 KM |
| Kezia Street | £ 0 | 0 | 0.00 KM |
| Blackhorse Road | £ 0 | 0 | 0.00 KM |
| Nombre Mews | £ 0 | 0 | 0.00 KM |
Nearby Transport
| Name | NLC | TLC | Distance |
|---|---|---|---|
| Surrey Quays | 1083 | SQE | 1.00 KM |
| Canada Water | 1659 | ZCW | 1.47 KM |
| New Cross | 5150 | NWX | 1.47 KM |
| New Cross Gate | 5345 | NXG | 1.69 KM |
| South Bermondsey | 5425 | SBM | 1.75 KM |
Nearby Listings
| Address | Price | Type | Score | Distance |
|---|---|---|---|---|
| Bailey Street, Rotherhithe, SE8 | £ 425,000 | BUY | 6 / 10 | 0.00 KM |
| Bailey Street, Surrey Quays | £ 500,000 | BUY | 7 / 10 | 0.02 KM |
| Bailey Street, Surrey Quays | £ 525,000 | BUY | 6 / 10 | 0.02 KM |
| Bailey Street, London, SE8 | £ 400,000 | BUY | 6 / 10 | 0.02 KM |
| Bailey Street, London, SE8 | £ 750,000 | BUY | 5 / 10 | 0.02 KM |
Nearby Properties
| Address | Price | Distance |
|---|---|---|
| 2 Sapphire Road | £ 425,000 | 0.14 KM |
| 8 Sapphire Road | £ 119,250 | 0.14 KM |
| 11 Woodcroft Mews | £ 755,000 | 0.14 KM |
| 6 Woodcroft Mews | £ 575,000 | 0.14 KM |
| 2 Woodcroft Mews | £ 280,000 | 0.14 KM |