WA
Brackla Way, Brackla, Bridgend County Borough, CF31 2JS
By Watts & Morgan
£ 550,000
Reviews
3 out of 5 stars
Watts & Morgan says ..
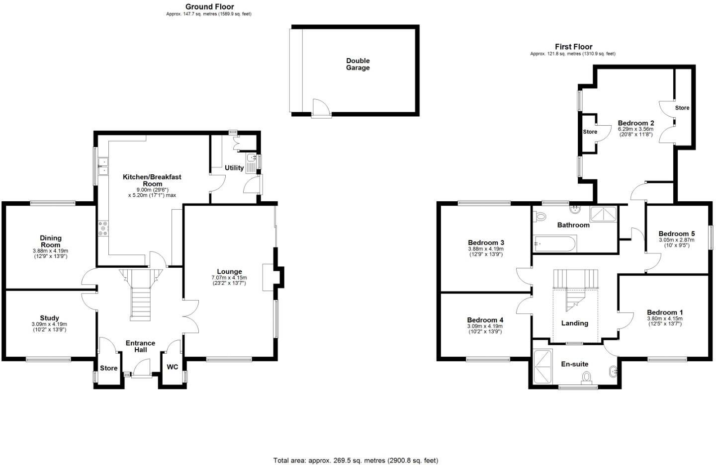
An individually built five double bedroom detached property situated in a popular location in Brackla. Being sold with no onward chain. This unique and impressive family home offers spacious versatile living accommodation. The property is conveniently located just a short walk from the Triangle s...
Property Oracle says ..
Therefore, we give this property 6 / 10. *Disclaimer: This is our option and does constitute a recommendation or financial advice. Do your own research. *
- Price
- 4
- Condition
- 7
- Location
- 7
- Land
- 8
- Bedrooms
- 5
- Bathrooms
- 2
- Sqft (est)
- 1,953.19
The heatmap indicates the level of crime in the area. The color of the heatmap indicates the crime severity and recency.
Metrics Year-on-Year
- Average area value
- 320,185.00 £Increased by 42.63 %
- Est sale value
- 582,050.62 £Increased by 12.03 %
- Average area rental value
- 1,013.00 £/moDecreased by 2.60 %
- Est letting value
- 0.00 £/moDecreased by 100.00 %
- Est rental Yield
- 3.80 %Decreased by 31.65 %
- Crime Rate
- 12.00 %Unchanged by 0.00 %
from 224,493.00 £
from 519,548.54 £
from 1,040.00 £/mo
from 1,953.19 £/mo
from 5.56 %
from 12.00 %
Agent Activity
Watts & Morgan created the listing.
Nearby Schools
| Name | Type | Ofsted | Distance |
|---|---|---|---|
| Archdeacon John Lewis | Welsh Establishment | 0.59 KM | |
| Archbishop Mcgrath Catholic High School | Welsh Establishment | 1.12 KM | |
| Coity Primary School | Welsh Establishment | 1.46 KM | |
| Ysgol Gymraeg Bro Ogwr | Welsh Establishment | 2.11 KM | |
| Coychurch (Llangrallo) Primary School | Welsh Establishment | 2.41 KM |
Images
Nearby Streets
| Name | Average Price | Average Sqft | Distance |
|---|---|---|---|
| Mandela Avenue | £ 250,000 | 0 | 0.00 KM |
| Linnet Way | £ 0 | 0 | 0.00 KM |
| Ger-y-Sedd | £ 0 | 0 | 0.00 KM |
| Heol Simonston | £ 0 | 0 | 0.00 KM |
| Long Acre | £ 0 | 0 | 0.00 KM |
Nearby Transport
| Name | NLC | TLC | Distance |
|---|---|---|---|
| Bridgend | 3809 | BGN | 2.96 KM |
| Wildmill | 3965 | WMI | 3.64 KM |
| Pencoed | 3851 | PCD | 5.58 KM |
| Sarn | 4270 | SRR | 5.58 KM |
| Tondu | 4271 | TDU | 6.66 KM |
Nearby Listings
| Address | Price | Type | Score | Distance |
|---|---|---|---|---|
| Brackla Way, Brackla, Bridgend County Borough, CF31 2JS | £ 550,000 | BUY | 6 / 10 | 0.00 KM |
| Lavender Court, Brackla, CF31 | £ 159,950 | BUY | 7 / 10 | 0.03 KM |
| Lavender Court, Brackla, Bridgend | £ 190,000 | BUY | 6 / 10 | 0.08 KM |
| 51 Lavender Court, Bridgend CF31 2ND | £ 165,000 | BUY | 7 / 10 | 0.09 KM |
| 74 The Spinney, Brackla, Bridgend, CF31 2JE | £ 210,000 | BUY | 6 / 10 | 0.11 KM |
Nearby Properties
| Address | Price | Distance |
|---|---|---|
| 38 Lavender Court | £ 135,000 | 0.08 KM |
| 45 Lavender Court | £ 114,000 | 0.08 KM |
| 60 Lavender Court | £ 44,000 | 0.08 KM |
| 34 Lavender Court | £ 110,000 | 0.08 KM |
| 63 Lavender Court | £ 118,000 | 0.08 KM |