SE
Robertson Court, St. Johns, Woking, Surrey, GU21
By Seymours Estate Agents
£ 425,000
Reviews
3 out of 5 stars
Seymours Estate Agents says ..
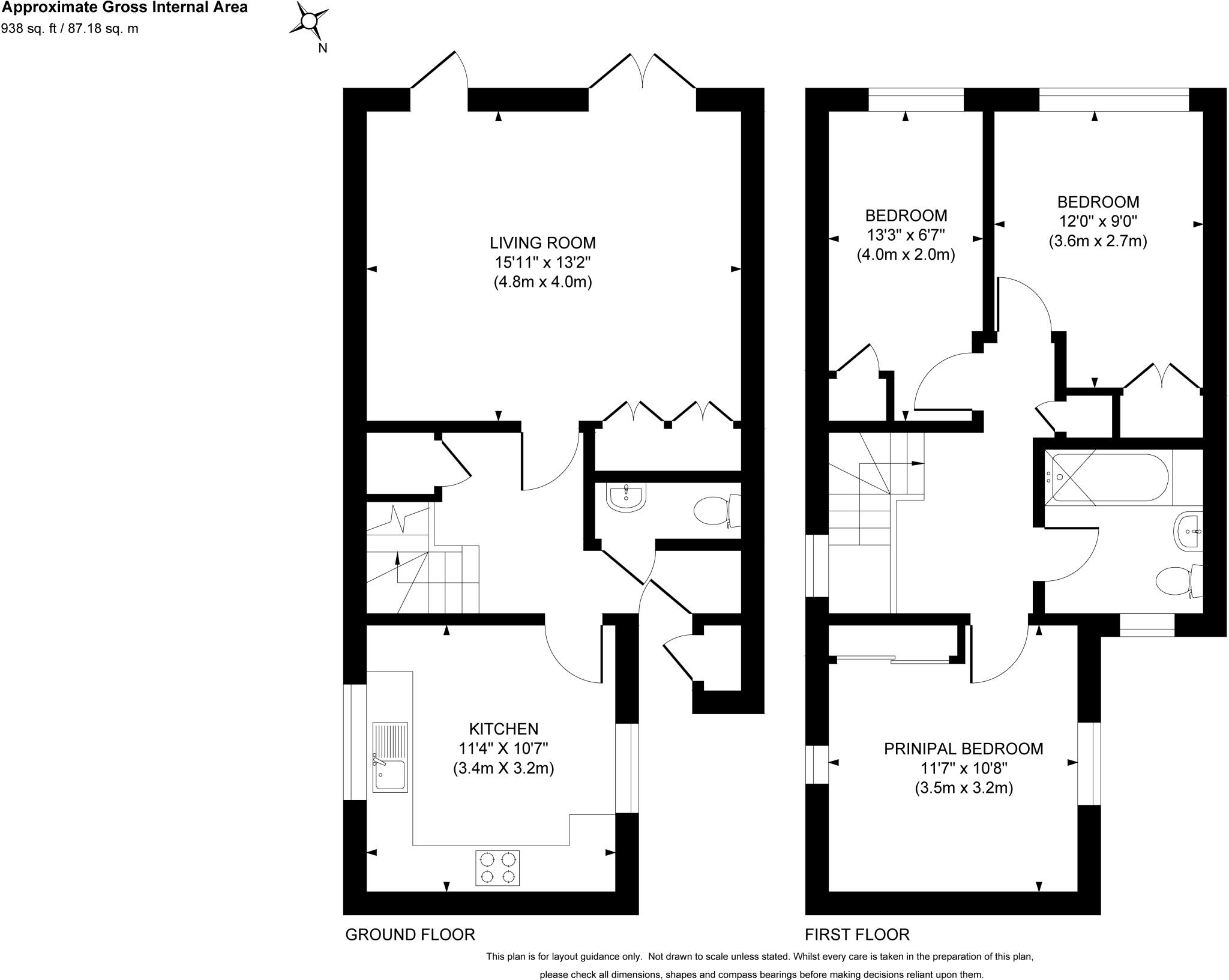
This deceptively spacious terraced home is ideally located within easy reach of several local schools and excellent bus links, providing quick and convenient access to Woking Town Centre. Beautifully presented throughout, the property offers three generously sized bedrooms, all of whic...
Property Oracle says ..
Therefore, we give this property 6 / 10. *Disclaimer: This is our option and does constitute a recommendation or financial advice. Do your own research. *
- Price
- 5
- Condition
- 8
- Location
- 7
- Land
- 6
- Bedrooms
- 3
- Bathrooms
- 1
- Sqft (est)
- 635.07
The heatmap indicates the level of crime in the area. The color of the heatmap indicates the crime severity and recency.
Metrics Year-on-Year
- Average area value
- 384,737.00 £Decreased by 1.20 %
- Est sale value
- 258,473.49 £Increased by 15.95 %
- Average area rental value
- 1,963.00 £/moIncreased by 39.81 %
- Est letting value
- 1,270.14 £/moIncreased by 100.00 %
- Est rental Yield
- 6.12 %Increased by 41.34 %
- Crime Rate
- 7.00 %Unchanged by 0.00 %
from 389,410.00 £
from 222,909.57 £
from 1,404.00 £/mo
from 635.07 £/mo
from 4.33 %
from 7.00 %
Agent Activity
Seymours Estate Agents created the listing.
Nearby Schools
| Name | Type | Ofsted | Distance |
|---|---|---|---|
| St John'S Primary School | Academy Sponsor Led | Requires improvement | 0.27 KM |
| St John'S Primary School And Sure Start Children'S Centre | Children's Centre | 0.27 KM | |
| The Winston Churchill School A Specialist Sports College | Foundation School | Good | 0.43 KM |
| The Oaktree School | Academy Converter | 0.67 KM | |
| The Hermitage School | Academy Converter | Good | 0.74 KM |
Images
Nearby Streets
| Name | Average Price | Average Sqft | Distance |
|---|---|---|---|
| Oakway | £ 475,000 | 0 | 0.00 KM |
| Beechwood Close | £ 0 | 0 | 0.00 KM |
| Robin Hood Roundabout cycle path | £ 0 | 0 | 0.00 KM |
| Lockfield Drive cycle path | £ 0 | 0 | 0.00 KM |
| Oakwood Road | £ 0 | 0 | 0.00 KM |
Nearby Transport
| Name | NLC | TLC | Distance |
|---|---|---|---|
| Brookwood | 5687 | BKO | 3.67 KM |
| Worplesdon | 5686 | WPL | 3.79 KM |
| Woking | 5685 | WOK | 5.28 KM |
| Longcross | 5674 | LNG | 7.87 KM |
| Guildford | 5631 | GLD | 9.10 KM |
Nearby Listings
| Address | Price | Type | Score | Distance |
|---|---|---|---|---|
| Robertson Court, St. Johns, Woking, Surrey, GU21 | £ 425,000 | BUY | 6 / 10 | 0.00 KM |
| Seymour Court, Raglan Road, Woking, Surrey, GU21 | £ 169,950 | BUY | 5 / 10 | 0.09 KM |
| Bloomfield Close, Knaphill, Woking, Surrey, GU21 | £ 520,000 | BUY | 6 / 10 | 0.14 KM |
| Bloomfield Close, Knaphill, Woking, Surrey, GU21 | £ 499,950 | BUY | 7 / 10 | 0.14 KM |
| Bloomfield Close, Knaphill, Woking, Surrey, GU21 | £ 350,000 | BUY | 6 / 10 | 0.17 KM |
Nearby Properties
| Address | Price | Distance |
|---|---|---|
| 17 Robertson Court | £ 200,000 | 0.06 KM |
| 10 Greenmeads | £ 125,000 | 0.06 KM |
| 35 Robertson Court | £ 395,000 | 0.06 KM |
| 27 Robertson Court | £ 348,000 | 0.06 KM |
| 29 Robertson Court | £ 285,000 | 0.06 KM |