Julie Philpot says ..
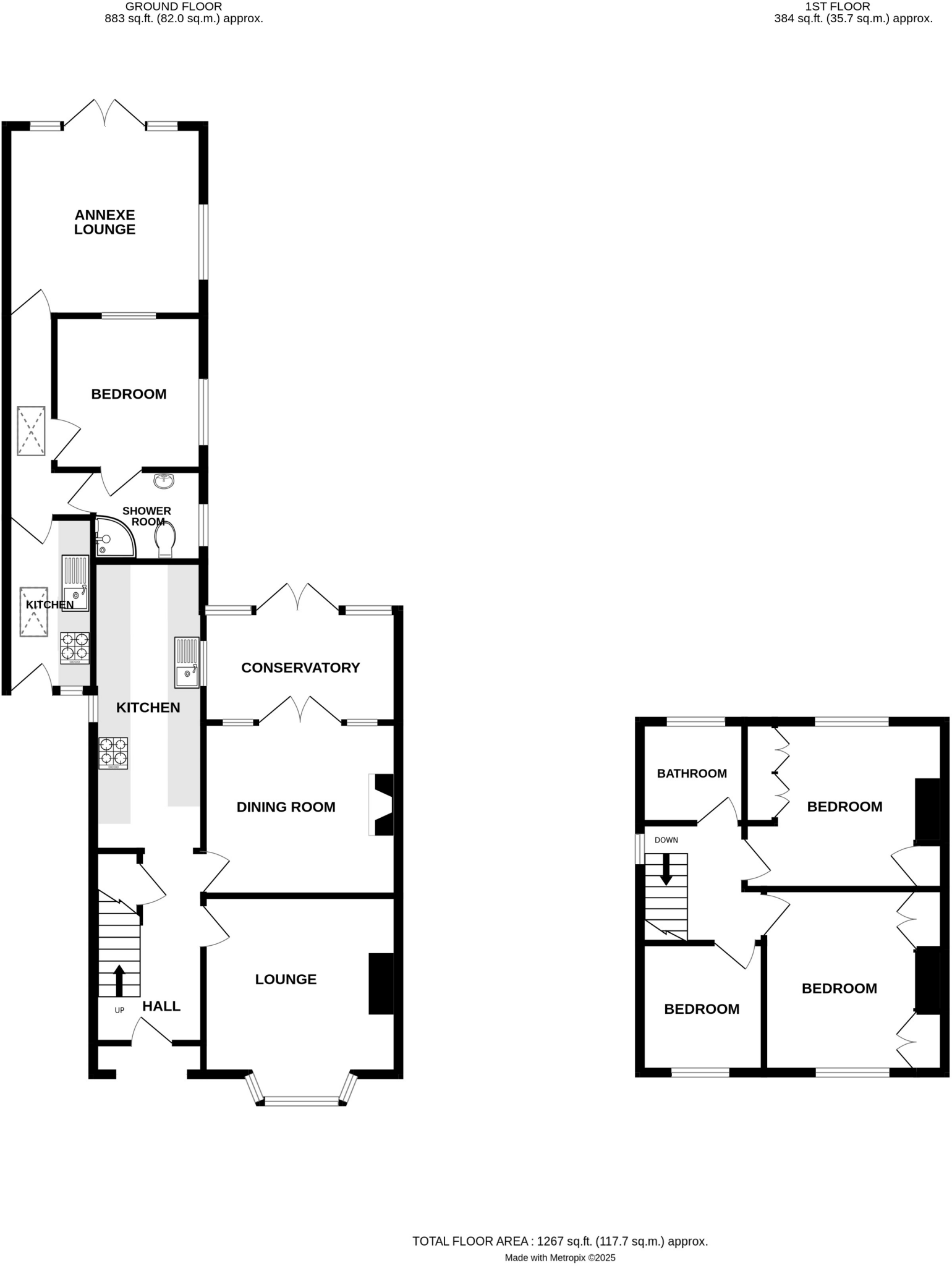
A very attractive, much improved semi-detached character property with three bedrooms plus the added advantage of a self contained one bedroom annexe. This lovely, unique home provides spacious living, has a large garden, driveway parking, log burner and period features, to include deep skirting ...
Property Oracle says ..
Therefore, we give this property 7 / 10. *Disclaimer: This is our option and does constitute a recommendation or financial advice. Do your own research. *
- Price
- 8
- Condition
- 7
- Location
- 8
- Land
- 8
- Bedrooms
- 4
- Bathrooms
- 2
- Sqft (est)
- 1,267.00
The heatmap indicates the level of crime in the area. The color of the heatmap indicates the crime severity and recency.
Metrics Year-on-Year
- Average area value
- 450,680.00 £Increased by 2.66 %
- Est sale value
- 596,757.00 £Increased by 11.61 %
- Average area rental value
- 1,290.00 £/moIncreased by 8.77 %
- Est letting value
- 1,267.00 £/moUnchanged by 0.00 %
- Est rental Yield
- 3.43 %Increased by 5.86 %
- Crime Rate
- 7.00 %Unchanged by 0.00 %
from 438,987.00 £
from 534,674.00 £
from 1,186.00 £/mo
from 1,267.00 £/mo
from 3.24 %
from 7.00 %
Agent Activity
Julie Philpot created the listing.
Nearby Schools
| Name | Type | Ofsted | Distance |
|---|---|---|---|
| St Nicholas Cofe Primary School | Voluntary Controlled School | Good | 0.44 KM |
| Kenilworth Nursery School & Early Years Training Centre | Local Authority Nursery School | Outstanding | 0.72 KM |
| Thorns Community Infant School | Community School | Good | 0.79 KM |
| Crackley Hall School | Other Independent School | 0.93 KM | |
| Park Hill Junior School | Community School | Good | 1.26 KM |
Images
Nearby Streets
| Name | Average Price | Average Sqft | Distance |
|---|---|---|---|
| Glendale Avenue | £ 0 | 0 | 0.00 KM |
| Stoneleigh Avenue | £ 0 | 0 | 0.00 KM |
| Denemoor Court | £ 0 | 0 | 0.00 KM |
| Brooke Road | £ 750,000 | 0 | 0.00 KM |
| Field Close | £ 0 | 0 | 0.00 KM |
Nearby Transport
| Name | NLC | TLC | Distance |
|---|---|---|---|
| Kenilworth | 7985 | KNW | 0.56 KM |
| Tile Hill | 1035 | THL | 5.98 KM |
| Canley | 1129 | CNL | 6.32 KM |
| Warwick | 4600 | WRW | 6.89 KM |
| Leamington Spa | 4597 | LMS | 8.04 KM |
Nearby Listings
| Address | Price | Type | Score | Distance |
|---|---|---|---|---|
| Arthur Street, Kenilworth | £ 475,000 | BUY | 7 / 10 | 0.00 KM |
| Arthur Street, Kenilworth | £ 429,950 | BUY | 8 / 10 | 0.04 KM |
| Arthur Street, Kenilworth | £ 280,000 | BUY | 7 / 10 | 0.06 KM |
| Henry Street, Kenilworth | £ 305,000 | BUY | 7 / 10 | 0.08 KM |
| Henry Street, Kenilworth | £ 299,950 | BUY | Unknown | 0.10 KM |
Nearby Properties
| Address | Price | Distance |
|---|---|---|
| 1 Arthur Street | £ 390,000 | 0.03 KM |
| 65 Arthur Street | £ 168,000 | 0.03 KM |
| 39 Arthur Street | £ 345,000 | 0.03 KM |
| 21 Arthur Street | £ 252,950 | 0.03 KM |
| 3 Arthur Street | £ 170,000 | 0.03 KM |