Sandray Avenue, Port Glasgow
By Brian Harkins
£ 108,000
Reviews
3 out of 5 stars
Brian Harkins says ..
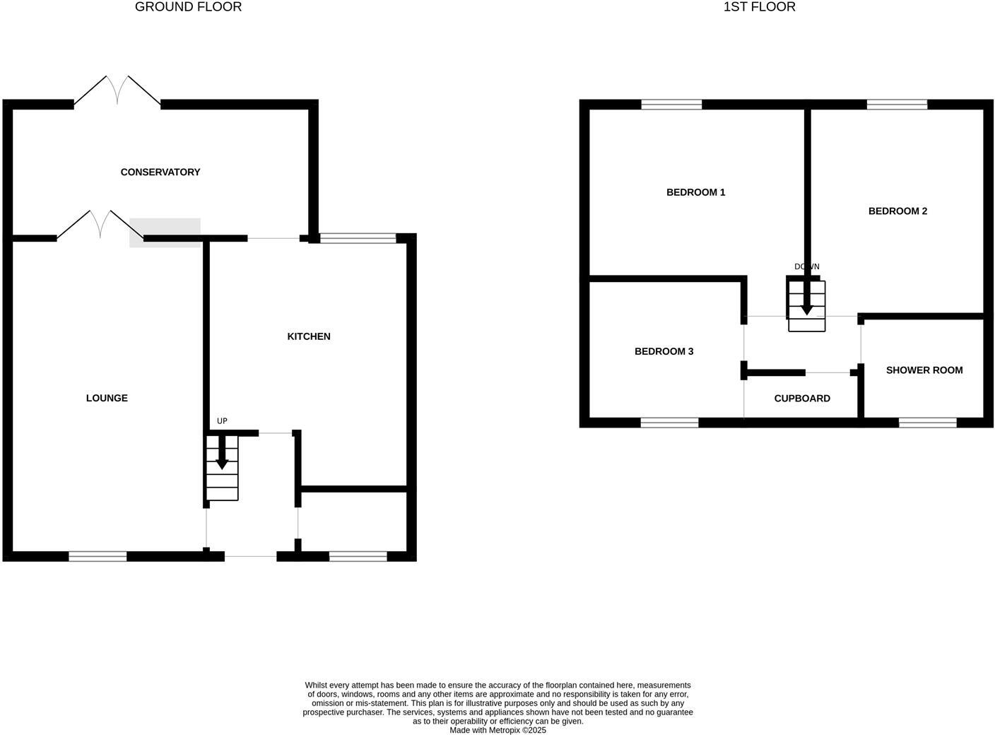
This ideal family MID TERRACED VILLA offers a superb family home. Located in a popular and convenient residential area close to excellent amenities, schools and road links. Driveway to front and enclosed rear garden. Comprising Entrance Reception Hallway, W.C with two piece white suite a...
Property Oracle says ..
This is a three-bedroom terraced house in Port Glasgow. The property is in reasonable condition and has a modern kitchen and bathroom. It benefits from a garden with a shed and a decked area. The property is located near transportation links, but the area is not particularly desirable. The asking price of £108,000 seems reasonable.
Therefore, we give this property 7 / 10. *Disclaimer: This is our option and does constitute a recommendation or financial advice. Do your own research. *
- Price
- 8
- Condition
- 7
- Location
- 6
- Land
- 7
- Bedrooms
- 3
- Bathrooms
- 1
- Sqft (est)
- 864.00
The heatmap indicates the level of crime in the area. The color of the heatmap indicates the crime severity and recency.
Metrics Year-on-Year
- Average area value
- 583,333.00 £Increased by 32.79 %
- Est sale value
- 321,408.00 £Increased by 82.35 %
- Average area rental value
- 1,050.00 £/moDecreased by 22.96 %
- Est letting value
- 0.00 £/mo
- Est rental Yield
- 2.16 %Decreased by 41.94 %
- Crime Rate
- 0.00 %
Agent Activity
Brian Harkins created the listing.
Images
Nearby Streets
| Name | Average Price | Average Sqft | Distance |
|---|---|---|---|
| Sandray Avenue | £ 0 | 0 | 0.00 KM |
| Eriskay Avenue | £ 98,000 | 0 | 0.00 KM |
| Coll Avenue | £ 0 | 0 | 0.00 KM |
| West Woodside Avenue | £ 65,000 | 0 | 0.00 KM |
Nearby Transport
| Name | NLC | TLC | Distance |
|---|---|---|---|
| Woodhall | 9639 | WDL | 1.65 KM |
| Cardross | 9969 | CDR | 4.41 KM |
| Port Glasgow | 9667 | PTG | 5.25 KM |
| Langbank | 9652 | LGB | 6.49 KM |
| Bogston | 9668 | BGS | 7.66 KM |
Nearby Listings
| Address | Price | Type | Score | Distance |
|---|---|---|---|---|
| Sandray Avenue, Port Glasgow | £ 108,000 | BUY | 7 / 10 | 0.00 KM |
| Oronsay Avenue, Port Glasgow | £ 92,000 | BUY | 6 / 10 | 0.43 KM |
| Arran Avenue, Port Glasgow, PA14 | £ 120,000 | BUY | Unknown | 0.59 KM |
| Coll Avenue, Port Glasgow | £ 98,000 | BUY | 7 / 10 | 0.63 KM |
| 1 BUTE AVENUE, PORT GLASGOW PA14 6AA | £ 125,000 | BUY | 6 / 10 | 0.66 KM |