Queslett Road, Great Barr, Birmingham
By Skitts Estate Agents
£ 260,000
Reviews
3 out of 5 stars
Skitts Estate Agents says ..
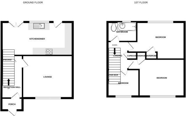
This immaculately presented three bedroom terraced property has been refurbished to a high standard and would make an ideal purchase for any buyer. From the modern kitchen to landscaped garden nothing has been left unturned. The property has three good sized bedrooms and must be viewed to appre...
Property Oracle says ..
This is a three-bedroom terraced house located on Queslett Road in Great Barr, Birmingham. The property is in good condition and has a modern kitchen and bathroom. It also has a good-sized garden. The property is located close to schools and transportation links. The listing price seems reasonable given the condition and location of the property.
Therefore, we give this property 7 / 10. *Disclaimer: This is our option and does constitute a recommendation or financial advice. Do your own research. *
- Price
- 7
- Condition
- 8
- Location
- 7
- Land
- 7
- Bedrooms
- 3
- Bathrooms
- 1
- Sqft (est)
- 725.00
The heatmap indicates the level of crime in the area. The color of the heatmap indicates the crime severity and recency.
Metrics Year-on-Year
- Average area value
- 282,222.00 £Decreased by 4.78 %
- Est sale value
- 198,650.00 £Increased by 0.74 %
- Average area rental value
- 1,223.00 £/moIncreased by 4.80 %
- Est letting value
- 725.00 £/moUnchanged by 0.00 %
- Est rental Yield
- 5.20 %Increased by 10.17 %
- Crime Rate
- 4.00 %Unchanged by 0.00 %
Agent Activity
Skitts Estate Agents created the listing.
Nearby Schools
| Name | Type | Ofsted | Distance |
|---|---|---|---|
| Sundridge Primary School | Community School | Good | 0.28 KM |
| Sundridge Children'S Centre | Children's Centre Linked Site | 0.36 KM | |
| Meadow View Jmi School | Community School | Good | 0.62 KM |
| Kingsland Primary School (Nc) | Community School | Good | 0.91 KM |
| Lindens Primary School | Community School | Outstanding | 1.19 KM |
Images
Nearby Streets
| Name | Average Price | Average Sqft | Distance |
|---|---|---|---|
| Sheen Road | £ 200,000 | 0 | 0.00 KM |
| Brompton Road | £ 189,286 | 0 | 0.00 KM |
| Queslett Road East | £ 0 | 0 | 0.00 KM |
| Privet Close | £ 230,000 | 0 | 0.00 KM |
| Anerley Road | £ 185,000 | 0 | 0.00 KM |
Nearby Transport
| Name | NLC | TLC | Distance |
|---|---|---|---|
| Perry Barr | 1128 | PRY | 4.91 KM |
| Hamstead (Birmingham) | 1145 | HSD | 4.92 KM |
| Witton (West Midlands) | 1011 | WTT | 5.45 KM |
| Aston | 1004 | AST | 6.74 KM |
| Gravelly Hill | 1132 | GVH | 6.91 KM |
Nearby Listings
| Address | Price | Type | Score | Distance |
|---|---|---|---|---|
| Queslett Road, Great Barr, Birmingham | £ 260,000 | BUY | 7 / 10 | 0.00 KM |
| Queslett Road, Great Barr | £ 280,000 | BUY | 7 / 10 | 0.01 KM |
| Queslett Road, BIRMINGHAM | £ 270,000 | BUY | 7 / 10 | 0.01 KM |
| Stanhope Way, Great Barr, Birmingham B43 7UB | £ 250,000 | BUY | Unknown | 0.08 KM |
| Stanhope Way, Great Barr, Birmingham. B43 7UB | £ 320,000 | BUY | 7 / 10 | 0.08 KM |
Nearby Properties
| Address | Price | Distance |
|---|---|---|
| 636 Queslett Road | £ 155,500 | 0.01 KM |
| 642 Queslett Road | £ 165,000 | 0.01 KM |
| 650 Queslett Road | £ 135,000 | 0.01 KM |
| 610 Queslett Road | £ 120,000 | 0.01 KM |
| 622 Queslett Road | £ 105,000 | 0.01 KM |