Stags says ..
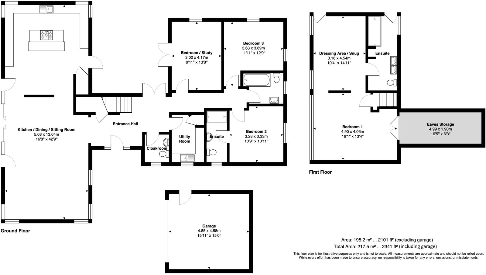
Detached 4 bed quality barn conversion just outside the village in over 1/3 acre. EPC C
Property Oracle says ..
Therefore, we give this property 7 / 10. *Disclaimer: This is our option and does constitute a recommendation or financial advice. Do your own research. *
- Price
- 6
- Condition
- 9
- Location
- 7
- Land
- 7
- Bedrooms
- 4
- Bathrooms
- 3
The heatmap indicates the level of crime in the area. The color of the heatmap indicates the crime severity and recency.
Metrics Year-on-Year
- Average area value
- 622,500.00 £Decreased by 32.15 %
- Average area rental value
- 1,150.00 £/moDecreased by 16.79 %
- Est rental Yield
- 2.22 %Increased by 22.65 %
- Crime Rate
- 27.00 %Unchanged by 0.00 %
from 917,500.00 £
from 1,382.00 £/mo
from 1.81 %
from 27.00 %
Agent Activity
Stags created the listing.
Nearby Schools
| Name | Type | Ofsted | Distance |
|---|---|---|---|
| Payhembury Church Of England Primary School | Voluntary Controlled School | Good | 0.38 KM |
| The Wildings | Other Independent Special School | 2.57 KM | |
| Feniton Church Of England Primary School | Voluntary Aided School | Outstanding | 3.30 KM |
| Broadhembury Church Of England Primary School | Voluntary Controlled School | Good | 3.68 KM |
| Plymtree Church Of England Primary School | Voluntary Controlled School | Good | 5.14 KM |
Images
Nearby Streets
| Name | Average Price | Average Sqft | Distance |
|---|---|---|---|
| Newlands | £ 597,500 | 0 | 0.00 KM |
| Hillside | £ 399,950 | 0 | 0.00 KM |
| Moorcott | £ 0 | 0 | 0.00 KM |
| Colliton Cross | £ 0 | 0 | 0.00 KM |
| Colliton Barton Cottages | £ 0 | 0 | 0.00 KM |
Nearby Transport
| Name | NLC | TLC | Distance |
|---|---|---|---|
| Feniton | 5808 | FNT | 3.00 KM |
| Whimple | 5759 | WHM | 7.68 KM |
Nearby Listings
| Address | Price | Type | Score | Distance |
|---|---|---|---|---|
| Barrow Road, Payhembury | £ 950,000 | BUY | 7 / 10 | 0.00 KM |
| Barrow Road, Honiton, EX14 | £ 1,100,000 | BUY | 7 / 10 | 0.19 KM |
| Barrow Road, Honiton, EX14 | £ 925,000 | BUY | 7 / 10 | 0.24 KM |
| Barrow Road, Payhembury, Honiton, Devon, EX14 | £ 365,000 | BUY | 7 / 10 | 0.27 KM |
| Payhembury, Honiton, Devon, EX14 | £ 585,000 | BUY | 7 / 10 | 0.40 KM |
Nearby Properties
| Address | Price | Distance |
|---|---|---|
| The Old Forge | £ 246,500 | 0.19 KM |
| Little Fort | £ 487,500 | 0.19 KM |
| Jasperry | £ 370,000 | 0.19 KM |
| Avalon | £ 65,500 | 0.19 KM |
| Lauriston | £ 360,000 | 0.22 KM |