BE
15 Wood Road, Tettenhall Wood, Wolverhampton, WV6 8NG
By Berriman Eaton
£ 649,950
Reviews
3 out of 5 stars
Berriman Eaton says ..
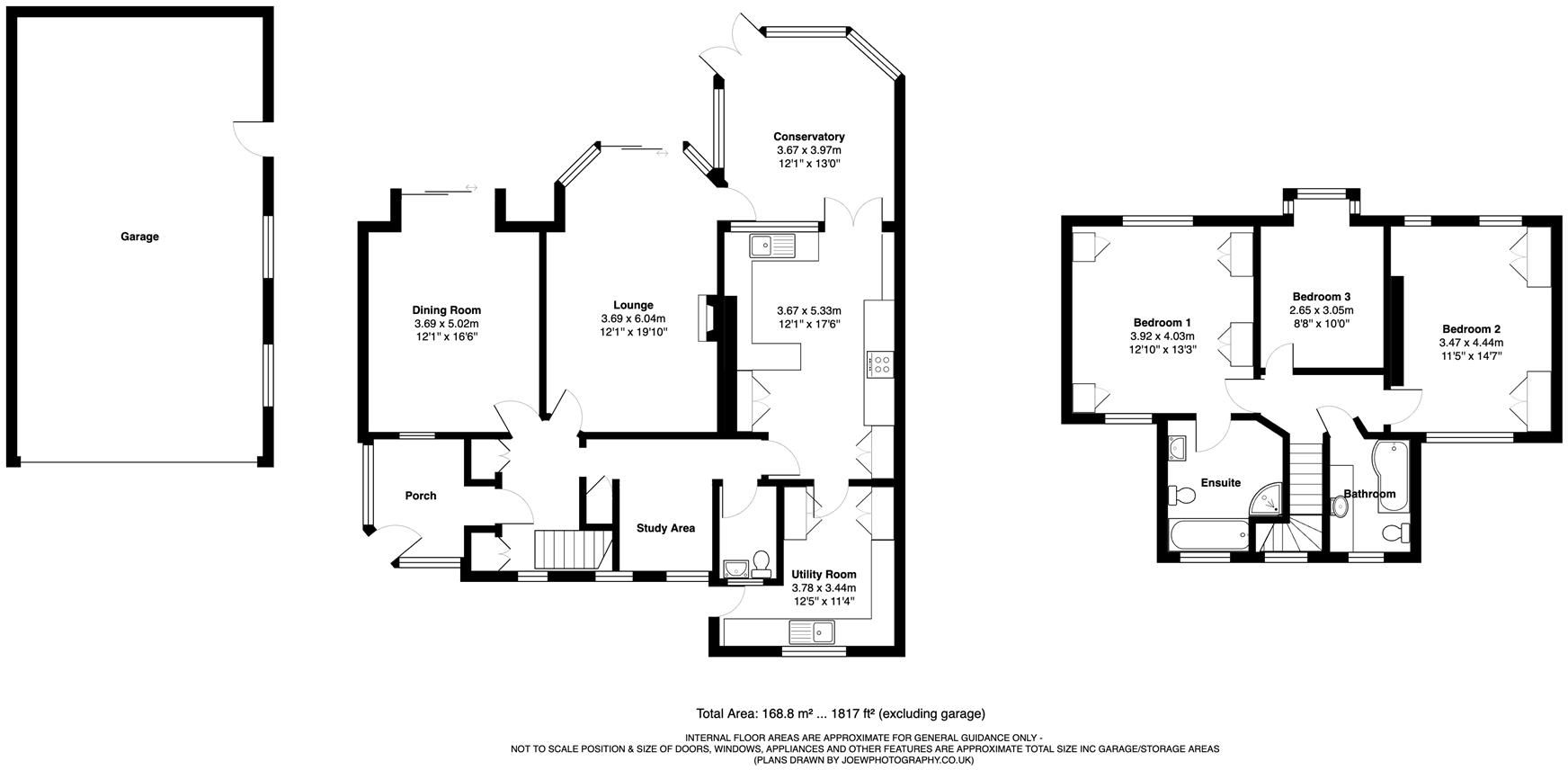
A beautifully presented three-bedroom detached property offering spacious and versatile accommodation arranged over two floors. Set on a generous plot, with off street parking, detached garage and delightful garden to the rear.
Property Oracle says ..
Therefore, we give this property 7 / 10. *Disclaimer: This is our option and does constitute a recommendation or financial advice. Do your own research. *
- Price
- 6
- Condition
- 7
- Location
- 8
- Land
- 9
- Bedrooms
- 3
- Bathrooms
- 2
- Sqft (est)
- 1,158.74
The heatmap indicates the level of crime in the area. The color of the heatmap indicates the crime severity and recency.
Metrics Year-on-Year
- Average area value
- 631,495.00 £Increased by 90.91 %
- Est sale value
- 486,670.80 £Increased by 24.63 %
- Average area rental value
- 995.00 £/moDecreased by 29.98 %
- Est letting value
- 0.00 £/moDecreased by 100.00 %
- Est rental Yield
- 1.89 %Decreased by 63.37 %
- Crime Rate
- 6.00 %Unchanged by 0.00 %
from 330,781.00 £
from 390,495.38 £
from 1,421.00 £/mo
from 1,158.74 £/mo
from 5.16 %
from 6.00 %
Agent Activity
Berriman Eaton created the listing.
Nearby Schools
| Name | Type | Ofsted | Distance |
|---|---|---|---|
| Christ Church (Church Of England) Infant And Nursery School | Voluntary Controlled School | Good | 0.41 KM |
| Christ Church (Church Of England) Junior School | Voluntary Controlled School | Good | 0.49 KM |
| Tettenhall Wood School | Community Special School | Good | 0.91 KM |
| The King'S Church Of England School | Academy Sponsor Led | 0.98 KM | |
| Woodthorne Primary School | Academy Converter | 1.08 KM |
Images
Nearby Streets
| Name | Average Price | Average Sqft | Distance |
|---|---|---|---|
| Kirstead Gardens | £ 0 | 0 | 0.00 KM |
| path | £ 0 | 0 | 0.00 KM |
| Bewick Court | £ 135,000 | 0 | 0.00 KM |
| Long Lake Avenue | £ 0 | 0 | 0.00 KM |
| Regis Road | £ 279,950 | 0 | 0.00 KM |
Nearby Transport
| Name | NLC | TLC | Distance |
|---|---|---|---|
| Bilbrook | 4618 | BBK | 3.78 KM |
| Codsall | 4616 | CSL | 4.77 KM |
| Wolverhampton | 1218 | WVH | 6.68 KM |
Nearby Listings
| Address | Price | Type | Score | Distance |
|---|---|---|---|---|
| 15 Wood Road, Tettenhall Wood, Wolverhampton, WV6 8NG | £ 649,950 | BUY | 7 / 10 | 0.00 KM |
| Teotta Drive, Tettenhall, Wolverhampton | £ 525,000 | BUY | 7 / 10 | 0.01 KM |
| Thorneycroft, Wood Road, Tettenhall, WV6 8PR | £ 250,000 | BUY | 5 / 10 | 0.06 KM |
| Thorneycroft, Wood Road, Wolverhampton | £ 189,999 | BUY | 5 / 10 | 0.08 KM |
| Thimble Cottage, Wood Road, Tettenhall WV6 8NF | £ 237,500 | BUY | Unknown | 0.09 KM |
Nearby Properties
| Address | Price | Distance |
|---|---|---|
| 78 Wood Road | £ 220,000 | 0.07 KM |
| 52 Wood Road | £ 93,000 | 0.07 KM |
| 70 Wood Road | £ 125,000 | 0.07 KM |
| 76 Wood Road | £ 255,000 | 0.07 KM |
| 11 Teotta Drive | £ 375,000 | 0.09 KM |