Drimsynie, Drimsynie Holiday Village, PA24
By Clyde Property
£ 134,000
Reviews
3 out of 5 stars
Clyde Property says ..
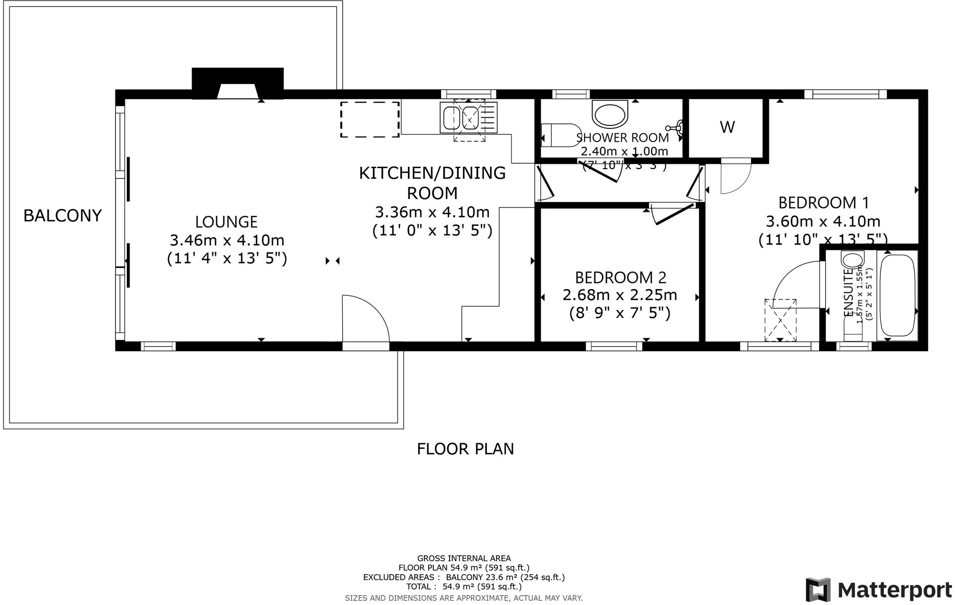
Within the ever popular Drimsynie Holiday Village, this beautiful two bedroomed lodge offers great accommodation that is fully furnished to a high standard and finished to an excellent specification.
Property Oracle says ..
The property is a modern chalet located in Drimsynie Holiday Village in Argyll and Bute, Scotland. Based on the provided information and images, the chalet appears to be in excellent condition. The interior is modern, clean, and well-maintained. The exterior is also in good condition, with a recently constructed deck and landscaping. There is no evidence of wear and tear or the need for renovation. The property includes a deck, which could be considered a small outdoor space. While not a large garden, it offers some private outdoor area. The list price of £134,000 is significantly lower than the average house price in the area (£481,154). However, it’s important to note that this is a chalet within a holiday village, not a detached house. The average price per square foot in the area is £337, while the price per sqft for this property is considerably lower. Considering the condition, the relatively small size (576.95 sqft), and the fact that it’s located within a holiday park, the price appears reasonable. However, the lack of information on comparable properties within the park makes a definitive statement difficult. The nearby comparable properties are significantly different in type and size, making direct comparison challenging. The location is scenic, with views of the water and mountains. However, the proximity to schools, transportation, and other amenities is unknown. The holiday park setting may appeal to some buyers but not others. More information on the facilities within the holiday park would be beneficial.
Therefore, we give this property 7 / 10. *Disclaimer: This is our option and does constitute a recommendation or financial advice. Do your own research. *
- Price
- 8
- Condition
- 10
- Location
- 7
- Land
- 3
- Bedrooms
- 2
- Bathrooms
- 2
- Sqft (est)
- 576.95
- Lot (est)
- 590.94
The heatmap indicates the level of crime in the area. The color of the heatmap indicates the crime severity and recency.
Metrics Year-on-Year
- Average area value
- 283,333.00 £Decreased by 37.45 %
- Est sale value
- 191,547.40 £Increased by 2.15 %
- Average area rental value
- 1,195.00 £/moDecreased by 32.68 %
- Est letting value
- 576.95 £/moUnchanged by 0.00 %
- Est rental Yield
- 5.06 %Increased by 7.66 %
- Crime Rate
- 0.00 %
Agent Activity
Clyde Property created the listing.
Images
Nearby Streets
| Name | Average Price | Average Sqft | Distance |
|---|---|---|---|
| Drimsynie Court | £ 0 | 0 | 0.00 KM |
| Douglas Pier | £ 0 | 0 | 0.00 KM |
| Viewfield Terrace | £ 192,498 | 0 | 0.00 KM |
| Donich View | £ 0 | 0 | 0.00 KM |
Nearby Listings
| Address | Price | Type | Score | Distance |
|---|---|---|---|---|
| Drimsynie, Drimsynie Holiday Village, PA24 | £ 134,000 | BUY | 7 / 10 | 0.00 KM |
| Luxury Caravan Plot 128, Drimsynie, Lochgoilhead, Argyle, PA24 8AD | £ 57,000 | BUY | 7 / 10 | 0.00 KM |
| Brand New 2023 ABI Kielder Luxury Lodge – Drimsynie Estate Holiday Village, Lochgoilhead | £ 235,000 | BUY | 7 / 10 | 0.00 KM |
| Drimsynie, Drimsynie Holiday Village, PA24 | £ 235,000 | BUY | 6 / 10 | 0.00 KM |
| Plot 26, Drimsynie, PA24 | £ 59,500 | BUY | Unknown | 0.00 KM |