Roebuck Close, Horsham, West Sussex, RH13
By Mayhew Estates
£ 240,000
Reviews
3 out of 5 stars
Mayhew Estates says ..
GREAT FIRST PURCHASE! A well presented two bedroom 1st floor maisonette situated on the North side of Horsham. CHAIN FREE
Property Oracle says ..
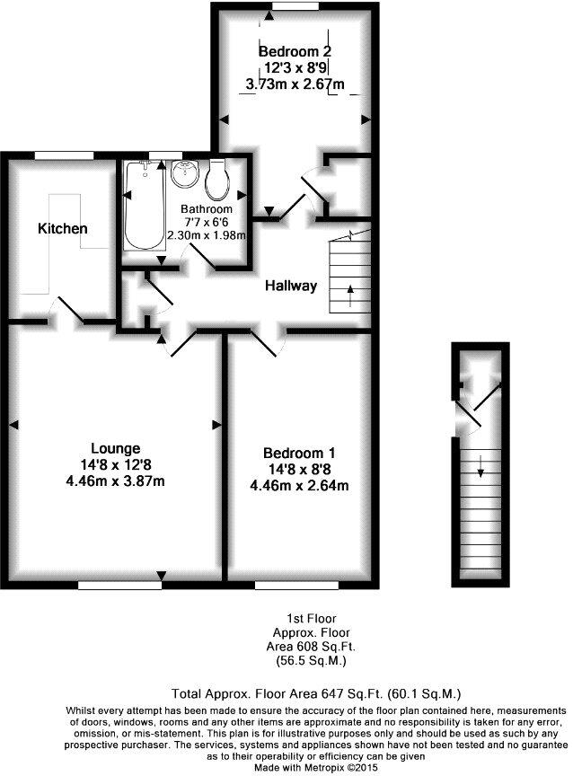
The property is a 2-bedroom maisonette located in Roebuck Close, Horsham, West Sussex. The location benefits from being close to several primary schools with good Ofsted ratings, such as Leechpool Primary School (0.37km) and Northolmes Junior School (0.66km). The proximity to Littlehaven train station (1.83km) provides convenient access to commuting routes. The property itself appears to be in reasonable condition based on the provided images, though a full survey would be recommended. The property includes a small garden. Considering the average price per sqft in the area is £478 and the property is listed at £240,000 with 600 sqft, the price seems relatively reasonable compared to similar properties in the area, although smaller than average. However, the lack of plot size information impacts the overall assessment.
Therefore, we give this property 6 / 10. *Disclaimer: This is our option and does constitute a recommendation or financial advice. Do your own research. *
- Price
- 7
- Condition
- 7
- Location
- 8
- Land
- 4
- Bedrooms
- 2
- Bathrooms
- 1
- Sqft (est)
- 600.00
The heatmap indicates the level of crime in the area. The color of the heatmap indicates the crime severity and recency.
Metrics Year-on-Year
- Average area value
- 575,000.00 £Decreased by 8.68 %
- Est sale value
- 446,400.00 £Increased by 43.08 %
- Average area rental value
- 3,275.00 £/moIncreased by 52.11 %
- Est letting value
- 2,400.00 £/moIncreased by 300.00 %
- Est rental Yield
- 6.83 %Increased by 66.59 %
- Crime Rate
- 25.00 %Unchanged by 0.00 %
Agent Activity
Mayhew Estates created the listing.
Nearby Schools
| Name | Type | Ofsted | Distance |
|---|---|---|---|
| Leechpool Primary School | Community School | Good | 0.37 KM |
| Northolmes Junior School, Horsham | Community School | Good | 0.66 KM |
| St Robert Southwell Catholic Primary School, Horsham | Voluntary Aided School | Good | 0.94 KM |
| Roffey Children & Family Centre | Children's Centre | 1.16 KM | |
| Littlehaven Infant School | Community School | Good | 1.34 KM |
Images
Nearby Streets
| Name | Average Price | Average Sqft | Distance |
|---|---|---|---|
| Woodland Way | £ 0 | 0 | 0.00 KM |
| Church Lane | £ 0 | 0 | 0.00 KM |
| High Birch Close | £ 725,000 | 0 | 0.00 KM |
| Church Road | £ 0 | 0 | 0.00 KM |
| Willow Road | £ 0 | 0 | 0.00 KM |
Nearby Transport
| Name | NLC | TLC | Distance |
|---|---|---|---|
| Littlehaven | 5498 | LVN | 1.83 KM |
| Horsham | 5309 | HRH | 2.97 KM |
| Faygate | 5493 | FGT | 4.23 KM |
| Warnham | 5316 | WNH | 4.62 KM |
| Christs Hospital | 5319 | CHH | 8.15 KM |
Nearby Listings
| Address | Price | Type | Score | Distance |
|---|---|---|---|---|
| Roebuck Close, Horsham, West Sussex, RH13 | £ 240,000 | BUY | 6 / 10 | 0.00 KM |
| Roebuck Close, Horsham | £ 210,000 | BUY | 7 / 10 | 0.06 KM |
| Roebuck Close, Horsham | £ 200,000 | BUY | Unknown | 0.07 KM |
| Roebuck Close, Horsham | £ 260,000 | BUY | 6 / 10 | 0.09 KM |
| South Holmes Road, Horsham | £ 185,000 | BUY | Unknown | 0.10 KM |
Nearby Properties
| Address | Price | Distance |
|---|---|---|
| 73 Roebuck Close | £ 198,000 | 0.05 KM |
| 71 Roebuck Close | £ 175,000 | 0.05 KM |
| 33 Roebuck Close | £ 180,000 | 0.05 KM |
| 39 Roebuck Close | £ 207,500 | 0.05 KM |
| 21 Roebuck Close | £ 110,000 | 0.05 KM |