Marsh & Parsons says ..
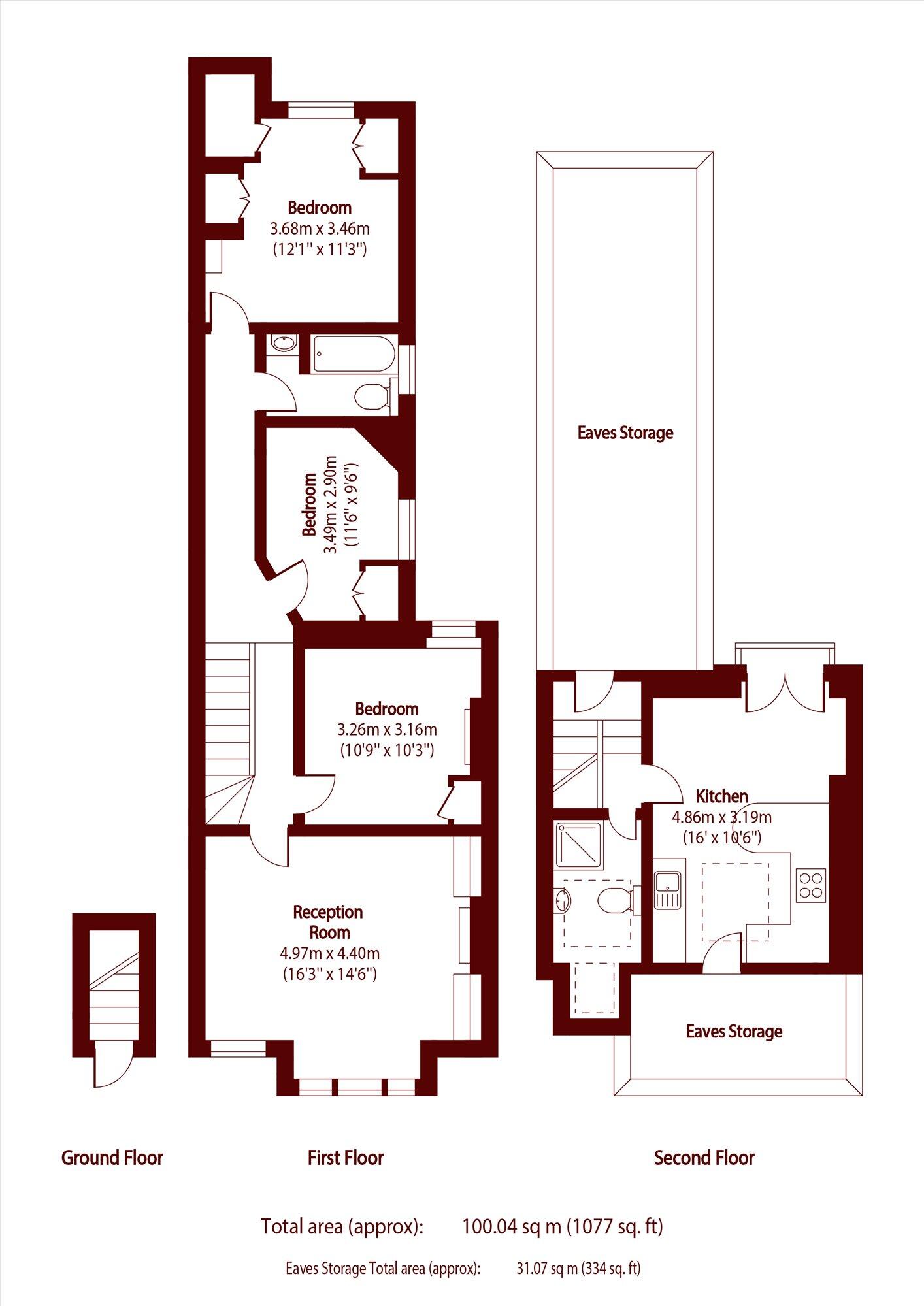
A split level three bedroom apartment with spacious accommodation arranged over the first and second floors of this well maintained period house. A wonderful reception room offers plenty of natural light whilst the property has three double bedrooms, a kitchen/dining room and two bathrooms.
Property Oracle says ..
This is a 3-bedroom flat in Fulham Broadway, London. The property is in a good location, close to transportation, schools, and local amenities. While the property appears to be in generally good condition, some areas may benefit from renovation. The price is slightly above the average for the area, but this is justifiable given the size and location of the flat. It retains some traditional features.
Therefore, we give this property 5 / 10. *Disclaimer: This is our option and does constitute a recommendation or financial advice. Do your own research. *
- Price
- 7
- Condition
- 6
- Location
- 7
- Land
- 3
- Bedrooms
- 3
- Bathrooms
- 2
- Sqft (est)
- 1,076.82
The heatmap indicates the level of crime in the area. The color of the heatmap indicates the crime severity and recency.
Metrics Year-on-Year
- Average area value
- 778,925.00 £Decreased by 20.14 %
- Est sale value
- 1,114,508.70 £Increased by 17.08 %
- Average area rental value
- 2,952.00 £/moIncreased by 25.08 %
- Est letting value
- 3,230.46 £/moIncreased by 50.00 %
- Est rental Yield
- 4.55 %Increased by 56.90 %
- Crime Rate
- 2.00 %Unchanged by 0.00 %
Agent Activity
Marsh & Parsons created the listing.
Nearby Schools
| Name | Type | Ofsted | Distance |
|---|---|---|---|
| Fulham Primary School | Academy Converter | Good | 0.13 KM |
| The London Oratory School | Academy Converter | 0.41 KM | |
| St Cuthbert With St Matthias Cofe Primary School | Voluntary Aided School | Good | 0.70 KM |
| St Cuthbert With St Matthias Ce Primary School And Earl'S Court Children'S Centre | Children's Centre | 0.70 KM | |
| Psla Children'S Centre Services At Normand Croft Community School | Children's Centre Linked Site | 0.73 KM |
Images
Nearby Streets
| Name | Average Price | Average Sqft | Distance |
|---|---|---|---|
| Wharfedale Street | £ 0 | 0 | 0.00 KM |
| West Road | £ 0 | 0 | 0.00 KM |
| Old Brompton Road | £ 0 | 0 | 0.00 KM |
| Farm Lane | £ 1,185,000 | 0 | 0.00 KM |
| Kempsford Gardens | £ 0 | 0 | 0.00 KM |
Nearby Transport
| Name | NLC | TLC | Distance |
|---|---|---|---|
| West Brompton | 8875 | WBP | 0.37 KM |
| Imperial Wharf | 9586 | IMW | 1.86 KM |
| Kensington (Olympia) | 3092 | KPA | 2.14 KM |
| Wandsworth Town | 5576 | WNT | 2.74 KM |
| Shepherd'S Bush | 9587 | SPB | 3.29 KM |
Nearby Listings
| Address | Price | Type | Score | Distance |
|---|---|---|---|---|
| Halford Road, London | £ 800,000 | BUY | 5 / 10 | 0.00 KM |
| Farm Lane, Fulham | £ 765,000 | BUY | 5 / 10 | 0.03 KM |
| Ongar Road, West Brompton, London, SW6 | £ 1,950,000 | BUY | 7 / 10 | 0.07 KM |
| Ongar Road, London | £ 1,950,000 | BUY | 6 / 10 | 0.07 KM |
| Ongar Road, London | £ 525,000 | BUY | 5 / 10 | 0.07 KM |
Nearby Properties
| Address | Price | Distance |
|---|---|---|
| 47 Halford Road | £ 290,000 | 0.01 KM |
| 35a Halford Road | £ 500,000 | 0.01 KM |
| 41 Halford Road | £ 1,400,000 | 0.01 KM |
| 51 Halford Road | £ 350,000 | 0.01 KM |
| 29a Halford Road | £ 185,000 | 0.01 KM |