Bridge Close, Williton, TA4
By Wilkie May & Tuckwood
£ 350,000
Reviews
3 out of 5 stars
Wilkie May & Tuckwood says ..
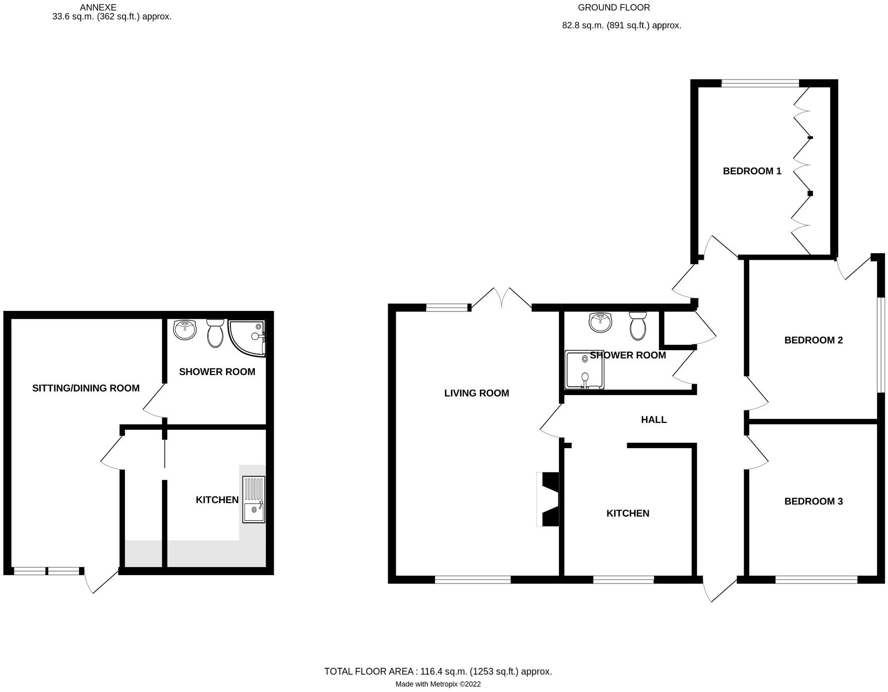
POPULAR CUL-DE-SAC LOCATION WITH VIEWS - An individual detached three/four bedroom detached house situated in a popular cul-de sac with a self-contained annexe and far reaching views.
Property Oracle says ..
This detached property on Bridge Close in Williton offers a blend of comfortable living and access to local amenities. The house features four bedrooms and two bathrooms, making it suitable for families. The interior is generally well-maintained, though some areas could benefit from modernisation. A notable feature is the good-sized, well-kept garden, providing ample outdoor space. The property’s location in Williton provides access to local schools and services, while also being within reach of the Somerset countryside. Considering its size, condition, and location, the asking price of £350,000 appears reasonable within the current market.
Therefore, we give this property 7 / 10. *Disclaimer: This is our option and does constitute a recommendation or financial advice. Do your own research. *
- Price
- 7
- Condition
- 7
- Location
- 7
- Land
- 8
- Bedrooms
- 4
- Bathrooms
- 2
- Sqft (est)
- 1,252.92
The heatmap indicates the level of crime in the area. The color of the heatmap indicates the crime severity and recency.
Metrics Year-on-Year
- Average area value
- 348,333.00 £Increased by 1.68 %
- Est sale value
- 309,471.24 £Decreased by 13.03 %
- Average area rental value
- 1,048.00 £/moIncreased by 24.76 %
- Est letting value
- 0.00 £/mo
- Est rental Yield
- 3.61 %Increased by 22.79 %
- Crime Rate
- 7.00 %Unchanged by 0.00 %
Agent Activity
Wilkie May & Tuckwood created the listing.
Nearby Schools
| Name | Type | Ofsted | Distance |
|---|---|---|---|
| Quantock East | Children's Centre | 0.38 KM | |
| Danesfield Church Of England Voluntary Controlled Community Middle School | Academy Converter | Requires improvement | 1.00 KM |
| St Peter'S Church Of England First School | Academy Converter | Good | 1.02 KM |
| Quantock West | Children's Centre | 2.10 KM | |
| Knights Templar Community Church School & Nursery | Voluntary Aided School | Good | 2.10 KM |
Images
Nearby Streets
| Name | Average Price | Average Sqft | Distance |
|---|---|---|---|
| Danesborough View West | £ 460,000 | 0 | 0.00 KM |
| Danesborough View | £ 0 | 0 | 0.00 KM |
| Brook Road | £ 0 | 0 | 0.00 KM |
| Fairfield Drive | £ 0 | 0 | 0.00 KM |
| Orchard Way | £ 0 | 0 | 0.00 KM |
Nearby Listings
| Address | Price | Type | Score | Distance |
|---|---|---|---|---|
| Bridge Close, Williton, TA4 | £ 350,000 | BUY | 7 / 10 | 0.00 KM |
| Bridge Close, Williton, Taunton, Somerset, TA4 | £ 330,000 | BUY | 6 / 10 | 0.02 KM |
| Bridge Close, Williton, Taunton | £ 360,000 | BUY | 7 / 10 | 0.02 KM |
| Bridge Close, Williton, Taunton | £ 275,000 | BUY | 6 / 10 | 0.02 KM |
| Bridge Close, Williton, TA4 | £ 335,000 | BUY | 6 / 10 | 0.03 KM |
Nearby Properties
| Address | Price | Distance |
|---|---|---|
| 2 Bridge Close | £ 250,000 | 0.02 KM |
| 3 Bridge Close | £ 66,000 | 0.02 KM |
| 6 Bridge Close | £ 191,000 | 0.02 KM |
| 15 Bridge Close | £ 268,000 | 0.02 KM |
| 9 Bridge Close | £ 265,000 | 0.02 KM |