Charrington Tower, 11 Biscayne Avenue, E14
By JOHNS&CO
£ 600,000
Reviews
3 out of 5 stars
JOHNS&CO says ..
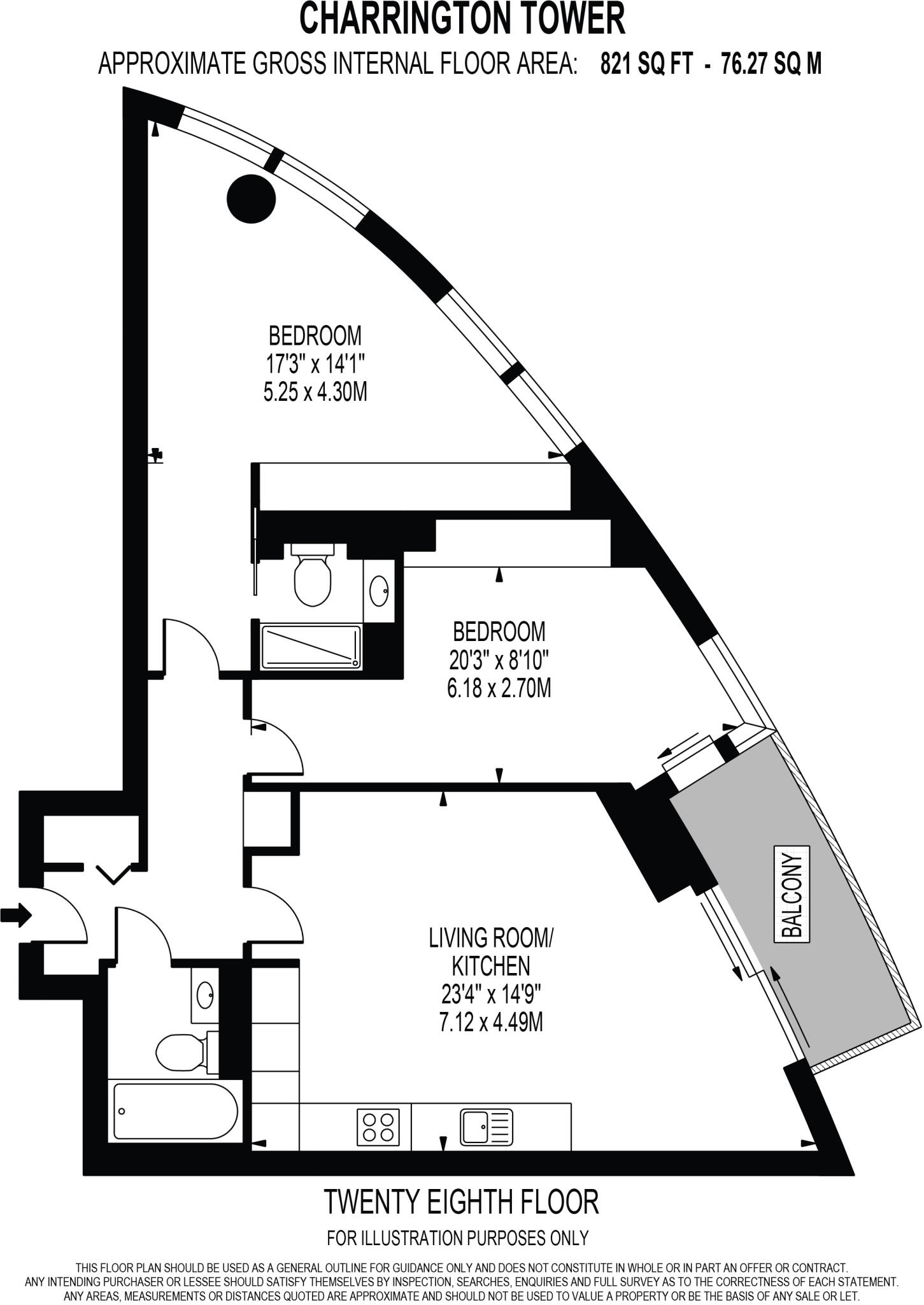
JOHNS&CO are excited to present this spacious two bedroom apartment on the 28th floor of the iconic Charrington Tower offering profound views of the River Thames and O2.
Property Oracle says ..
This two-bedroom, two-bathroom apartment in Charrington Tower, Mile End, offers contemporary living in a well-maintained building. The apartment’s interior is stylish and modern, featuring a sleek kitchen and bathrooms. The photos reveal a high-quality finish and modern design, indicating a relatively new or recently renovated property. Large windows offer excellent natural light. Access to a balcony provides outdoor space, though limited in size. The location within Mile End offers convenient access to various parts of London, proximity to Canary Wharf being a key feature. However, the property’s lack of a garden is a significant drawback, typical for apartment living. Further data regarding specific distances to public transport and local amenities and a comparison with similar properties with sqft data are needed to ensure the pricing is fully justified. The lack of plot size data in the initial information hinders a more precise assessment.
Therefore, we give this property 6 / 10. *Disclaimer: This is our option and does constitute a recommendation or financial advice. Do your own research. *
- Price
- 7
- Condition
- 9
- Location
- 7
- Land
- 1
- Bedrooms
- 2
- Bathrooms
- 2
- Sqft (est)
- 820.96
The heatmap indicates the level of crime in the area. The color of the heatmap indicates the crime severity and recency.
Metrics Year-on-Year
- Average area value
- 478,379.00 £Increased by 16.22 %
- Est sale value
- 507,353.28 £Increased by 35.23 %
- Average area rental value
- 2,016.00 £/moIncreased by 5.00 %
- Est letting value
- 1,641.92 £/moUnchanged by 0.00 %
- Est rental Yield
- 5.06 %Decreased by 9.64 %
- Crime Rate
- 13.00 %Unchanged by 0.00 %
Agent Activity
JOHNS&CO created the listing.
Nearby Schools
| Name | Type | Ofsted | Distance |
|---|---|---|---|
| Cyril Jackson Primary School | Academy Converter | 0.36 KM | |
| Stepney Greencoat Church Of England Primary School | Voluntary Aided School | Good | 0.46 KM |
| Stebon Primary School | Academy Converter | Good | 0.49 KM |
| East India | Children's Centre Linked Site | 0.51 KM | |
| Around Poplar Children'S Centre | Children's Centre | 0.51 KM |
Images
Nearby Streets
| Name | Average Price | Average Sqft | Distance |
|---|---|---|---|
| Burdett Road | £ 750,000 | 0 | 0.00 KM |
| Burdett Road | £ 700,000 | 0 | 0.00 KM |
| Tivoli Way | £ 400,000 | 0 | 0.00 KM |
| The Mitre | £ 0 | 0 | 0.00 KM |
| Haven Mews | £ 0 | 0 | 0.00 KM |
Nearby Transport
| Name | NLC | TLC | Distance |
|---|---|---|---|
| Limehouse | 7491 | LHS | 1.28 KM |
| New Cross | 5150 | NWX | 2.91 KM |
| Canada Water | 1659 | ZCW | 2.91 KM |
| Rotherhithe | 1039 | ROE | 2.96 KM |
| Surrey Quays | 1083 | SQE | 3.08 KM |
Nearby Listings
| Address | Price | Type | Score | Distance |
|---|---|---|---|---|
| Charrington Tower, Biscayne Avenue, London, E14 | £ 470,000 | BUY | Unknown | 0.00 KM |
| Charrington Tower, New Providence Wharf, E14 | £ 1,450,000 | BUY | Unknown | 0.00 KM |
| Charrington Tower, New Providence Wharf, London, E14 | £ 360,000 | BUY | 5 / 10 | 0.00 KM |
| Charrington Tower, New Providence Wharf, E14 | £ 400,000 | BUY | 5 / 10 | 0.00 KM |
| Charrington Tower, 11 Biscayne Avenue, E14 | £ 450,000 | BUY | 5 / 10 | 0.00 KM |
Nearby Properties
| Address | Price | Distance |
|---|---|---|
| 803 Commercial Road | £ 175,000 | 0.14 KM |
| 817a Commercial Road | £ 170,000 | 0.14 KM |
| 3 Frances Wharf | £ 447,000 | 0.16 KM |
| 76 Pigott Street | £ 157,500 | 0.18 KM |
| 70 Pigott Street | £ 200,000 | 0.18 KM |