Point Road, Avening, Tetbury
ST

Point Road, Avening, Tetbury

By Strakers

£ 200,000

Reviews

3 out of 5 stars

Strakers says ..

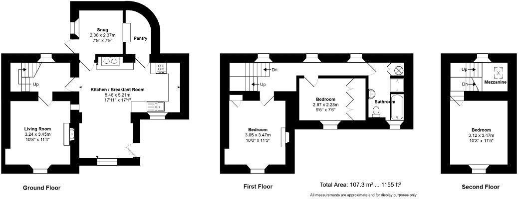
LOT 06 FOR SALE BY ONLINE AUCTION THURSDAY 4th DECEMBER 2025 GUIDE PRICE £200,000+ Interesting semi-detached character period cottage in need of renovation within the beautiful Cotswold village of Avening. The Old Post Office is most deceptive in size forming part o...

Property Oracle says ..

The property is a semi-detached house in Avening, a desirable village in the Cotswolds. The property has three bedrooms and one bathroom. It is 1,154.97 sqft. The property is in need of renovation and the garden is overgrown. The property is listed for £200,000, which is below the average price for the area. Avening Primary School is within walking distance. Stroud (Gloucs) train station is located 8.90KM away.

Therefore, we give this property 6 / 10. *Disclaimer: This is our option and does constitute a recommendation or financial advice. Do your own research. *

Price
9
Condition
3
Location
7
Land
6
Bedrooms
3
Bathrooms
1
Sqft (est)
1,154.97

The heatmap indicates the level of crime in the area. The color of the heatmap indicates the crime severity and recency.

Metrics Year-on-Year

Average area value
241,538.00 £
Decreased by 4.18 %
from 252,064.00 £
Est sale value
319,926.69 £
Increased by 2.97 %
from 310,686.93 £
Average area rental value
846.00 £/mo
Increased by 4.19 %
from 812.00 £/mo
Est letting value
0.00 £/mo
from 0.00 £/mo
Est rental Yield
4.20 %
Increased by 8.53 %
from 3.87 %
Crime Rate
26.00 %
Unchanged by 0.00 %
from 26.00 %

Agent Activity

  • Strakers created the listing.

Nearby Schools

NameTypeOfstedDistance
Avening Primary SchoolCommunity SchoolGood0.33 KM
Minchinhampton Primary AcademyAcademy ConverterGood3.41 KM
Sir William Romney'S SchoolAcademy ConverterGood3.90 KM
St Mary'S Church Of England Va Primary SchoolVoluntary Aided SchoolGood4.34 KM
Cotswold Chine SchoolOther Independent Special SchoolGood4.56 KM

Images

DSC01246.jpg DSC01261.jpg DSC01190-HDR.jpg DSC01204-HDR.jpg DSC01209-HDR.jpg DSC01224-HDR.jpg DSC01227-HDR.jpg DSC01230-HDR.jpg DSC01180.jpg DSC01178.jpg DSC01196-HDR.jpg DSC01200-HDR.jpg DSC01231-HDR.jpg DSC01205-HDR.jpg DSC01237-HDR.jpg DSC01177.jpg DSC01173.jpg DSC01186.jpg

Nearby Streets

NameAverage PriceAverage SqftDistance
Pound Hill £ 487,50000.00 KM
Step's Lane £ 000.00 KM
Lawrence Road £ 000.00 KM
Mays Lane £ 000.00 KM
West End £ 891,66700.00 KM

Nearby Transport

NameNLCTLCDistance
Stroud (Gloucs)4771STD8.90 KM

Nearby Listings

AddressPriceTypeScoreDistance
Point Road, Avening, Tetbury £ 200,000BUY6 / 100.00 KM
High Street, Avening, Tetbury, Gloucestershire, GL8 £ 855,000BUY7 / 100.10 KM
High Street, Avening, Tetbury, Gloucestershire, GL8 £ 525,000BUYUnknown0.12 KM
Tetbury Hill, Avening, Tetbury, Gloucestershire, GL8 £ 700,000BUYUnknown0.16 KM
Sandford Leaze, Avening, Tetbury, Gloucestershire, GL8 £ 400,000BUY7 / 100.16 KM

Nearby Properties

AddressPriceDistance
18 Point Road £ 232,0000.06 KM
6 Point Road £ 325,0000.06 KM
Old Bakery £ 535,0000.06 KM
20 Point Road £ 215,0000.06 KM
Point House £ 515,0000.06 KM