Kings Avenue, Flint, Flintshire, CH6
WI

Kings Avenue, Flint, Flintshire, CH6

By William Gleave

£ 180,000

Reviews

3 out of 5 stars

William Gleave says ..

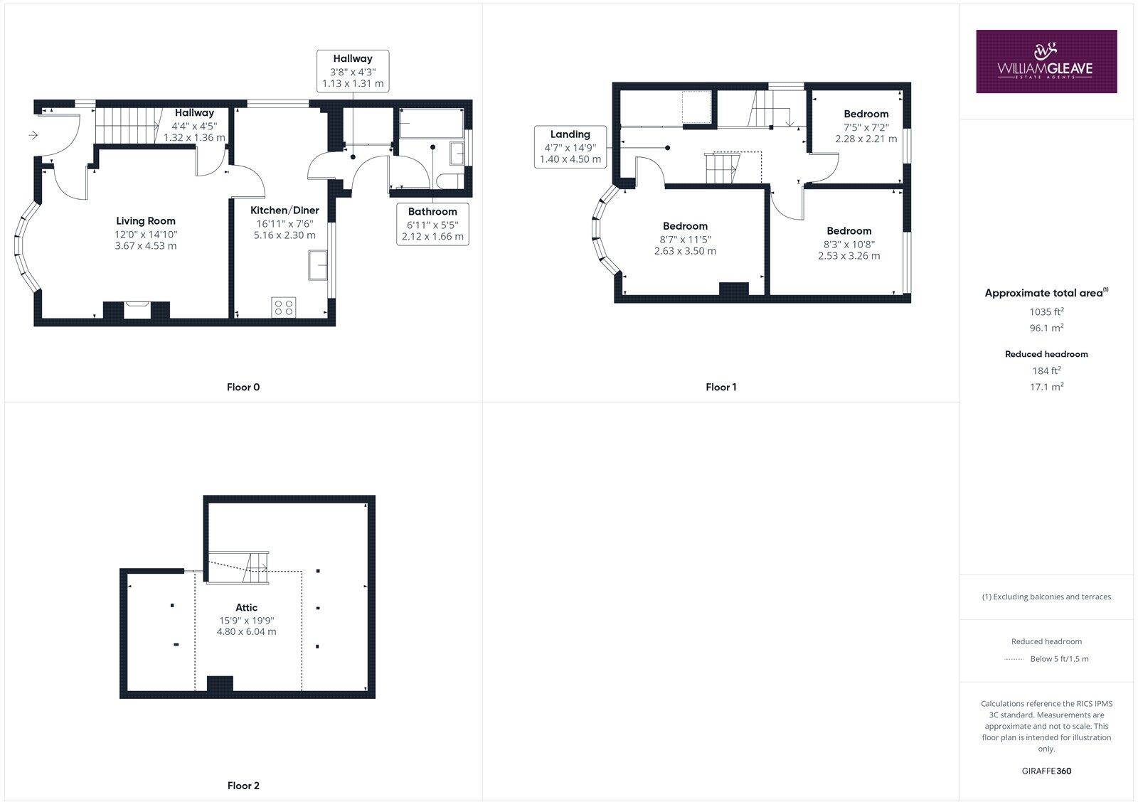
VIEWING HIGHLY RECOMMENDED | ATTENTION FIRST TIME BUYERS | SPACIOUS THROUGHOUT | ATTIC CONVERSION | OFF-ROAD PARKING FOR TWO CARS | SOUGHT AFTER LOCATION We are delighted to market this spacious and beautifully presented three/four-bedroom semi-detached property located on Kings Avenue...

Property Oracle says ..

Therefore, we give this property 6 / 10. *Disclaimer: This is our option and does constitute a recommendation or financial advice. Do your own research. *

Price
3
Condition
8
Location
7
Land
7
Bedrooms
3
Bathrooms
1
Sqft (est)
309.94

The heatmap indicates the level of crime in the area. The color of the heatmap indicates the crime severity and recency.

Metrics Year-on-Year

Average area value
267,500.00 £
Decreased by 0.99 %
from 270,182.00 £
Est sale value
79,654.58 £
Increased by 5.33 %
from 75,625.36 £
Average area rental value
1,107.00 £/mo
Decreased by 6.11 %
from 1,179.00 £/mo
Est letting value
309.94 £/mo
Unchanged by 0.00 %
from 309.94 £/mo
Est rental Yield
4.97 %
Decreased by 5.15 %
from 5.24 %
Crime Rate
24.00 %
Unchanged by 0.00 %
from 24.00 %

Agent Activity

  • William Gleave created the listing.

Nearby Schools

NameTypeOfstedDistance
Ysgol Gymraeg Croes AttiWelsh Establishment0.17 KM
St Richard Gwyn Roman Catholic High SchoolWelsh Establishment0.50 KM
St Mary'S R.C. Primary SchoolWelsh Establishment0.55 KM
Gwynedd C.P. SchoolWelsh Establishment1.18 KM
Flint High SchoolWelsh Establishment1.41 KM

Images

Picture No. 41 Picture No. 33 Picture No. 18 Picture No. 19 Picture No. 20 Picture No. 22 Picture No. 23 Picture No. 44 Picture No. 25 Picture No. 29 Picture No. 30 Picture No. 31 Picture No. 12 Picture No. 08 Picture No. 43 Picture No. 07 Picture No. 10 Picture No. 09 Picture No. 13 Picture No. 42 Picture No. 15 Picture No. 16 Picture No. 34 Picture No. 37 Picture No. 35 Picture No. 36 Picture No. 40

Nearby Streets

NameAverage PriceAverage SqftDistance
Cae Hir £ 000.00 KM
Trelawny Avenue £ 000.00 KM
Chester Street £ 000.00 KM
Croes Attilla £ 145,00000.00 KM
Ffordd Eillian £ 325,00000.00 KM

Nearby Transport

NameNLCTLCDistance
Flint2513FLN1.03 KM
Neston2139NES8.65 KM

Nearby Listings

AddressPriceTypeScoreDistance
Kings Avenue, Flint, Flintshire, CH6 £ 180,000BUY6 / 100.00 KM
Kings Avenue, Flint, Flintshire £ 155,000BUY5 / 100.03 KM
Queens Avenue, Flint, CH6 £ 170,000BUYUnknown0.06 KM
Queens Avenue, Flint, Flintshire, CH6 £ 90,000BUY5 / 100.09 KM
Kings Avenue, Flint, CH6 £ 165,000BUY6 / 100.11 KM

Nearby Properties

AddressPriceDistance
40 Maes Gwyn £ 120,0000.08 KM
61 Maes Gwyn £ 33,5000.08 KM
93 Maes Gwyn £ 105,0000.08 KM
38 Maes Gwyn £ 105,0000.08 KM
36 Maes Gwyn £ 87,5000.08 KM