Platt Lane, Standish, Wigan
By Tracy Phillips Estates
£ 130,000
Reviews
2 out of 5 stars
Tracy Phillips Estates says ..
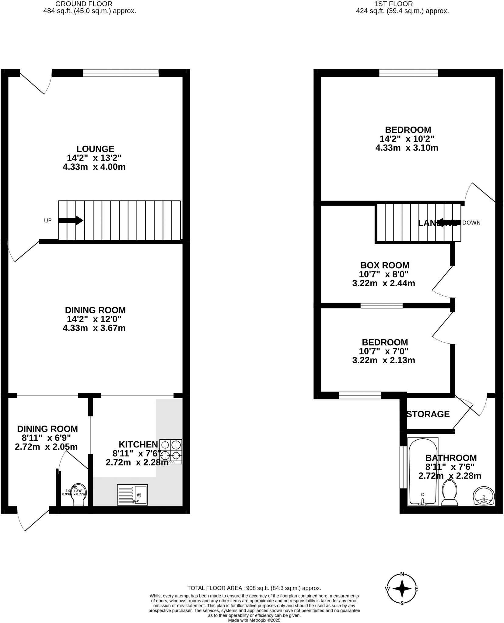
This end terraced cottage is in need of improvement but has great potential to create a lovely family home. It is located in delightful position, with open views to the front and rear, yet is also handy for access into Standish Village with its many local amenities and also provides easy access ...
Property Oracle says ..
This is a three-bedroom end-of-terrace property located on Platt Lane in Standish, Wigan. The property requires extensive renovation and is in poor condition. The property benefits from a garden. The property is listed for £130,000, which is below the average price for similar properties in the area. The average price per square foot in the area is £271, while this property is listed at approximately £151 per square foot. The property is located close to several schools and transport links.
Therefore, we give this property 5 / 10. *Disclaimer: This is our option and does constitute a recommendation or financial advice. Do your own research. *
- Price
- 8
- Condition
- 2
- Location
- 6
- Land
- 6
- Bedrooms
- 3
- Bathrooms
- 1
- Sqft (est)
- 856.30
The heatmap indicates the level of crime in the area. The color of the heatmap indicates the crime severity and recency.
Metrics Year-on-Year
- Average area value
- 254,758.00 £Increased by 10.42 %
- Est sale value
- 232,057.30 £Increased by 24.88 %
- Average area rental value
- 938.00 £/moDecreased by 4.58 %
- Est letting value
- 0.00 £/mo
- Est rental Yield
- 4.42 %Decreased by 13.50 %
- Crime Rate
- 48.00 %Unchanged by 0.00 %
Agent Activity
Tracy Phillips Estates created the listing.
Nearby Schools
| Name | Type | Ofsted | Distance |
|---|---|---|---|
| Standish St Wilfrid'S Church Of England Primary Academy | Academy Converter | 1.91 KM | |
| Standish & Aspull Children'S Centre | Children's Centre Linked Site | 1.97 KM | |
| St Marie'S Catholic Primary School Standish | Voluntary Aided School | Outstanding | 2.62 KM |
| Wood Fold Primary School | Community School | Outstanding | 3.11 KM |
| Coppull Parish Church Of England Primary School | Voluntary Aided School | Good | 3.47 KM |
Images
Nearby Streets
| Name | Average Price | Average Sqft | Distance |
|---|---|---|---|
| Bradley Lane | £ 167,500 | 0 | 0.00 KM |
| White Bridge Close | £ 0 | 0 | 0.00 KM |
| North Union Drive | £ 0 | 0 | 0.00 KM |
| Bracken Close | £ 240,000 | 0 | 0.00 KM |
| Bramble Close | £ 399,950 | 0 | 0.00 KM |
Nearby Transport
| Name | NLC | TLC | Distance |
|---|---|---|---|
| Adlington (Lancashire) | 2641 | ADL | 4.60 KM |
| Wigan Wallgate | 2406 | WGW | 5.88 KM |
| Wigan North Western | 2363 | WGN | 6.01 KM |
| Chorley | 2745 | CRL | 6.38 KM |
| Gathurst | 2397 | GST | 7.20 KM |
Nearby Listings
| Address | Price | Type | Score | Distance |
|---|---|---|---|---|
| Platt Lane, Standish, Wigan | £ 200,000 | BUY | Unknown | 0.00 KM |
| Platt Lane, Standish, Wigan | £ 210,000 | BUY | 6 / 10 | 0.00 KM |
| Platt Lane, Standish | £ 210,000 | BUY | 7 / 10 | 0.00 KM |
| Platt Lane, Standish, Wigan | £ 130,000 | BUY | 5 / 10 | 0.00 KM |
| Platt Lane, Standish, WN1 | £ 190,000 | BUY | 6 / 10 | 0.03 KM |
Nearby Properties
| Address | Price | Distance |
|---|---|---|
| 4 Platt Lane | £ 195,000 | 0.01 KM |
| 16 Platt Lane | £ 107,500 | 0.01 KM |
| 12 Platt Lane | £ 142,000 | 0.01 KM |
| 13 Platt Lane | £ 122,000 | 0.01 KM |
| 14 Platt Lane | £ 158,250 | 0.01 KM |