MA
Corson House, London City Island, E14
By Madison Brook
£ 900,000
Reviews
3 out of 5 stars
Madison Brook says ..
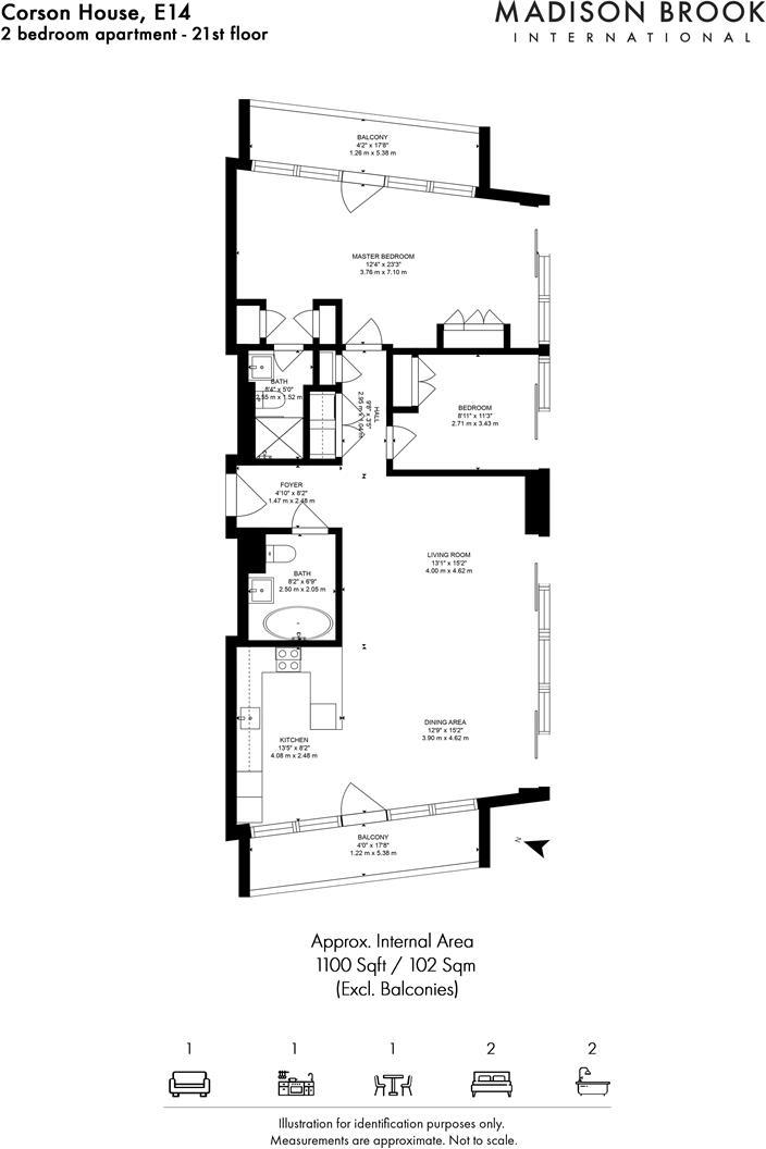
Welcome to the pinnacle of bespoke luxury at Corson House, London City Island. This stunning 21st-floor residence has been reimagined into a spacious and exquisitely designed three-bedroom home. Entirely renovated to the highest standard, the property seamlessly blends contemporary elegance with ...
Property Oracle says ..
Therefore, we give this property 6 / 10. *Disclaimer: This is our option and does constitute a recommendation or financial advice. Do your own research. *
- Price
- 6
- Condition
- 9
- Location
- 7
- Land
- 3
- Bedrooms
- 3
- Bathrooms
- 2
- Sqft (est)
- 1,008.58
The heatmap indicates the level of crime in the area. The color of the heatmap indicates the crime severity and recency.
Metrics Year-on-Year
- Average area value
- 772,015.00 £Increased by 8.00 %
- Est sale value
- 346,951.52 £Decreased by 60.82 %
- Average area rental value
- 1,899.00 £/moDecreased by 56.45 %
- Est letting value
- 0.00 £/moDecreased by 100.00 %
- Est rental Yield
- 2.95 %Decreased by 59.70 %
- Crime Rate
- 12.00 %Unchanged by 0.00 %
from 714,822.00 £
from 885,533.24 £
from 4,361.00 £/mo
from 5,042.90 £/mo
from 7.32 %
from 12.00 %
Agent Activity
Madison Brook created the listing.
Nearby Schools
| Name | Type | Ofsted | Distance |
|---|---|---|---|
| Faraday School | Other Independent School | 0.61 KM | |
| St Luke'S Primary School | Voluntary Aided School | Good | 0.77 KM |
| Star Primary School | Community School | Good | 0.84 KM |
| Learningsure College | Other Independent School | 0.98 KM | |
| Eastlea Community School | Academy Sponsor Led | 1.10 KM |
Images
Nearby Streets
| Name | Average Price | Average Sqft | Distance |
|---|---|---|---|
| Bridge Vista Walk | £ 425,000 | 0 | 0.00 KM |
| Leamouth Lifting Footbridge | £ 375,000 | 0 | 0.00 KM |
| Lookout Lane | £ 480,000 | 0 | 0.00 KM |
| Hope Street | £ 0 | 0 | 0.00 KM |
| Reubens Bridge | £ 575,000 | 0 | 0.00 KM |
Nearby Transport
| Name | NLC | TLC | Distance |
|---|---|---|---|
| West Ham | 7474 | WEH | 1.66 KM |
| Stratford | 6969 | SRA | 3.35 KM |
| Maze Hill | 5149 | MZH | 3.48 KM |
| Westcombe Park | 5151 | WCB | 3.51 KM |
| Maryland | 6970 | MYL | 3.62 KM |
Nearby Listings
| Address | Price | Type | Score | Distance |
|---|---|---|---|---|
| Corson House, 157 City Island Way, Canning Town, E14 | £ 365,000 | BUY | 6 / 10 | 0.00 KM |
| Corson House, London City Island, E14 | £ 900,000 | BUY | 6 / 10 | 0.00 KM |
| Corson House, 157 City Island Way, London, E14 | £ 485,000 | BUY | 6 / 10 | 0.01 KM |
| Corson House, London City Island, E14 | £ 475,000 | BUY | 6 / 10 | 0.01 KM |
| Corson House, 157 City Island Way, London, Greater London, E14 | £ 325,000 | BUY | 7 / 10 | 0.01 KM |
Nearby Properties
| Address | Price | Distance |
|---|---|---|
| 10 Oak Crescent | £ 320,000 | 0.40 KM |
| 4a Oak Crescent | £ 210,000 | 0.40 KM |
| 6 Wouldham Road | £ 255,000 | 0.43 KM |
| 1 Wouldham Road | £ 67,000 | 0.44 KM |
| 19 Gage Road | £ 230,000 | 0.46 KM |