Pearsons says ..
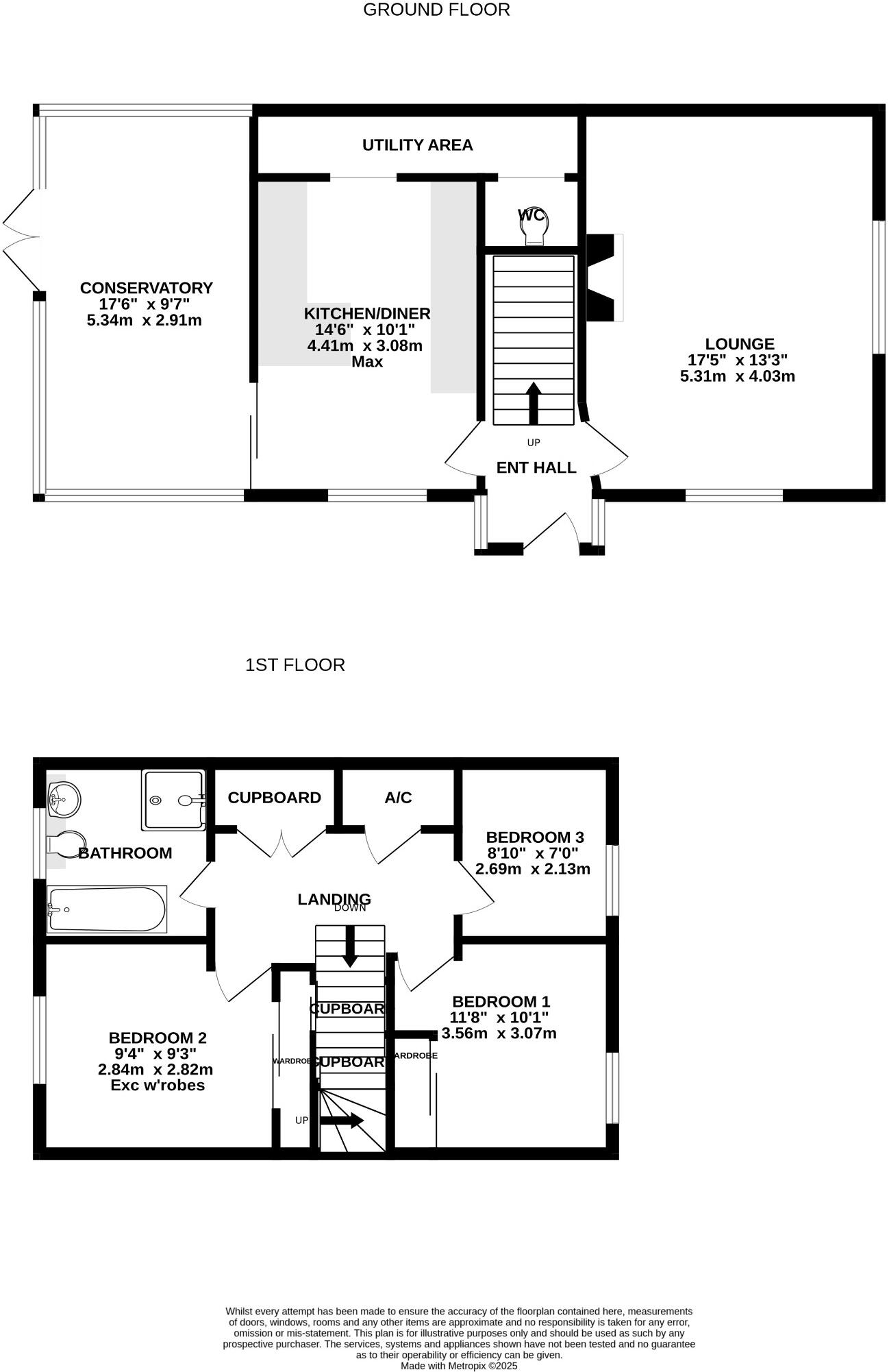
This 3 bedroom end of terrace house is situated in a popular location close to Hythe Village. The property benefits from UPVC double glazing, gas central heating, enclosed garden, garage and off road parking. Offered with NO CHAIN. An internal viewing is recommended.
Property Oracle says ..
Therefore, we give this property 6 / 10. *Disclaimer: This is our option and does constitute a recommendation or financial advice. Do your own research. *
- Price
- 7
- Condition
- 5
- Location
- 7
- Land
- 6
- Bedrooms
- 3
- Bathrooms
- 1
- Sqft (est)
- 802.00
The heatmap indicates the level of crime in the area. The color of the heatmap indicates the crime severity and recency.
Metrics Year-on-Year
- Average area value
- 471,111.00 £Increased by 12.11 %
- Est sale value
- 432,278.00 £Increased by 34.75 %
- Average area rental value
- 1,283.00 £/moDecreased by 19.91 %
- Est letting value
- 802.00 £/moUnchanged by 0.00 %
- Est rental Yield
- 3.27 %Decreased by 28.45 %
- Crime Rate
- 4.00 %Unchanged by 0.00 %
from 420,238.00 £
from 320,800.00 £
from 1,602.00 £/mo
from 802.00 £/mo
from 4.57 %
from 4.00 %
Agent Activity
Pearsons created the listing.
Nearby Schools
| Name | Type | Ofsted | Distance |
|---|---|---|---|
| The Waterside Children'S Centre | Children's Centre | 0.73 KM | |
| Waterside Primary School | Community School | Good | 0.80 KM |
| Wildground Junior School | Community School | Good | 1.11 KM |
| Wildground Infant School | Community School | Good | 1.22 KM |
| Hythe Primary School | Community School | Requires improvement | 1.40 KM |
Images
Nearby Streets
| Name | Average Price | Average Sqft | Distance |
|---|---|---|---|
| Lammas Road | £ 305,000 | 0 | 0.00 KM |
| Rose Close | £ 0 | 0 | 0.00 KM |
| Deerleap Way | £ 302,475 | 0 | 0.00 KM |
| Fulmar Drive | £ 0 | 0 | 0.00 KM |
| Victory Court | £ 0 | 0 | 0.00 KM |
Nearby Transport
| Name | NLC | TLC | Distance |
|---|---|---|---|
| Woolston | 5925 | WLS | 5.20 KM |
| Sholing | 5930 | SHO | 5.73 KM |
| Southampton Central | 5932 | SOU | 5.86 KM |
| Netley | 5911 | NTL | 6.51 KM |
| Bitterne | 5945 | BTE | 7.19 KM |
Nearby Listings
| Address | Price | Type | Score | Distance |
|---|---|---|---|---|
| Rosebery Avenue, Hythe | £ 319,950 | BUY | 6 / 10 | 0.00 KM |
| Rosebery Avenue, Hythe, Southampton | £ 325,000 | BUY | 6 / 10 | 0.04 KM |
| Rosebery Avenue, Hythe | £ 360,000 | BUY | 7 / 10 | 0.05 KM |
| Lammas Road, Hythe, Southampton, Hampshire, SO45 | £ 300,000 | BUY | Unknown | 0.06 KM |
| Lammas Road, SO45 | £ 275,000 | BUY | 6 / 10 | 0.07 KM |
Nearby Properties
| Address | Price | Distance |
|---|---|---|
| 71 Rosebery Avenue | £ 215,000 | 0.04 KM |
| 57 Rosebery Avenue | £ 345,500 | 0.04 KM |
| 59 Rosebery Avenue | £ 225,000 | 0.04 KM |
| 55 Rosebery Avenue | £ 190,000 | 0.04 KM |
| 69 Rosebery Avenue | £ 234,250 | 0.04 KM |