Chancellors says ..
Presented to market following extensive refurbishment, this generously proportioned two double bedroom apartment boasts Kitching/ dining space, living/ dining space and a modern shower room along with the enjoyment of communal garden to the rear. Early bookings recommended!
Property Oracle says ..
The property is a two-bedroom apartment located in Bagshot, Surrey. It benefits from being relatively close to a train station and several well-regarded schools. The photos suggest the property is in good condition following extensive refurbishment. The communal garden provides some outdoor area. Considering its condition, location, and size, the list price could be considered reasonable for a smaller property in the area.
Therefore, we give this property 6 / 10. *Disclaimer: This is our option and does constitute a recommendation or financial advice. Do your own research. *
- Price
- 7
- Condition
- 8
- Location
- 7
- Land
- 4
- Bedrooms
- 2
- Bathrooms
- 1
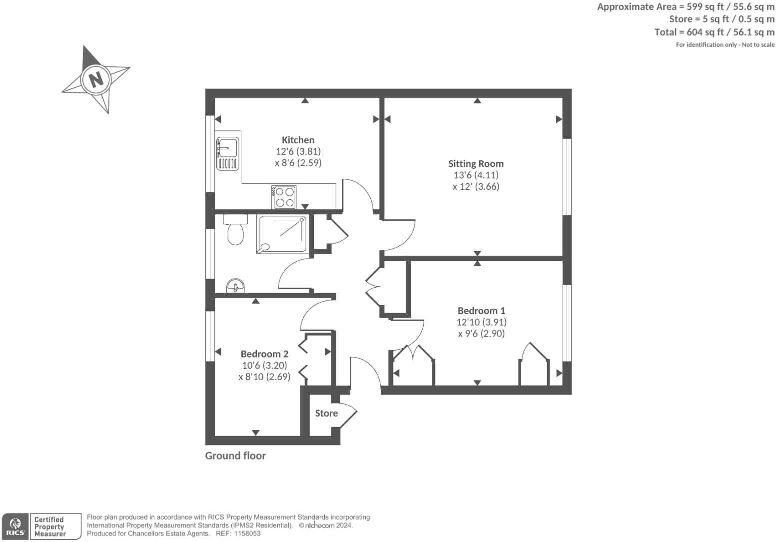
- Sqft (est)
- 603.86
The heatmap indicates the level of crime in the area. The color of the heatmap indicates the crime severity and recency.
Metrics Year-on-Year
- Average area value
- 1,043,333.00 £Increased by 83.77 %
- Est sale value
- 797,095.20 £Increased by 225.12 %
- Average area rental value
- 6,842.00 £/moIncreased by 222.89 %
- Est letting value
- 4,830.88 £/moIncreased by 700.00 %
- Est rental Yield
- 7.87 %Increased by 75.67 %
- Crime Rate
- 8.00 %Unchanged by 0.00 %
Agent Activity
Chancellors created the listing.
Nearby Schools
| Name | Type | Ofsted | Distance |
|---|---|---|---|
| Connaught Junior School | Academy Converter | Good | 0.29 KM |
| Bagshot Infant School | Community School | Good | 0.90 KM |
| Bagshot Infant School & Sure Start Children'S Centre | Children's Centre | 0.90 KM | |
| Hammond School | Academy Converter | Good | 1.02 KM |
| Lightwater Village School | Academy Converter | 1.42 KM |
Images
Nearby Streets
| Name | Average Price | Average Sqft | Distance |
|---|---|---|---|
| Elizabeth Avenue | £ 450,000 | 0 | 0.00 KM |
| Butler Road | £ 695,000 | 0 | 0.00 KM |
| Hamilton Close | £ 0 | 0 | 0.00 KM |
| Wardle Close | £ 463,333 | 0 | 0.00 KM |
| Woodside Close | £ 0 | 0 | 0.00 KM |
Nearby Transport
| Name | NLC | TLC | Distance |
|---|---|---|---|
| Bagshot | 5681 | BAG | 0.87 KM |
| Ascot (Berks) | 5666 | ACT | 5.59 KM |
| Camberley | 5682 | CAM | 6.84 KM |
| Sunningdale | 5671 | SNG | 7.03 KM |
| Martins Heron | 5692 | MAO | 7.04 KM |
Nearby Listings
| Address | Price | Type | Score | Distance |
|---|---|---|---|---|
| Kemp Court Bagshot | £ 800,000 | BUY | 7 / 10 | 0.10 KM |
| Bagshot, Surrey, GU19 | £ 650,000 | BUY | 7 / 10 | 0.12 KM |
| Kemp Court, Bagshot, Surrey, GU19 | £ 850,000 | BUY | 7 / 10 | 0.12 KM |
| Kemp Court, Bagshot | £ 425,000 | BUY | 7 / 10 | 0.17 KM |
| Elizabeth Avenue, Bagshot, Surrey, GU19 | £ 525,000 | BUY | 7 / 10 | 0.18 KM |
Nearby Properties
| Address | Price | Distance |
|---|---|---|
| 4 Broomsquires Road | £ 437,500 | 0.05 KM |
| 39 Broomsquires Road | £ 400,000 | 0.05 KM |
| 27 Broomsquires Road | £ 565,000 | 0.05 KM |
| 15 Broomsquires Road | £ 538,000 | 0.05 KM |
| 16 Broomsquires Road | £ 425,000 | 0.05 KM |