Pontefract WF8 2NL, Pontefract, WF8 2NL
By KEAZE LIMITED
£ 60,000
Reviews
3 out of 5 stars
KEAZE LIMITED says ..
Located within easy reach of Pontefract town centre, excellent local schools, shops and commuter links via road and rail, this home combines modern living with a convenient setting.
Property Oracle says ..
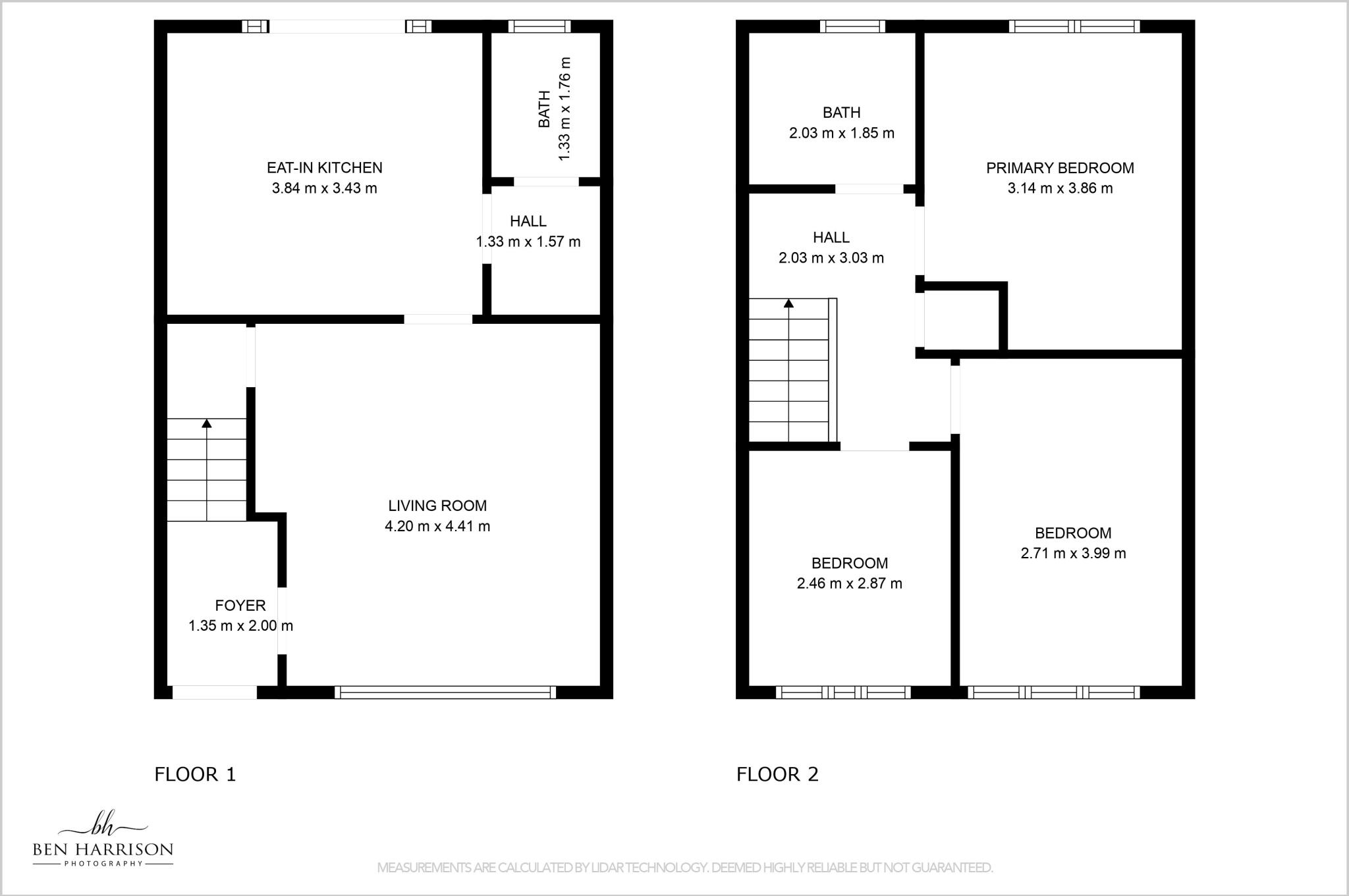
This three-bedroom semi-detached house in Pontefract, West Yorkshire, is listed at £60,000. The property benefits from a modern kitchen and bathroom, and has a well-maintained rear garden. The location is convenient, with nearby schools and train stations. However, the list price is significantly below the average price for the area, which may indicate a need for further investigation into the property’s condition or other potential factors affecting its value. More information on the plot size would be beneficial in providing a fuller analysis.
Therefore, we give this property 6 / 10. *Disclaimer: This is our option and does constitute a recommendation or financial advice. Do your own research. *
- Price
- 3
- Condition
- 8
- Location
- 7
- Land
- 7
- Bedrooms
- 3
- Bathrooms
- 1
- Sqft (est)
- 840.34
The heatmap indicates the level of crime in the area. The color of the heatmap indicates the crime severity and recency.
Metrics Year-on-Year
- Average area value
- 318,333.00 £Increased by 44.12 %
- Est sale value
- 253,782.68 £Increased by 61.50 %
- Average area rental value
- 891.00 £/moDecreased by 0.22 %
- Est letting value
- 0.00 £/mo
- Est rental Yield
- 3.36 %Decreased by 30.72 %
- Crime Rate
- 12.00 %Unchanged by 0.00 %
Agent Activity
KEAZE LIMITED created the listing.
Nearby Schools
| Name | Type | Ofsted | Distance |
|---|---|---|---|
| Cherry Tree Academy | Academy Sponsor Led | Requires improvement | 0.36 KM |
| De Lacy Primary School | Academy Sponsor Led | Requires improvement | 0.39 KM |
| Holy Family And St Michael'S Catholic Primary School, A Voluntary Academy | Academy Converter | Good | 0.45 KM |
| Harewood Centre Nursery School | Local Authority Nursery School | Good | 0.50 KM |
| Pomfret Children'S Centre | Children's Centre | 0.62 KM |
Images
Nearby Streets
| Name | Average Price | Average Sqft | Distance |
|---|---|---|---|
| The Close | £ 150,000 | 0 | 0.00 KM |
| The Circle | £ 0 | 0 | 0.00 KM |
| King's Crescent | £ 0 | 0 | 0.00 KM |
| Dandy Mill Court | £ 0 | 0 | 0.00 KM |
| Pontefract Road | £ 424,333 | 0 | 0.00 KM |
Nearby Transport
| Name | NLC | TLC | Distance |
|---|---|---|---|
| Pontefract Baghill | 8540 | PFR | 1.14 KM |
| Pontefract Monkhill | 8548 | PFM | 1.41 KM |
| Pontefract Tanshelf | 8541 | POT | 2.87 KM |
| Knottingley | 8546 | KNO | 4.09 KM |
| Glasshoughton | 8360 | GLH | 5.74 KM |
Nearby Listings
| Address | Price | Type | Score | Distance |
|---|---|---|---|---|
| Pontefract WF8 2NL, Pontefract, WF8 2NL | £ 200,000 | BUY | 7 / 10 | 0.00 KM |
| Pontefract WF8 2NL, Pontefract, WF8 2NL | £ 60,000 | BUY | 6 / 10 | 0.00 KM |
| Pontefract WF8 2NL, Pontefract, WF8 2NL | £ 48,750 | BUY | Unknown | 0.00 KM |
| Western Avenue, Pontefract, West Yorkshire, WF8 | £ 185,000 | BUY | Unknown | 0.09 KM |
| Willow Park, Pontefract, West Yorkshire, WF8 | £ 135,000 | BUY | 6 / 10 | 0.15 KM |
Nearby Properties
| Address | Price | Distance |
|---|---|---|
| 9 Western Avenue | £ 150,000 | 0.09 KM |
| 37 Western Avenue | £ 99,999 | 0.09 KM |
| 25 Western Avenue | £ 150,000 | 0.09 KM |
| 41 Western Avenue | £ 134,950 | 0.09 KM |
| 12 Western Avenue | £ 105,000 | 0.09 KM |