Beechings Green, Twydall, Gillingham, ME8
By Greyfox Estate Agents
£ 325,000
Reviews
2 out of 5 stars
Greyfox Estate Agents says ..
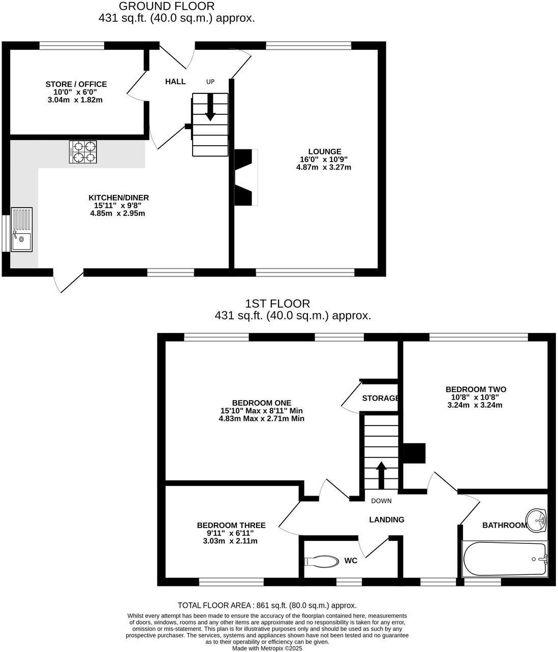
Offering plenty of potential and situated in a highly sought-after location, this property won’t stay on the market for long. Inside, you’ll find a bright separate lounge featuring dual-aspect windows for an abundance of natural light, a versatile storeroom that could serve as an o...
Property Oracle says ..
This property is a 3-bedroom semi-detached house located in Twydall, Gillingham. The property benefits from being close to Rainham Mark Grammar School (Outstanding Ofsted rating) and several other schools. Rainham train station is also within a reasonable distance, providing convenient access to other towns and cities. The property itself is in need of modernisation and updating. The kitchen and bathroom are dated, and the interior decor is tired. There is a garden to the rear, although it appears to require some attention. The asking price is slightly above the average price for the area, but this may be justified by the proximity to good schools and transport links. However, potential buyers should factor in the cost of renovations.
Therefore, we give this property 5 / 10. *Disclaimer: This is our option and does constitute a recommendation or financial advice. Do your own research. *
- Price
- 6
- Condition
- 4
- Location
- 7
- Land
- 6
- Bedrooms
- 3
- Bathrooms
- 1
- Sqft (est)
- 861.00
The heatmap indicates the level of crime in the area. The color of the heatmap indicates the crime severity and recency.
Metrics Year-on-Year
- Average area value
- 405,000.00 £Increased by 14.70 %
- Est sale value
- 341,817.00 £Increased by 5.03 %
- Average area rental value
- 1,825.00 £/moIncreased by 1.45 %
- Est letting value
- 861.00 £/moUnchanged by 0.00 %
- Est rental Yield
- 5.41 %Decreased by 11.46 %
- Crime Rate
- 8.00 %Unchanged by 0.00 %
Agent Activity
Greyfox Estate Agents created the listing.
Nearby Schools
| Name | Type | Ofsted | Distance |
|---|---|---|---|
| Rainham Mark Grammar School | Academy Converter | Outstanding | 0.45 KM |
| Thames View Primary School | Academy Converter | Good | 0.82 KM |
| Twydall Primary School And Nursery | Academy Sponsor Led | Requires improvement | 1.01 KM |
| Hand In Hand Children'S Centre | Children's Centre | 1.01 KM | |
| St Thomas Of Canterbury Rc Primary School | Voluntary Aided School | Good | 1.16 KM |
Images
Nearby Streets
| Name | Average Price | Average Sqft | Distance |
|---|---|---|---|
| Beechings Green | £ 0 | 0 | 0.00 KM |
| Truro Close | £ 462,500 | 0 | 0.00 KM |
| Wright Close | £ 0 | 0 | 0.00 KM |
| Dorset Square | £ 265,000 | 0 | 0.00 KM |
| Minster Road | £ 0 | 0 | 0.00 KM |
Nearby Transport
| Name | NLC | TLC | Distance |
|---|---|---|---|
| Rainham (Kent) | 5177 | RAI | 2.27 KM |
| Gillingham (Kent) | 5169 | GLM | 4.90 KM |
| Chatham | 5199 | CTM | 7.91 KM |
| Newington | 5175 | NGT | 8.74 KM |
| Rochester | 5203 | RTR | 9.17 KM |
Nearby Listings
| Address | Price | Type | Score | Distance |
|---|---|---|---|---|
| Beechings Green, Twydall, Gillingham, ME8 | £ 325,000 | BUY | 5 / 10 | 0.00 KM |
| Doddington Road, Twydall, Gillingham, Kent | £ 175,500 | BUY | 7 / 10 | 0.09 KM |
| Doddington Road, Twydall, Gillingham, Kent | £ 265,000 | BUY | 7 / 10 | 0.09 KM |
| Thornham Road, Twydall, Kent, ME8 | £ 350,000 | BUY | Unknown | 0.12 KM |
| Beechings Way, Gillingham | £ 425,000 | BUY | 7 / 10 | 0.14 KM |
Nearby Properties
| Address | Price | Distance |
|---|---|---|
| 260 Beechings Way | £ 138,000 | 0.01 KM |
| 7 Doddington Road | £ 119,000 | 0.09 KM |
| 36 Doddington Road | £ 147,000 | 0.09 KM |
| 37 Doddington Road | £ 51,000 | 0.09 KM |
| 12 Doddington Road | £ 142,000 | 0.09 KM |