Pantyresk Road, ABERCARN, NP114TB
By Cariad Property
£ 229,995
Reviews
3 out of 5 stars
Cariad Property says ..
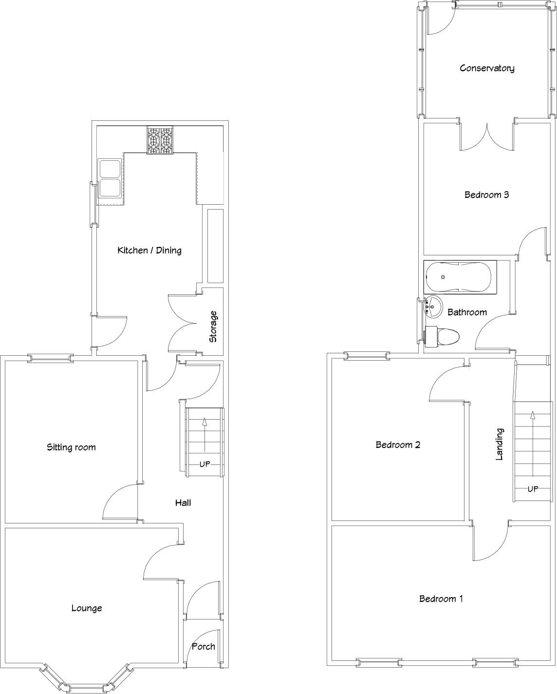
SIMPLY SPLENDID PERIOD PROPERTY, lovely rural position, perfect for village amenities, three bedrooms, three reception rooms, lovely mature gardens with views, and garage parking. No chain.
Property Oracle says ..
This three-bedroom semi-detached house in Abercarn, Caerphilly, is listed at £229,995. The property’s location offers proximity to Abercarn Primary School and Y.G. Cwm Gwyddon, making it potentially attractive to families. Newbridge train station is also within reasonable commuting distance, providing access to broader transport links.
The house presents a somewhat mixed condition. The kitchen appears recently updated with modern cabinets and appliances. However, the bathroom shows signs of age, and several rooms feature dated decor and furnishings. The flooring also appears inconsistent across the property. While the property is habitable, potential buyers should budget for some modernisation and updating to bring it up to a more contemporary standard.
The property benefits from a garden, though its size is relatively small and appears somewhat unkempt in the provided images. A detached garage is included, offering additional storage space.
In terms of pricing, the listed price of £229,995 is slightly above the average price for Pant-Y-Resk Road (£270,000) but falls within the price range of comparable properties in the Abercarn area. Given the mixed condition of the property, the price could be considered reasonable, though not outstanding value. Potential buyers should carefully assess their renovation budget and weigh the pros and cons of the property’s condition against the asking price and location.
Therefore, we give this property 6 / 10. *Disclaimer: This is our option and does constitute a recommendation or financial advice. Do your own research. *
- Price
- 7
- Condition
- 6
- Location
- 7
- Land
- 4
- Bedrooms
- 3
- Bathrooms
- 1
The heatmap indicates the level of crime in the area. The color of the heatmap indicates the crime severity and recency.
Metrics Year-on-Year
- Average area value
- 186,686.00 £Decreased by 9.88 %
- Average area rental value
- 907.00 £/moIncreased by 11.98 %
- Est rental Yield
- 5.83 %Increased by 24.31 %
- Crime Rate
- 6.00 %Unchanged by 0.00 %
Agent Activity
Cariad Property marked this listing as sold.
Cariad Property created the listing.
Nearby Schools
| Name | Type | Ofsted | Distance |
|---|---|---|---|
| Abercarn Primary School | Welsh Establishment | 0.75 KM | |
| Y.G. Cwm Gwyddon | Welsh Establishment | 0.89 KM | |
| Newbridge School | Welsh Establishment | 1.35 KM | |
| Tynewydd Primary School | Welsh Establishment | 2.00 KM | |
| Pantside Primary School | Welsh Establishment | 2.13 KM |
Images
Nearby Streets
| Name | Average Price | Average Sqft | Distance |
|---|---|---|---|
| Pant-Y-Resk Road | £ 270,000 | 0 | 0.00 KM |
| Royal Close | £ 240,000 | 0 | 0.00 KM |
| High Street | £ 0 | 0 | 0.00 KM |
| Hafod Fach View | £ 270,000 | 0 | 0.00 KM |
| Woodland Drive | £ 0 | 0 | 0.00 KM |
Nearby Transport
| Name | NLC | TLC | Distance |
|---|---|---|---|
| Newbridge | 9919 | NBE | 1.52 KM |
| Crosskeys | 9902 | CKY | 3.81 KM |
| Llanhilleth | 9916 | LTH | 5.30 KM |
| Risca And Pontymister | 9920 | RCA | 7.33 KM |
| Hengoed | 4028 | HNG | 9.45 KM |
Nearby Listings
| Address | Price | Type | Score | Distance |
|---|---|---|---|---|
| Pantyresk Road, Abercarn, NP11 | £ 385,000 | BUY | 7 / 10 | 0.00 KM |
| Pantyresk Road, ABERCARN, NP114TB | £ 229,995 | BUY | 6 / 10 | 0.00 KM |
| Troed-Y-Rhiw, NEWPORT | £ 225,000 | BUY | 7 / 10 | 0.11 KM |
| Islwyn Street, Abercarn, Newport, NP11 | £ 150,000 | BUY | 5 / 10 | 0.20 KM |
| Islwyn Street, ABERCARN, NP114SR | £ 120,000 | BUY | 6 / 10 | 0.20 KM |
Nearby Properties
| Address | Price | Distance |
|---|---|---|
| Bryntirion | £ 150,000 | 0.00 KM |
| Ael-y-bryn | £ 67,000 | 0.00 KM |
| Tan-yr-allt | £ 345,000 | 0.00 KM |
| Normanhurst | £ 266,500 | 0.00 KM |
| Islwyn House | £ 170,000 | 0.00 KM |