CU
Newlands Close, Hersham, KT12
By Curchods Estate Agents
£ 475,000
Curchods Estate Agents says ..
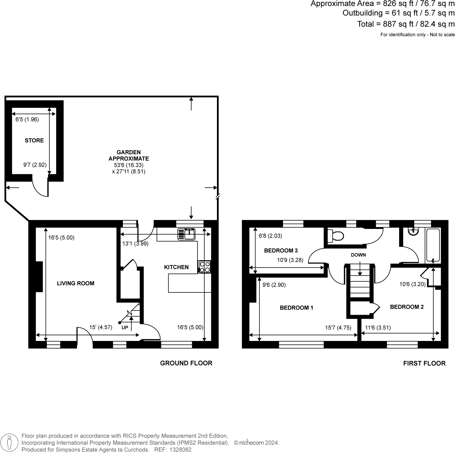
A double fronted terrace home offering three bedroom accommodation, occupying a cul de sac position, within easy reach to local amenities including Hersham station. This property is offered for sale with no onward chain.
- Bedrooms
- 3
- Bathrooms
- 1
The heatmap indicates the level of crime in the area. The color of the heatmap indicates the crime severity and recency.
Metrics Year-on-Year
- Average area value
- 1,532,000.00 £Increased by 47.20 %
- Average area rental value
- 4,103.00 £/moIncreased by 15.06 %
- Est rental Yield
- 3.21 %Decreased by 21.90 %
- Crime Rate
- 16.00 %Unchanged by 0.00 %
from 1,040,775.00 £
from 3,566.00 £/mo
from 4.11 %
from 16.00 %
Agent Activity
Curchods Estate Agents created the listing.
Nearby Schools
| Name | Type | Ofsted | Distance |
|---|---|---|---|
| North East Surrey Secondary Short Stay School | Pupil Referral Unit | Good | 0.70 KM |
| Cardinal Newman Catholic Primary School | Academy Converter | Good | 0.84 KM |
| Burhill Sure Start Children'S Centre | Children's Centre | 1.27 KM | |
| Burhill Primary School | Foundation School | Good | 1.46 KM |
| Bell Farm Primary School | Community School | Good | 1.54 KM |
Images
Nearby Streets
| Name | Average Price | Average Sqft | Distance |
|---|---|---|---|
| Heathfield Road | £ 0 | 0 | 0.00 KM |
| Willow House | £ 2,495,000 | 0 | 0.00 KM |
| Neville Close | £ 1,850,000 | 0 | 0.00 KM |
| Westacres | £ 1,795,000 | 0 | 0.00 KM |
| Tudor Drive | £ 0 | 0 | 0.00 KM |
Nearby Transport
| Name | NLC | TLC | Distance |
|---|---|---|---|
| Hersham | 5590 | HER | 0.79 KM |
| Walton-On-Thames | 5575 | WAL | 3.07 KM |
| Esher | 5558 | ESH | 3.87 KM |
| Claygate | 5556 | CLG | 4.40 KM |
| Oxshott | 5602 | OXS | 4.66 KM |
Nearby Listings
| Address | Price | Type | Score | Distance |
|---|---|---|---|---|
| Newlands Close, Hersham, KT12 | £ 475,000 | BUY | Unknown | 0.00 KM |
| Newlands Close, Hersham, KT12 | £ 575,000 | BUY | Unknown | 0.03 KM |
| Chailey Place, Hersham, Walton On Thames, KT12 | £ 600,000 | BUY | 7 / 10 | 0.14 KM |
| Chailey Place, Hersham, KT12 | £ 750,000 | BUY | 7 / 10 | 0.15 KM |
| Southdown Road, Hersham, KT12 | £ 425,000 | BUY | 7 / 10 | 0.15 KM |
Nearby Properties
| Address | Price | Distance |
|---|---|---|
| 31 Newlands Close | £ 500,000 | 0.05 KM |
| 22 Newlands Close | £ 495,000 | 0.05 KM |
| 12 Newlands Close | £ 465,000 | 0.05 KM |
| 9 Newlands Close | £ 126,250 | 0.05 KM |
| 43 Newlands Close | £ 242,000 | 0.05 KM |