Wedgwood Close, Desborough, Kettering
By Simon & Co
£ 425,000
Reviews
3 out of 5 stars
Simon & Co says ..
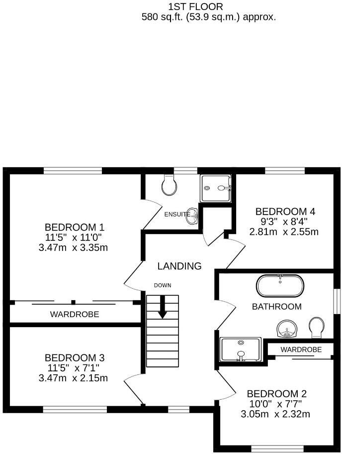
**IN PERSON AND VIDEO VIEWS AVAILABLE ** An outstanding FOUR DOUBLE bedroom detached family home, constructed by the renowned Springfir Builder in their Sheringham design. This property features a south-facing rear garden and is situated in a pleasant cul-de-sac location on the outskirts of town....
Property Oracle says ..
This property is a 4-bedroom, 2-bathroom house located in Desborough, Kettering. It is listed at £425,000 and has 1,187 sqft of living space. The property includes a double garage and a conservatory. The average house price in the area is £341,641 with an average price per sqft of £325. The property appears to be in good condition based on the photos provided. It has a garden, which is a desirable feature. Considering the condition, location, and land, the list price seems slightly above average for the area but not unreasonable given the size and features of the property. More information on the plot size would help to further refine this analysis.
Therefore, we give this property 7 / 10. *Disclaimer: This is our option and does constitute a recommendation or financial advice. Do your own research. *
- Price
- 7
- Condition
- 8
- Location
- 7
- Land
- 7
- Bedrooms
- 4
- Bathrooms
- 2
- Sqft (est)
- 1,187.00
The heatmap indicates the level of crime in the area. The color of the heatmap indicates the crime severity and recency.
Metrics Year-on-Year
- Average area value
- 386,250.00 £Increased by 7.91 %
- Est sale value
- 278,945.00 £Decreased by 17.54 %
- Average area rental value
- 1,148.00 £/moIncreased by 19.33 %
- Est letting value
- 0.00 £/mo
- Est rental Yield
- 3.57 %Increased by 10.53 %
- Crime Rate
- 6.00 %Unchanged by 0.00 %
Agent Activity
Simon & Co created the listing.
Nearby Schools
| Name | Type | Ofsted | Distance |
|---|---|---|---|
| Loatlands Primary School | Academy Converter | Good | 0.28 KM |
| Desborough Children'S Centre | Children's Centre | 0.93 KM | |
| Havelock Infant School | Academy Converter | Outstanding | 1.39 KM |
| Havelock Junior School | Academy Converter | Good | 1.41 KM |
| Montsaye Academy | Academy Converter | Good | 2.86 KM |
Images
Nearby Streets
| Name | Average Price | Average Sqft | Distance |
|---|---|---|---|
| Cromwell Close | £ 0 | 0 | 0.00 KM |
| Linley Drive | £ 325,000 | 0 | 0.00 KM |
| Mortimer Road | £ 450,000 | 0 | 0.00 KM |
| Delamare Close | £ 330,000 | 0 | 0.00 KM |
| Sherwood Close | £ 0 | 0 | 0.00 KM |
Nearby Transport
| Name | NLC | TLC | Distance |
|---|---|---|---|
| Market Harborough | 1909 | MHR | 9.82 KM |
Nearby Listings
| Address | Price | Type | Score | Distance |
|---|---|---|---|---|
| Wedgwood Close, Desborough, Kettering | £ 400,000 | BUY | 7 / 10 | 0.00 KM |
| Wedgwood Close, Desborough, Kettering | £ 425,000 | BUY | 7 / 10 | 0.00 KM |
| Meissen Avenue, Desborough, Kettering | £ 430,000 | BUY | 7 / 10 | 0.05 KM |
| NN14 Meissen Avenue, Desborough | £ 430,000 | BUY | 7 / 10 | 0.05 KM |
| OUTSTANDING - NO CHAIN - Meissen Avenue, Desborough, Kettering | £ 415,000 | BUY | 7 / 10 | 0.06 KM |
Nearby Properties
| Address | Price | Distance |
|---|---|---|
| 5 Wedgwood Close | £ 238,000 | 0.01 KM |
| 4 Wedgwood Close | £ 320,000 | 0.01 KM |
| 2 Wedgwood Close | £ 118,000 | 0.01 KM |
| 3 Wedgwood Close | £ 259,000 | 0.01 KM |
| 24 Meissen Avenue | £ 405,000 | 0.05 KM |