Heavitree Road, Exeter, Devon, EX1
By Fulfords
£ 200,000
Reviews
2 out of 5 stars
Fulfords says ..
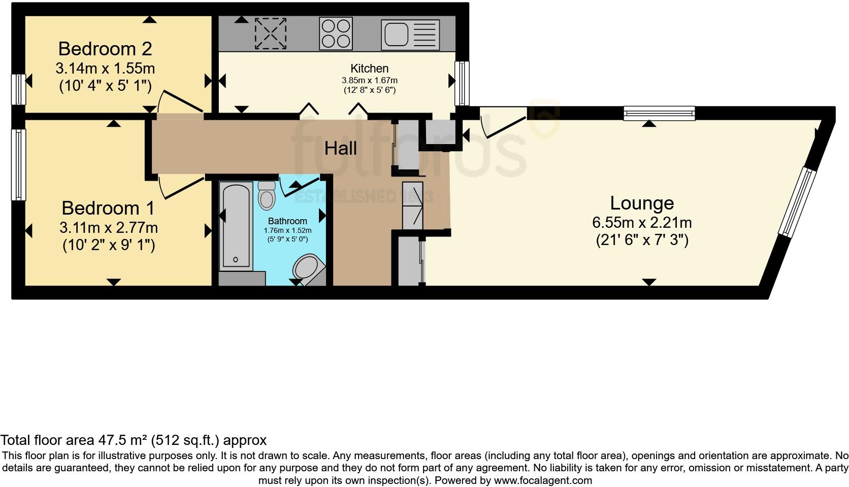
This ground floor flat, offered with a share of freehold, perfectly blends modern living with the charm of private outdoor space. Beautifully presented throughout, the property features a brand-new, stylish kitchen complete with a new extractor fan, electric oven and hob and space for both a wash...
Property Oracle says ..
This two-bedroom flat on Heavitree Road in Exeter presents a solid opportunity, particularly for first-time buyers or investors. The interior boasts a modern kitchen and bathroom, suggesting recent updates. While the exterior shows some wear, the location is a strong point, with proximity to schools, transportation, and local amenities. The limited outdoor space is a drawback, but the price appears reasonable given the area’s average property values. Overall, it’s a well-located and adequately maintained property with potential for appreciation.
Therefore, we give this property 5 / 10. *Disclaimer: This is our option and does constitute a recommendation or financial advice. Do your own research. *
- Price
- 6
- Condition
- 7
- Location
- 7
- Land
- 3
- Bedrooms
- 2
- Bathrooms
- 1
The heatmap indicates the level of crime in the area. The color of the heatmap indicates the crime severity and recency.
Metrics Year-on-Year
- Average area value
- 521,250.00 £Increased by 29.23 %
- Average area rental value
- 1,512.00 £/moIncreased by 50.45 %
- Est rental Yield
- 3.48 %Increased by 16.39 %
- Crime Rate
- 8.00 %Unchanged by 0.00 %
Agent Activity
Fulfords created the listing.
Nearby Schools
| Name | Type | Ofsted | Distance |
|---|---|---|---|
| Newtown Primary School | Community School | Requires improvement | 0.20 KM |
| The Maynard School | Other Independent School | 0.23 KM | |
| Exeter Central (Flying Start Children'S Centre) | Children's Centre | 0.47 KM | |
| St Sidwell'S Church Of England Primary School And Nursery | Voluntary Aided School | Good | 0.62 KM |
| Magdalen Court School | Other Independent Special School | Requires improvement | 0.86 KM |
Images
Nearby Streets
| Name | Average Price | Average Sqft | Distance |
|---|---|---|---|
| Eaton Drive | £ 0 | 0 | 0.00 KM |
| Belgrave Road | £ 0 | 0 | 0.00 KM |
| Townsend Court | £ 0 | 0 | 0.00 KM |
| St James' Close | £ 275,000 | 0 | 0.00 KM |
| Paris Street | £ 0 | 0 | 0.00 KM |
Nearby Transport
| Name | NLC | TLC | Distance |
|---|---|---|---|
| St James Park (Exeter) | 5751 | SJP | 0.73 KM |
| Exeter Central | 5755 | EXC | 1.43 KM |
| Polsloe Bridge | 3422 | POL | 2.17 KM |
| Exeter St Thomas | 3414 | EXT | 2.20 KM |
| Exeter St David'S | 3410 | EXD | 2.58 KM |
Nearby Listings
| Address | Price | Type | Score | Distance |
|---|---|---|---|---|
| Heavitree Road, Heavitree, EX1 | £ 119,950 | BUY | 6 / 10 | 0.00 KM |
| Heavitree Road, Exeter, Devon, EX1 | £ 125,000 | BUY | 4 / 10 | 0.00 KM |
| Heavitree Road, Exeter, EX1 2LG | £ 140,000 | BUY | 5 / 10 | 0.00 KM |
| Heavitree Road, Exeter, Devon, EX1 | £ 200,000 | BUY | 5 / 10 | 0.00 KM |
| Heavitree Road, Exeter | £ 137,500 | BUY | 5 / 10 | 0.02 KM |
Nearby Properties
| Address | Price | Distance |
|---|---|---|
| 29c Heavitree Road | £ 140,000 | 0.01 KM |
| 29d Heavitree Road | £ 108,000 | 0.01 KM |
| 25 Heavitree Road | £ 150,000 | 0.01 KM |
| 29b Heavitree Road | £ 140,000 | 0.01 KM |
| 17 Heavitree Road | £ 60,500 | 0.07 KM |