Garnet Terrace, York
By Ashtons Estate Agents
£ 240,000
Reviews
2 out of 5 stars
Ashtons Estate Agents says ..
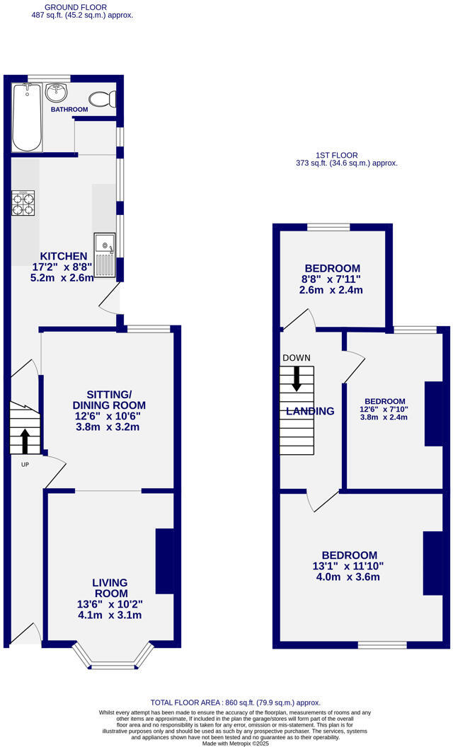
Set in a popular and well-connected part of York, this three-bedroom mid-terrace home offers fantastic potential for those looking to take on a renovation project. With excellent transport links to the city centre, railway station, and outer ring road, the location is ideal for commuters and fami...
Property Oracle says ..
This is a three-bedroom terraced property located in Holgate, York. The property is conveniently located near local schools and transportation links. The internal photos suggest that the property requires some renovation. The property is listed at £240,000.
Therefore, we give this property 4 / 10. *Disclaimer: This is our option and does constitute a recommendation or financial advice. Do your own research. *
- Price
- 4
- Condition
- 4
- Location
- 7
- Land
- 3
- Bedrooms
- 3
- Bathrooms
- 1
- Sqft (est)
- 556.00
The heatmap indicates the level of crime in the area. The color of the heatmap indicates the crime severity and recency.
Metrics Year-on-Year
- Average area value
- 205,714.00 £Decreased by 35.49 %
- Est sale value
- 185,148.00 £Decreased by 12.14 %
- Average area rental value
- 1,183.00 £/moIncreased by 12.03 %
- Est letting value
- 556.00 £/moUnchanged by 0.00 %
- Est rental Yield
- 6.90 %Increased by 73.80 %
- Crime Rate
- 8.00 %Unchanged by 0.00 %
Agent Activity
Ashtons Estate Agents created the listing.
Nearby Schools
| Name | Type | Ofsted | Distance |
|---|---|---|---|
| Poppleton Road Primary School | Community School | Good | 0.69 KM |
| Our Lady Queen Of Martyrs Catholic Primary School - A Catholic Voluntary Academy | Academy Converter | 1.22 KM | |
| Acomb Primary School | Academy Converter | 1.24 KM | |
| St Paul'S Nursery School | Local Authority Nursery School | Good | 1.33 KM |
| St Paul'S Church Of England Voluntary Controlled Primary School | Voluntary Controlled School | Good | 1.40 KM |
Images
Nearby Streets
| Name | Average Price | Average Sqft | Distance |
|---|---|---|---|
| Thompson Place | £ 0 | 0 | 0.00 KM |
| Barnabas Court | £ 0 | 0 | 0.00 KM |
| Barrett Avenue | £ 0 | 0 | 0.00 KM |
| Ouse Acres | £ 0 | 0 | 0.00 KM |
| Glebe Avenue | £ 0 | 0 | 0.00 KM |
Nearby Transport
| Name | NLC | TLC | Distance |
|---|---|---|---|
| York | 8263 | YRK | 1.87 KM |
| Poppleton | 8254 | POP | 4.57 KM |
Nearby Listings
| Address | Price | Type | Score | Distance |
|---|---|---|---|---|
| Garnet Terrace, York | £ 240,000 | BUY | 4 / 10 | 0.00 KM |
| Garnet Terrace, York | £ 250,000 | BUY | 4 / 10 | 0.05 KM |
| Garfield Terrace, York, North Yorkshire, YO26 | £ 295,000 | BUY | 7 / 10 | 0.10 KM |
| Bismarck Street, Leeman Road | £ 210,000 | BUY | 6 / 10 | 0.11 KM |
| Garnet Terrace, York, North Yorkshire, YO26 | £ 265,000 | BUY | 6 / 10 | 0.11 KM |
Nearby Properties
| Address | Price | Distance |
|---|---|---|
| 92 Stamford Street West | £ 167,500 | 0.04 KM |
| 96 Stamford Street West | £ 122,500 | 0.04 KM |
| 95 Stamford Street West | £ 119,950 | 0.04 KM |
| 94 Stamford Street West | £ 94,000 | 0.04 KM |
| 99 Stamford Street West | £ 115,000 | 0.04 KM |