Derwentwater Road, Acton
By Robertson Smith & Kempson
£ 689,950
Reviews
3 out of 5 stars
Robertson Smith & Kempson says ..
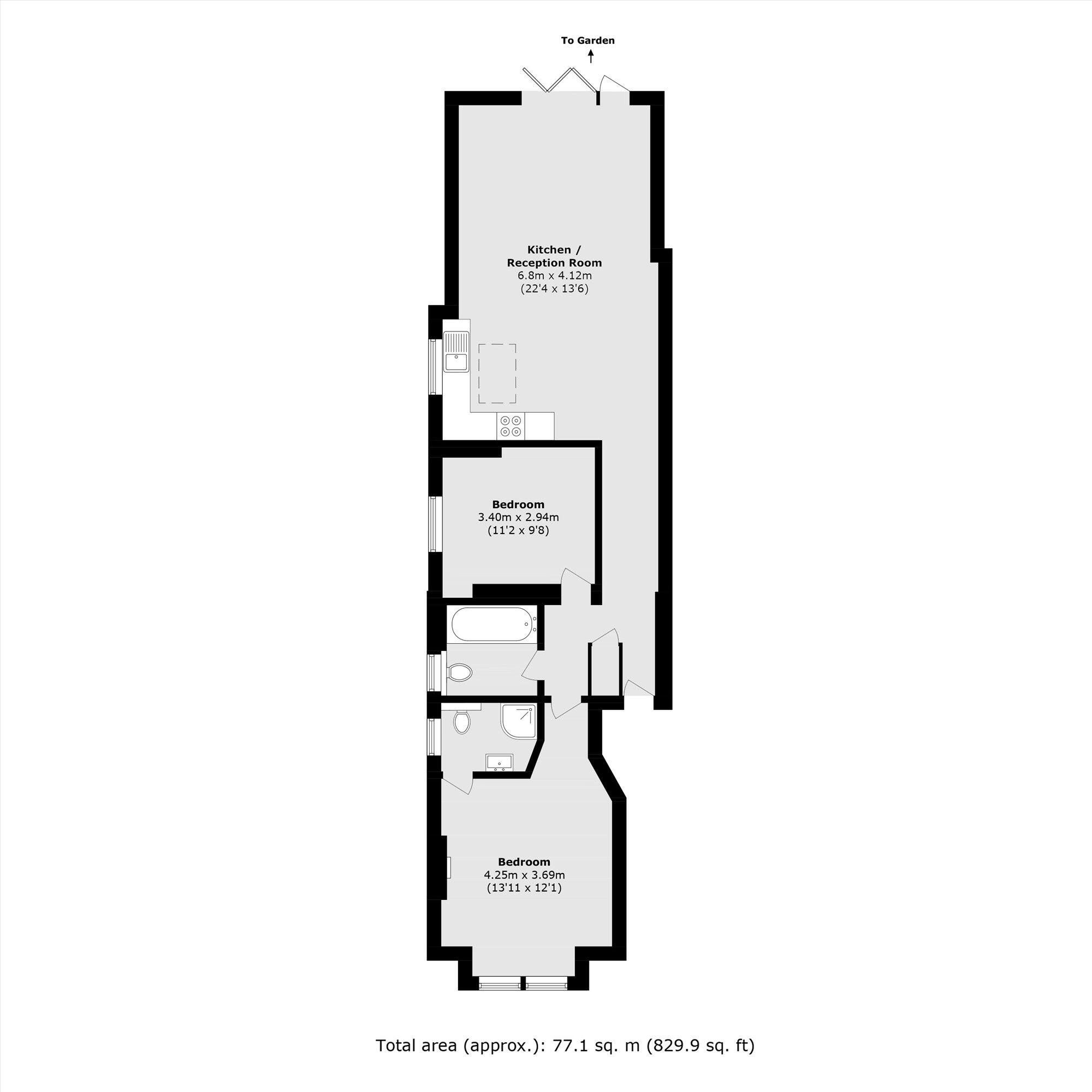
A two bedroom, two bathroom period conversion garden flat on the borders of Poets Corner. The property is in excellent condition throughout, offers in excess of 800 sq.ft of accommodation with a large garden and no onward chain.
Property Oracle says ..
This is a well-presented two-bedroom flat in Acton Central, London. The property benefits from a modern kitchen, two bathrooms, and a garden. The location is convenient, with good access to transportation and local schools. The property is in good condition and appears to be well-maintained. The price is reasonable for the size and location of the property.
Therefore, we give this property 7 / 10. *Disclaimer: This is our option and does constitute a recommendation or financial advice. Do your own research. *
- Price
- 7
- Condition
- 8
- Location
- 7
- Land
- 6
- Bedrooms
- 2
- Bathrooms
- 2
- Sqft (est)
- 829.90
The heatmap indicates the level of crime in the area. The color of the heatmap indicates the crime severity and recency.
Metrics Year-on-Year
- Average area value
- 633,524.00 £Decreased by 17.79 %
- Est sale value
- 719,523.30 £Increased by 19.92 %
- Average area rental value
- 2,128.00 £/moIncreased by 15.40 %
- Est letting value
- 1,659.80 £/moIncreased by 100.00 %
- Est rental Yield
- 4.03 %Increased by 40.42 %
- Crime Rate
- 17.00 %Unchanged by 0.00 %
Agent Activity
Robertson Smith & Kempson created the listing.
Nearby Schools
| Name | Type | Ofsted | Distance |
|---|---|---|---|
| Derwentwater Primary School | Community School | Good | 0.19 KM |
| Greek Primary School Of London | Other Independent School | Good | 0.45 KM |
| St Vincent'S Catholic Primary School | Voluntary Aided School | Good | 0.45 KM |
| Ark Soane Academy | Free Schools | 0.68 KM | |
| South Acton Children'S Centre | Children's Centre | 0.69 KM |
Images
Nearby Streets
| Name | Average Price | Average Sqft | Distance |
|---|---|---|---|
| Rectory Road | £ 0 | 0 | 0.00 KM |
| High Street | £ 0 | 0 | 0.00 KM |
| Mount Place | £ 350,000 | 0 | 0.00 KM |
| Mill Hill Grove | £ 391,213 | 0 | 0.00 KM |
| Mill Hill Terrace | £ 0 | 0 | 0.00 KM |
Nearby Transport
| Name | NLC | TLC | Distance |
|---|---|---|---|
| Acton Central | 1404 | ACC | 0.87 KM |
| Acton Main Line | 3000 | AML | 0.98 KM |
| South Acton | 1452 | SAT | 1.07 KM |
| Gunnersbury | 5588 | GUN | 2.03 KM |
| Kew Bridge | 5593 | KWB | 2.85 KM |
Nearby Listings
| Address | Price | Type | Score | Distance |
|---|---|---|---|---|
| Derwentwater Road, Acton | £ 689,950 | BUY | 7 / 10 | 0.00 KM |
| Derwentwater Road, London, W3 | £ 1,200,000 | BUY | Unknown | 0.06 KM |
| Oakham House, Horn Lane, Acton | £ 350,000 | BUY | 6 / 10 | 0.07 KM |
| Tilbury House, Acton | £ 425,000 | BUY | 6 / 10 | 0.07 KM |
| Horn Lane, Acton, London, W3 | £ 325,000 | BUY | 6 / 10 | 0.08 KM |
Nearby Properties
| Address | Price | Distance |
|---|---|---|
| 1 Derwentwater Road | £ 1,085,000 | 0.00 KM |
| 18 Derwentwater Road | £ 102,000 | 0.00 KM |
| 14 Derwentwater Road | £ 590,000 | 0.00 KM |
| 15 Derwentwater Road | £ 1,075,000 | 0.00 KM |
| 20 Derwentwater Road | £ 400,000 | 0.00 KM |