Henwick Properties says ..
Opportunity to acquire a delightful top floor apartment with views over the Kennet & Avon Canal. The property which has been refurbished also offers full double glazing and electric heating. Newbury town centre is within close proximity of the property and provides excellent shopping and soci...
Property Oracle says ..
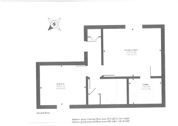
This one-bedroom apartment in Greenham Mill, Newbury, offers a stylish and well-maintained living space. The property is situated near Newbury town centre, providing easy access to amenities and transport. The apartment benefits from a recent refurbishment, which is evident in the modern kitchen and living area. The internal photos show the apartment to have been recently decorated, with a contemporary interior design.
The close proximity to the Kennet & Avon Canal provides a pleasant environment and great scenic views. While the listing does not specify additional features like parking, the exterior photos suggest parking space could be available.
However, a key drawback is the lack of private outdoor space. The property is an apartment with minimal plot size. This might be a significant factor for potential buyers seeking a garden or more significant outdoor area. Further information on the specifics of the building’s amenities and any potential service charges could further inform a buying decision.
Overall, the property presents a good opportunity for a single person or couple seeking a stylish and conveniently located apartment, but the limited external space should be considered. Comparative pricing in the area suggests the list price is reasonable in the context of the Newbury market for similar properties.
Therefore, we give this property 5 / 10. *Disclaimer: This is our option and does constitute a recommendation or financial advice. Do your own research. *
- Price
- 7
- Condition
- 8
- Location
- 7
- Land
- 1
- Bedrooms
- 1
- Bathrooms
- 1
- Sqft (est)
- 373.51
The heatmap indicates the level of crime in the area. The color of the heatmap indicates the crime severity and recency.
Metrics Year-on-Year
- Average area value
- 358,606.00 £Decreased by 9.74 %
- Est sale value
- 167,332.48 £Increased by 27.27 %
- Average area rental value
- 1,448.00 £/moIncreased by 6.78 %
- Est letting value
- 373.51 £/moUnchanged by 0.00 %
- Est rental Yield
- 4.85 %Increased by 18.29 %
- Crime Rate
- 3.00 %Unchanged by 0.00 %
Agent Activity
Henwick Properties created the listing.
Nearby Schools
| Name | Type | Ofsted | Distance |
|---|---|---|---|
| St Joseph'S Catholic Primary School | Voluntary Aided School | Good | 0.53 KM |
| Victoria Park Nursery School & Family Hub | Local Authority Nursery School | Outstanding | 0.83 KM |
| West Family Hub - Newbury | Children's Centre | 0.83 KM | |
| The Winchcombe School | Community School | Good | 1.16 KM |
| St Nicolas C.E. Junior School | Voluntary Aided School | Good | 1.30 KM |
Images
Nearby Streets
| Name | Average Price | Average Sqft | Distance |
|---|---|---|---|
| Arnhem Road | £ 0 | 0 | 0.00 KM |
| Hectors Way | £ 353,333 | 0 | 0.00 KM |
| Marconi Road | £ 0 | 0 | 0.00 KM |
| A339 | £ 0 | 0 | 0.00 KM |
| Hawthorn Road | £ 0 | 0 | 0.00 KM |
Nearby Transport
| Name | NLC | TLC | Distance |
|---|---|---|---|
| Newbury Racecourse | 3071 | NRC | 0.81 KM |
| Newbury | 3074 | NBY | 1.07 KM |
| Thatcham | 3152 | THA | 7.91 KM |
Nearby Listings
| Address | Price | Type | Score | Distance |
|---|---|---|---|---|
| Greenham Mill, Mill Lane, Newbury, Berkshire, RG14 | £ 180,000 | BUY | 5 / 10 | 0.03 KM |
| Flat 4, Timson Court, Gould Close, Newbury, RG14 5QL | £ 235,000 | BUY | 6 / 10 | 0.06 KM |
| Gould Close, Newbury, Berkshire, RG14 | £ 220,000 | BUY | 6 / 10 | 0.07 KM |
| Mill Lane, Newbury, Berkshire, RG14 | £ 175,000 | BUY | 6 / 10 | 0.07 KM |
| Greenham Mill, Mill Lane, Newbury, RG14 5QW | £ 200,000 | BUY | 6 / 10 | 0.08 KM |
Nearby Properties
| Address | Price | Distance |
|---|---|---|
| 15 Gould Close | £ 150,195 | 0.15 KM |
| 11 Gould Close | £ 172,500 | 0.15 KM |
| 17 Gould Close | £ 186,000 | 0.15 KM |
| 10 Gould Close | £ 153,000 | 0.15 KM |
| 14 Gould Close | £ 149,950 | 0.15 KM |