Glenville Avenue, Enfield
By Castles Estate Agents
£ 650,000
Reviews
3 out of 5 stars
Castles Estate Agents says ..
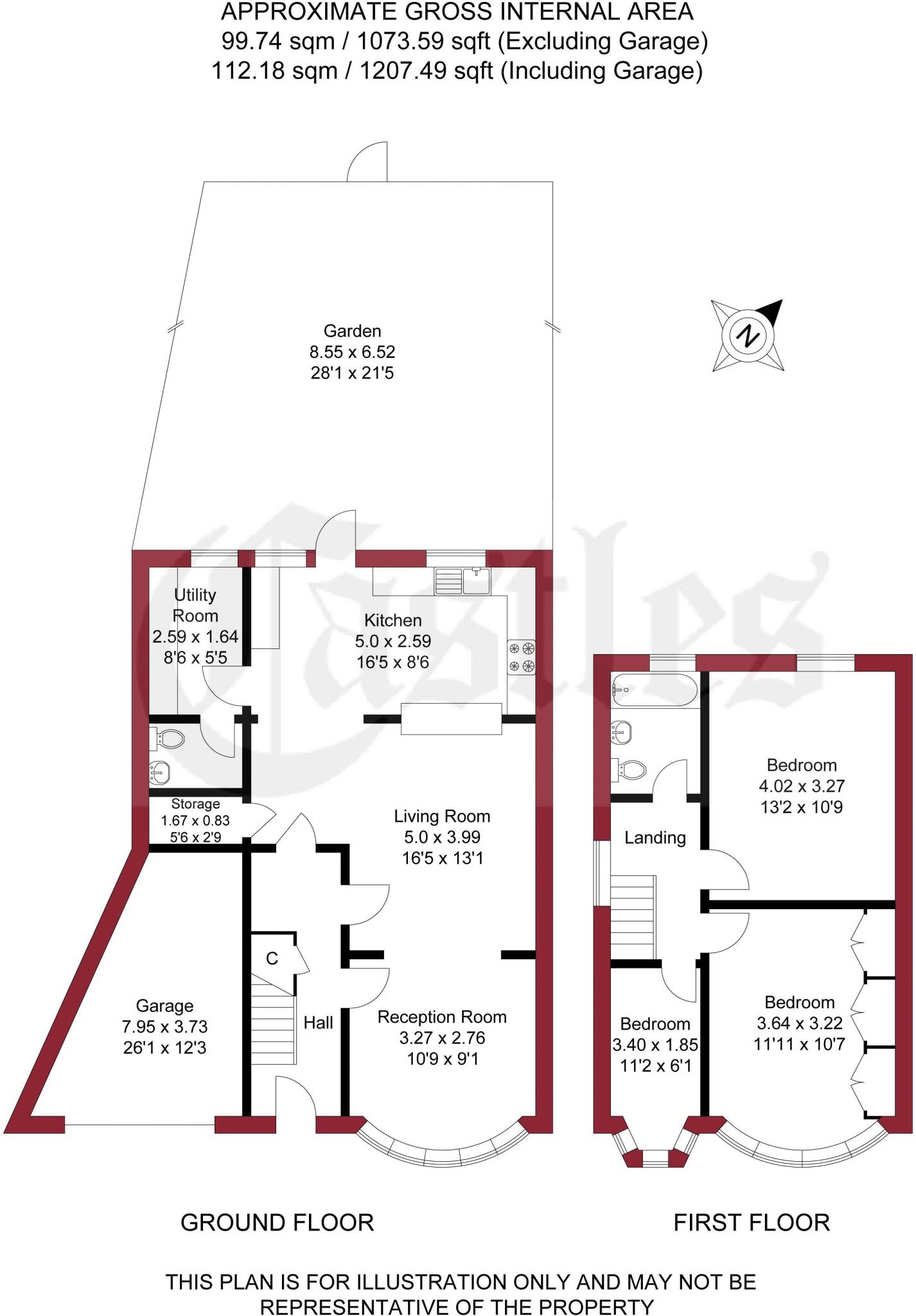
A well presented and extended 3 bedroom bay fronted semi-detached family house located in a highly desirable residential area close to Hilly Fields and within approximately 0.5m of Gordon Hill station and close to local schools and Lancaster Road shopping area. The property offers spacious and ...
Property Oracle says ..
This semi-detached property is located on Glenville Avenue in Enfield, Greater London. The house offers three bedrooms and one bathroom within its 1,166 sqft.
The property is located within close proximity to several schools, including St Michael’s Cofe Primary School and Lavender Primary School, both rated as “Good” by Ofsted. There are also several transportation options nearby, such as Gordon Hill and Enfield Chase train stations.
The interior photos show a modern kitchen and bathroom. The property also benefits from a garden with a patio area.
The average price per sqft in the area is £433, while this property is listed at approximately £557 per sqft. Nearby listings include similar semi-detached properties priced between £745,000 and £850,000, while a similar property on Glenville Avenue (semi-detached bungalow) sold for £625,000.
Therefore, we give this property 7 / 10. *Disclaimer: This is our option and does constitute a recommendation or financial advice. Do your own research. *
- Price
- 6
- Condition
- 7
- Location
- 8
- Land
- 7
- Bedrooms
- 3
- Bathrooms
- 1
- Sqft (est)
- 1,166.47
The heatmap indicates the level of crime in the area. The color of the heatmap indicates the crime severity and recency.
Metrics Year-on-Year
- Average area value
- 477,500.00 £Increased by 6.21 %
- Est sale value
- 505,081.51 £Increased by 15.16 %
- Average area rental value
- 1,740.00 £/moDecreased by 3.23 %
- Est letting value
- 1,166.47 £/moUnchanged by 0.00 %
- Est rental Yield
- 4.37 %Decreased by 8.96 %
- Crime Rate
- 10.00 %Unchanged by 0.00 %
Agent Activity
Castles Estate Agents created the listing.
Nearby Schools
| Name | Type | Ofsted | Distance |
|---|---|---|---|
| St Michael'S Cofe Primary School | Voluntary Aided School | Good | 0.48 KM |
| Lavender Primary School | Academy Converter | Good | 0.68 KM |
| Lavender Children'S Centre | Children's Centre | 0.68 KM | |
| St George'S Catholic Primary School | Voluntary Aided School | Good | 0.87 KM |
| Chase Side Children'S Centre | Children's Centre | 0.97 KM |
Images
Nearby Streets
| Name | Average Price | Average Sqft | Distance |
|---|---|---|---|
| St Luke's Avenue | £ 550,000 | 0 | 0.00 KM |
| White House Lane | £ 500,000 | 0 | 0.00 KM |
| Borrowdale Court | £ 174,998 | 0 | 0.00 KM |
| Ripley Road | £ 0 | 0 | 0.00 KM |
| St John's Terrace | £ 0 | 0 | 0.00 KM |
Nearby Transport
| Name | NLC | TLC | Distance |
|---|---|---|---|
| Gordon Hill | 6028 | GDH | 1.17 KM |
| Enfield Chase | 6010 | ENC | 1.60 KM |
| Enfield Town | 6959 | ENF | 1.68 KM |
| Grange Park | 6029 | GPK | 2.99 KM |
| Crews Hill | 6007 | CWH | 3.21 KM |
Nearby Listings
| Address | Price | Type | Score | Distance |
|---|---|---|---|---|
| Glenville Avenue, Enfield | £ 650,000 | BUY | 7 / 10 | 0.00 KM |
| Glenville Avenue, Enfield | £ 330,000 | BUY | 7 / 10 | 0.01 KM |
| Brodie Road, Enfield | £ 700,000 | BUY | 6 / 10 | 0.04 KM |
| Brodie Road, Enfield | £ 745,000 | BUY | 6 / 10 | 0.04 KM |
| Merton Road, Enfield | £ 500,000 | BUY | 8 / 10 | 0.06 KM |
Nearby Properties
| Address | Price | Distance |
|---|---|---|
| 76 Glenville Avenue | £ 120,000 | 0.01 KM |
| 50 Glenville Avenue | £ 350,000 | 0.01 KM |
| 60 Glenville Avenue | £ 260,000 | 0.01 KM |
| 74 Glenville Avenue | £ 285,000 | 0.01 KM |
| 54 Glenville Avenue | £ 230,000 | 0.01 KM |