Ancoats Lane, Highgrove Ancoats Lane, SK9
By Stuart Rushton & Co
£ 630,000
Reviews
3 out of 5 stars
Stuart Rushton & Co says ..
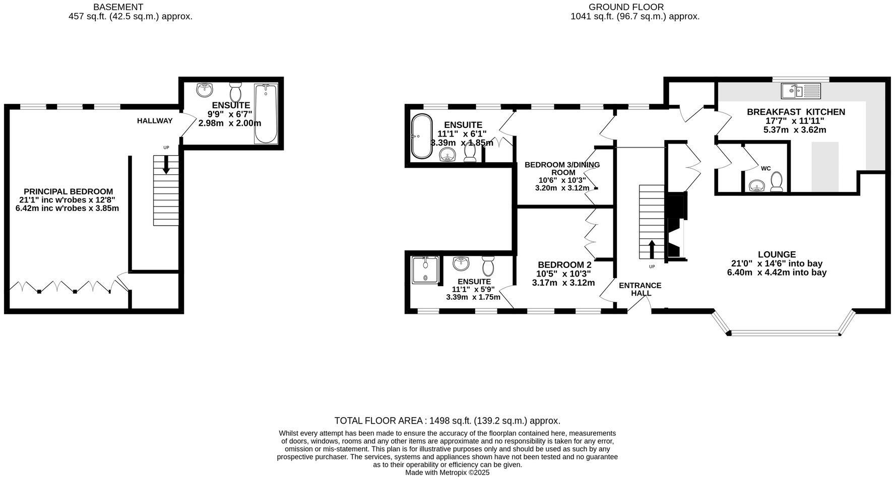
Exceptional 3-bed ground floor maisonette in secure gated development within Grade II listed former hospital on 4-acre estate. Historical charm, modern amenities, spacious living, upgraded kitchen, ensuite bedroom, tranquil gardens, allocated parking for residents and visitors.
Property Oracle says ..
This property is a three-bedroom, three-bathroom residence located in the prestigious Alderley Edge area of Cheshire. The provided images showcase a modern and well-maintained interior with a contemporary design aesthetic. The kitchen features sleek grey cabinetry and white countertops, while the living areas boast a spacious layout. The bathrooms are similarly modern and well-appointed. The exterior is a well-maintained brick building with a courtyard area. The property benefits from its proximity to highly-rated schools and convenient access to train stations offering connections to Manchester and beyond. While the property offers some outdoor space, it is limited to a courtyard and does not include a large private garden. The lack of detailed plot size information and comparable sales data makes a definitive assessment of the price challenging, though the list price appears to be within a reasonable range for the area, given the property’s condition and features. Further information on the property’s exact location within Alderley Edge and the specifics of any communal land would be helpful in providing a more comprehensive evaluation.
Therefore, we give this property 7 / 10. *Disclaimer: This is our option and does constitute a recommendation or financial advice. Do your own research. *
- Price
- 7
- Condition
- 9
- Location
- 8
- Land
- 4
- Bedrooms
- 3
- Bathrooms
- 3
- Sqft (est)
- 1,498.00
The heatmap indicates the level of crime in the area. The color of the heatmap indicates the crime severity and recency.
Metrics Year-on-Year
- Average area value
- 607,999.00 £Decreased by 19.74 %
- Est sale value
- 638,148.00 £Decreased by 8.58 %
- Average area rental value
- 1,708.00 £/moDecreased by 59.57 %
- Est letting value
- 1,498.00 £/moDecreased by 50.00 %
- Est rental Yield
- 3.37 %Decreased by 49.63 %
- Crime Rate
- 0.00 %
Agent Activity
Stuart Rushton & Co created the listing.
Nearby Schools
| Name | Type | Ofsted | Distance |
|---|---|---|---|
| David Lewis School | Non-maintained Special School | Good | 1.16 KM |
| The David Lewis Centre | Special Post 16 Institution | Outstanding | 1.16 KM |
| Chelford Cofe Primary School | Voluntary Controlled School | Good | 2.55 KM |
| Mobberley Cofe Primary School | Voluntary Controlled School | Outstanding | 3.67 KM |
| Lindow Community Primary School | Community School | Good | 4.43 KM |
Images
Nearby Streets
| Name | Average Price | Average Sqft | Distance |
|---|---|---|---|
| Ennerdale Close | £ 0 | 0 | 0.00 KM |
| Warford Park | £ 0 | 0 | 0.00 KM |
Nearby Transport
| Name | NLC | TLC | Distance |
|---|---|---|---|
| Chelford (Cheshire) | 2764 | CEL | 3.00 KM |
| Mobberley | 2849 | MOB | 5.92 KM |
| Alderley Edge | 2760 | ALD | 6.34 KM |
| Manchester Airport | 2961 | MIA | 8.20 KM |
| Wilmslow | 2774 | WML | 8.25 KM |
Nearby Listings
| Address | Price | Type | Score | Distance |
|---|---|---|---|---|
| Ancoats Lane, Highgrove Ancoats Lane, SK9 | £ 550,000 | BUY | Unknown | 0.00 KM |
| Ancoats Lane, Highgrove Ancoats Lane, SK9 | £ 630,000 | BUY | 7 / 10 | 0.00 KM |
| Highgrove, Ancoats Lane, Alderley Edge | £ 490,000 | BUY | 8 / 10 | 0.00 KM |
| Ennerdale Close, Great Warford, Alderley Edge, Cheshire, SK9 | £ 1,050,000 | BUY | 7 / 10 | 0.47 KM |
| High Noon Farm, Ancoats Lane, WA16 | £ 1,650,000 | BUY | 7 / 10 | 0.61 KM |
Nearby Properties
| Address | Price | Distance |
|---|---|---|
| 4 Ennerdale Close | £ 545,000 | 0.44 KM |
| 3 Ennerdale Close | £ 670,000 | 0.44 KM |
| 6 Ennerdale Close | £ 700,000 | 0.44 KM |
| 2 Ennerdale Close | £ 640,000 | 0.44 KM |
| 3 Derwent Way | £ 350,000 | 0.48 KM |