Langley Manor, Bucknall Way, Beckenham
By Allen Heritage
£ 1,750,000
Reviews
3 out of 5 stars
Allen Heritage says ..
Style, elegance and luxury living in one of the most impressive apartments in Greater London
Property Oracle says ..
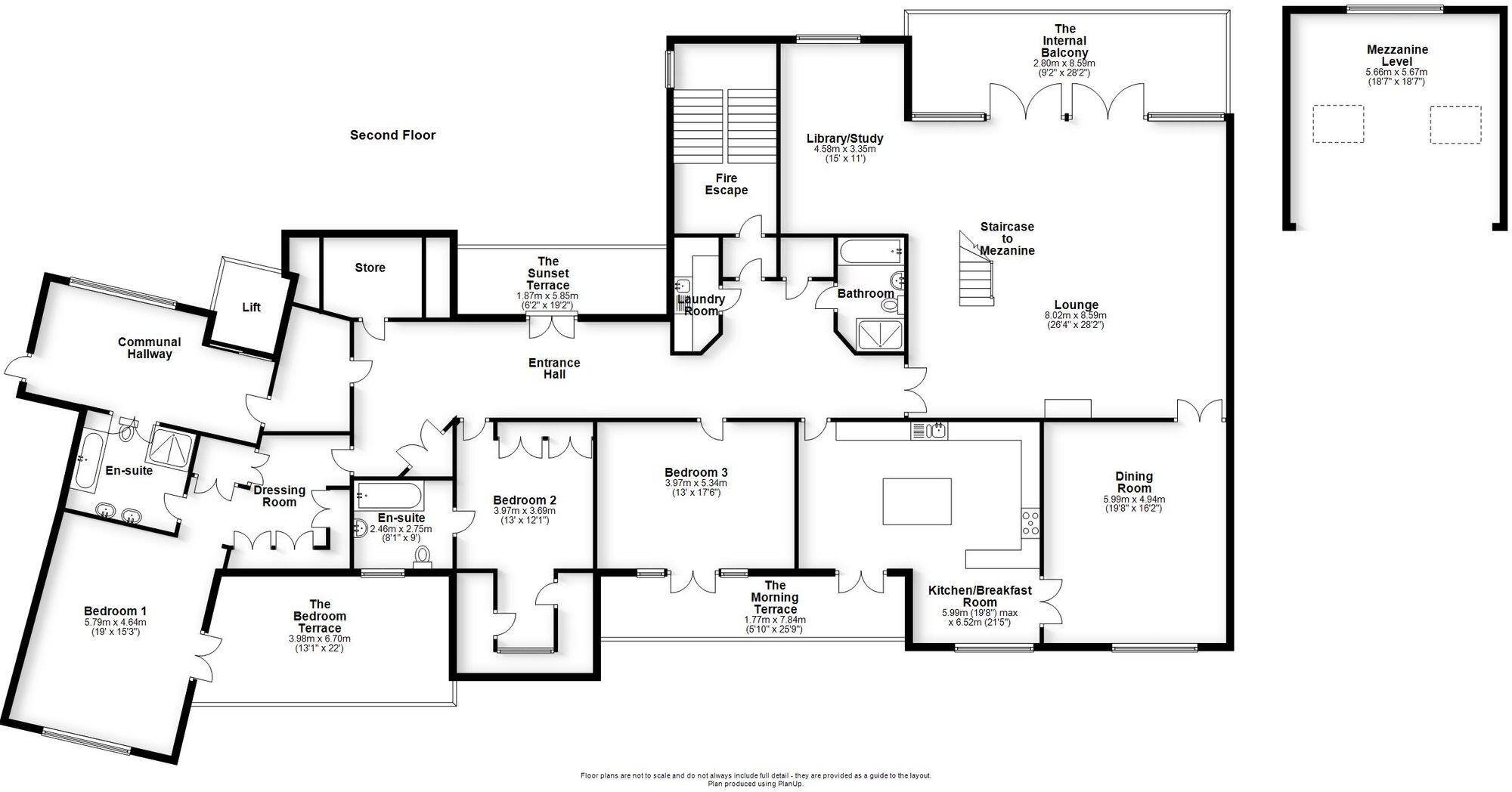
Langley Manor is a substantial apartment located in the desirable Beckenham area of Bromley, South East London. The property benefits from excellent transport links with several Southeastern train stations within a reasonable distance, providing convenient access to central London and other parts of Kent. The property itself is presented in good condition and offers spacious accommodation with three bedrooms and three bathrooms. The apartment features a number of attractive features, including high ceilings, exposed beams, and a large living area. The property also benefits from two private terraces, one of which overlooks a tranquil pond. Given the size, location, and amenities, the list price of £1,750,000 appears to be in line with or slightly above the average price for similar properties in the area. However, a lack of plot size data prevents a more definitive assessment of value.
Therefore, we give this property 7 / 10. *Disclaimer: This is our option and does constitute a recommendation or financial advice. Do your own research. *
- Price
- 7
- Condition
- 9
- Location
- 9
- Land
- 3
- Bedrooms
- 3
- Bathrooms
- 3
- Sqft (est)
- 4,038.26
The heatmap indicates the level of crime in the area. The color of the heatmap indicates the crime severity and recency.
Metrics Year-on-Year
- Average area value
- 750,000.00 £Increased by 5.57 %
- Est sale value
- 2,241,234.30 £Increased by 5.71 %
- Average area rental value
- 1,775.00 £/moDecreased by 23.52 %
- Est letting value
- 4,038.26 £/moUnchanged by 0.00 %
- Est rental Yield
- 2.84 %Decreased by 27.55 %
- Crime Rate
- 1.00 %Unchanged by 0.00 %
Agent Activity
Allen Heritage created the listing.
Nearby Schools
| Name | Type | Ofsted | Distance |
|---|---|---|---|
| Langley Park School For Girls | Academy Converter | Good | 0.59 KM |
| Langley Park Primary School | Free Schools | Good | 0.65 KM |
| Unicorn Primary School | Academy Converter | Good | 0.74 KM |
| Langley Park School For Boys | Academy Converter | Good | 0.84 KM |
| St David'S Prep | Other Independent School | 1.20 KM |
Images
Nearby Streets
| Name | Average Price | Average Sqft | Distance |
|---|---|---|---|
| Bramble Close | £ 0 | 0 | 0.00 KM |
| Saint Martin's Lane | £ 842,500 | 0 | 0.00 KM |
| Nero Way | £ 0 | 0 | 0.00 KM |
| Hawksbrook Lane | £ 0 | 0 | 0.00 KM |
| Quinton Close | £ 0 | 0 | 0.00 KM |
Nearby Transport
| Name | NLC | TLC | Distance |
|---|---|---|---|
| West Wickham | 5054 | WWI | 1.24 KM |
| Eden Park | 5056 | EDN | 1.34 KM |
| Shortlands | 5084 | SRT | 2.33 KM |
| Beckenham Junction | 5046 | BKJ | 2.44 KM |
| Ravensbourne | 5083 | RVB | 2.54 KM |
Nearby Listings
| Address | Price | Type | Score | Distance |
|---|---|---|---|---|
| Langley Manor, Bucknall Way, Beckenham | £ 1,600,000 | BUY | 6 / 10 | 0.00 KM |
| Langley Manor, Bucknall Way, Beckenham | £ 1,750,000 | BUY | 7 / 10 | 0.00 KM |
| Wagtail Walk, Langley Park, Beckenham, BR3 | £ 1,250,000 | BUY | 8 / 10 | 0.21 KM |
| Adamson Way, Beckenham | £ 1,250,000 | BUY | 7 / 10 | 0.23 KM |
| Whitstone Lane, Langley Waterside, Beckenham, BR3 | £ 1,000,000 | BUY | Unknown | 0.26 KM |
Nearby Properties
| Address | Price | Distance |
|---|---|---|
| 1 Acorn Way | £ 1,300,000 | 0.14 KM |
| 2 Acorn Way | £ 1,750,000 | 0.14 KM |
| 8 Limewood Close | £ 1,475,000 | 0.17 KM |
| 27 Limewood Close | £ 1,295,000 | 0.17 KM |
| 18 Limewood Close | £ 620,000 | 0.17 KM |