Fern Lea, Badshot Lea, Farnham, Surrey, GU9
By Warren Powell-Richards
£ 260,000
Reviews
3 out of 5 stars
Warren Powell-Richards says ..
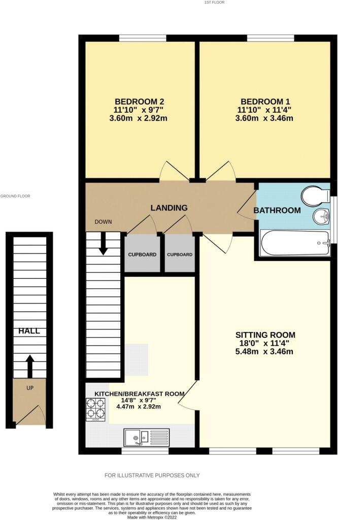
Presented to the market with no onward chain, this two double bedroom first floor maisonette is situated 1.5 miles from the closest train station with direct links to London Waterloo. Internally, the property comprises a kitchen/breakfast room, spacious living room, two double bedrooms and ...
Property Oracle says ..
This is a 2-bedroom apartment located in Farnham, Surrey. The property appears to be in good condition and is situated in a convenient location, close to schools and local amenities. While it may not have a large garden, the interior space seems well-maintained and modern. The price appears to be in line with similar properties in the area, making it a potentially good value for money.
Therefore, we give this property 6 / 10. *Disclaimer: This is our option and does constitute a recommendation or financial advice. Do your own research. *
- Price
- 7
- Condition
- 8
- Location
- 7
- Land
- 3
- Bedrooms
- 2
- Bathrooms
- 1
The heatmap indicates the level of crime in the area. The color of the heatmap indicates the crime severity and recency.
Metrics Year-on-Year
- Average area value
- 272,143.00 £Decreased by 0.84 %
- Average area rental value
- 950.00 £/moDecreased by 12.68 %
- Est rental Yield
- 4.19 %Decreased by 11.97 %
- Crime Rate
- 9.00 %Unchanged by 0.00 %
Agent Activity
Warren Powell-Richards created the listing.
Nearby Schools
| Name | Type | Ofsted | Distance |
|---|---|---|---|
| Badshot Lea Village Infant School | Community School | Good | 0.16 KM |
| Sunflowers Children'S Centre | Children's Centre Linked Site | 1.03 KM | |
| St Michael'S Church Of England Controlled Infant School | Voluntary Controlled School | Outstanding | 1.05 KM |
| St Joseph'S Catholic Primary School | Academy Converter | Outstanding | 1.10 KM |
| Park Primary School | Community School | Good | 1.20 KM |
Images
Nearby Streets
| Name | Average Price | Average Sqft | Distance |
|---|---|---|---|
| The Alders | £ 0 | 0 | 0.00 KM |
| Little Acres Place | £ 0 | 0 | 0.00 KM |
| Glebe Close | £ 0 | 0 | 0.00 KM |
| Larkspur Close | £ 0 | 0 | 0.00 KM |
| Croft Road | £ 0 | 0 | 0.00 KM |
Nearby Transport
| Name | NLC | TLC | Distance |
|---|---|---|---|
| Aldershot | 5623 | AHT | 1.74 KM |
| Farnham | 5545 | FNH | 4.03 KM |
| Ash | 5641 | ASH | 5.77 KM |
| North Camp | 5636 | NCM | 6.02 KM |
| Ash Vale | 5547 | AHV | 6.37 KM |
Nearby Listings
| Address | Price | Type | Score | Distance |
|---|---|---|---|---|
| Fern Lea, Badshot Lea, Farnham, Surrey, GU9 | £ 260,000 | BUY | 6 / 10 | 0.00 KM |
| Badshot Lea Road, Badshot Lea, Farnham | £ 300,000 | BUY | Unknown | 0.05 KM |
| Badshot Lea Road, Badshot Lea, Farnham, Surrey, GU9 | £ 325,000 | BUY | 7 / 10 | 0.05 KM |
| Fern Lea, Badshot Lea, Farnham, Surrey, GU9 | £ 385,000 | BUY | 6 / 10 | 0.06 KM |
| St. Georges Road, Badshot Lea, Farnham, Surrey, GU9 | £ 425,000 | BUY | 6 / 10 | 0.07 KM |
Nearby Properties
| Address | Price | Distance |
|---|---|---|
| 30 Badshot Lea Road | £ 253,000 | 0.05 KM |
| 28 Badshot Lea Road | £ 215,000 | 0.05 KM |
| 24 Badshot Lea Road | £ 290,000 | 0.05 KM |
| 18 Badshot Lea Road | £ 249,000 | 0.05 KM |
| 44 Badshot Lea Road | £ 316,500 | 0.05 KM |