Co-Operative Street, Sheringham
By Arnolds Keys
£ 325,000
Reviews
2 out of 5 stars
Arnolds Keys says ..
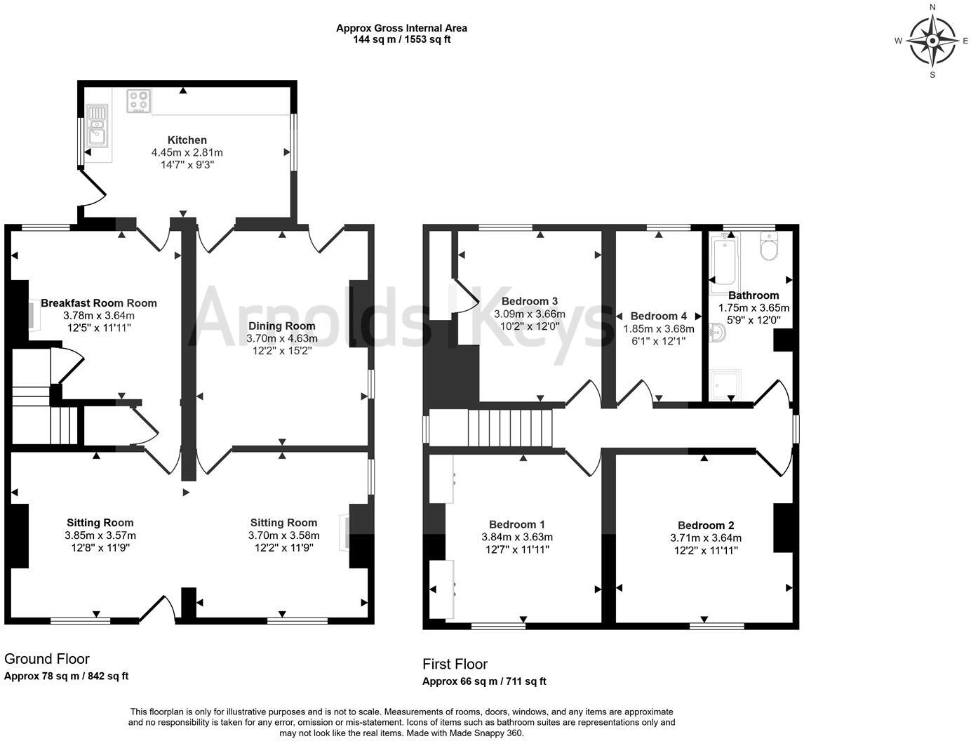
Offered with no onward chain is this detached property set in the heart of the Town close to the shops and beach. The property was formerly two cottages but converted to one large dwelling many years ago. The property does need updating and this is reflected in the Guide Price, however ...
Property Oracle says ..
The property is located in a convenient coastal town with good transport links and nearby schools. However, it is in need of significant modernisation and updating, impacting its overall value. The relatively small plot size is also a factor to consider. The price point requires careful consideration given the property’s condition and features.
Therefore, we give this property 5 / 10. *Disclaimer: This is our option and does constitute a recommendation or financial advice. Do your own research. *
- Price
- 5
- Condition
- 4
- Location
- 8
- Land
- 3
- Bedrooms
- 4
- Bathrooms
- 1
- Sqft (est)
- 1,245.06
- Lot (est)
- 842.00
The heatmap indicates the level of crime in the area. The color of the heatmap indicates the crime severity and recency.
Metrics Year-on-Year
- Average area value
- 348,333.00 £Increased by 12.03 %
- Est sale value
- 555,296.76 £Increased by 35.98 %
- Average area rental value
- 1,250.00 £/moIncreased by 19.39 %
- Est letting value
- 1,245.06 £/moUnchanged by 0.00 %
- Est rental Yield
- 4.31 %Increased by 6.68 %
- Crime Rate
- 66.00 %Unchanged by 0.00 %
Agent Activity
Arnolds Keys created the listing.
Nearby Schools
| Name | Type | Ofsted | Distance |
|---|---|---|---|
| Sheringham Community Primary School | Community School | Good | 1.62 KM |
| Sheringham High School | Academy Converter | Good | 1.85 KM |
| Sheringham Woodfields School | Foundation Special School | Outstanding | 1.88 KM |
| Beeston Hall School | Other Independent School | 2.44 KM | |
| St Andrew'S School | Other Independent Special School | Good | 3.03 KM |
Images
Nearby Streets
| Name | Average Price | Average Sqft | Distance |
|---|---|---|---|
| Promenade | £ 390,000 | 0 | 0.00 KM |
| Heath Road | £ 0 | 0 | 0.00 KM |
| Garden Road | £ 0 | 0 | 0.00 KM |
| Huntley Crescent | £ 198,750 | 0 | 0.00 KM |
| Hadley Road | £ 0 | 0 | 0.00 KM |
Nearby Transport
| Name | NLC | TLC | Distance |
|---|---|---|---|
| Sheringham | 7319 | SHM | 0.41 KM |
| West Runton | 7329 | WRN | 3.72 KM |
| Cromer | 7295 | CMR | 8.97 KM |
Nearby Listings
| Address | Price | Type | Score | Distance |
|---|---|---|---|---|
| Co-Operative Street, Sheringham | £ 325,000 | BUY | 5 / 10 | 0.00 KM |
| Angel Yard, Sheringham | £ 250,000 | BUY | 5 / 10 | 0.03 KM |
| Angel Yard new, Sheringham | £ 285,000 | BUY | Unknown | 0.04 KM |
| Sheringham | £ 375,000 | BUY | 8 / 10 | 0.07 KM |
| Sheringham | £ 475,000 | BUY | Unknown | 0.10 KM |
Nearby Properties
| Address | Price | Distance |
|---|---|---|
| 6 Whitehall Yard | £ 155,000 | 0.01 KM |
| 2 Whitehall Yard | £ 190,000 | 0.02 KM |
| 9 Whitehall Yard | £ 69,950 | 0.02 KM |
| 1 Whitehall Yard | £ 242,500 | 0.02 KM |
| 15 Co Operative Street | £ 79,000 | 0.03 KM |