Heyes Lane, Alderley Edge, SK9
By Michael J Chapman
£ 550,000
Reviews
3 out of 5 stars
Michael J Chapman says ..
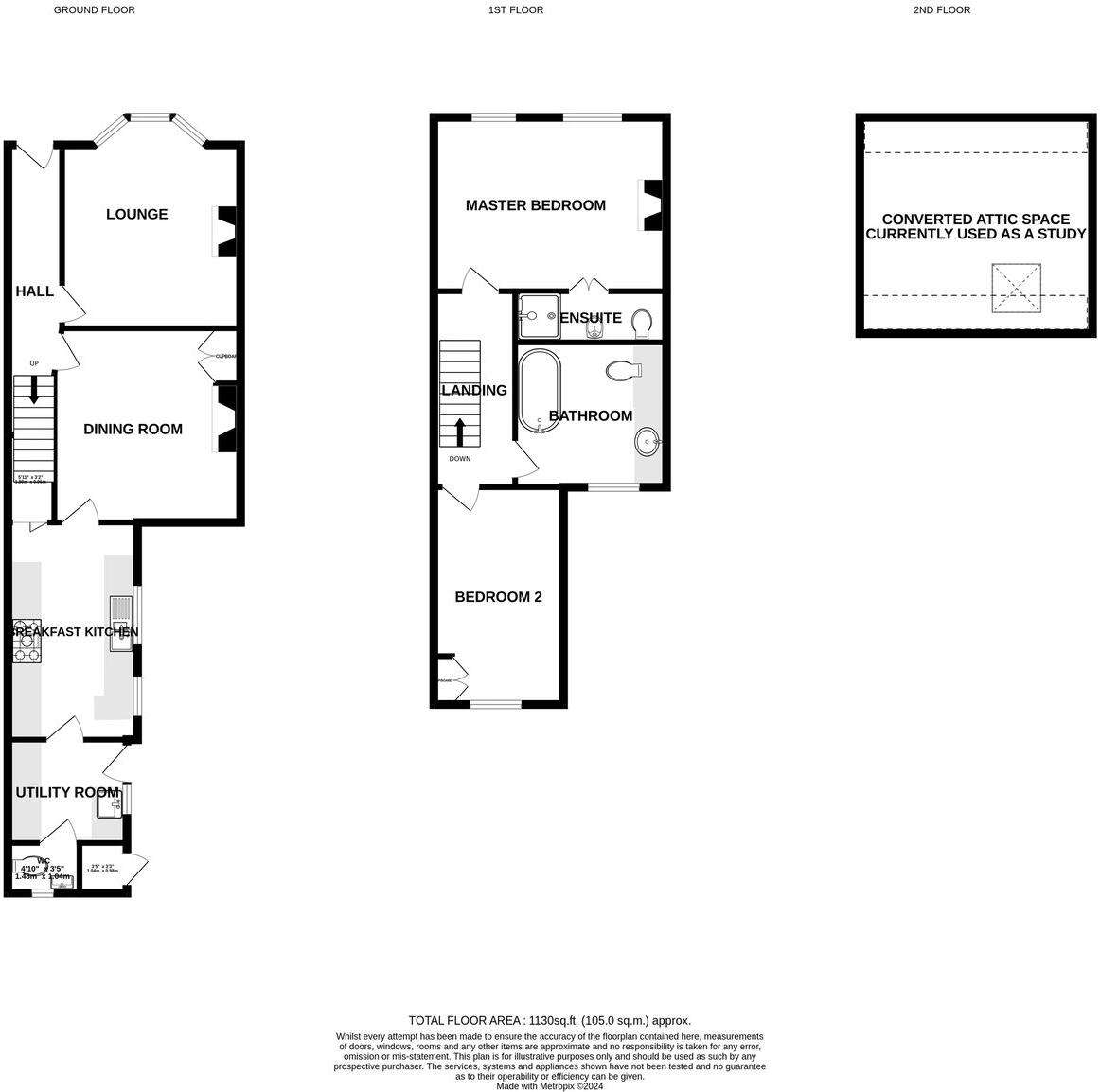
A beautifully refurbished 2-bed, 2-bath period terrace in Alderley Edge, offering 1,130 sq ft. Features include lounge with fireplace, dining room with stove, bespoke kitchen, and attic office. Driveway, courtyard, and garden with stunning countryside views towards The Edge.
Property Oracle says ..
This terraced property on Heyes Lane, Alderley Edge, offers a blend of traditional charm and modern updates. The location is a strong selling point, being situated in a sought-after area with good access to schools and transport. While the property is generally well-maintained, some areas could benefit from cosmetic improvements to fully realize its potential. The garden provides outdoor space, adding to the property’s appeal. Considering the location and condition, the asking price seems reasonable, though slightly above the average price per square foot for the area. Overall, this property presents a solid opportunity for prospective buyers looking for a home in a prime location.
Therefore, we give this property 6 / 10. *Disclaimer: This is our option and does constitute a recommendation or financial advice. Do your own research. *
- Price
- 7
- Condition
- 7
- Location
- 7
- Land
- 5
- Bedrooms
- 2
- Bathrooms
- 2
- Sqft (est)
- 1,130.00
The heatmap indicates the level of crime in the area. The color of the heatmap indicates the crime severity and recency.
Metrics Year-on-Year
- Average area value
- 430,000.00 £Decreased by 45.17 %
- Est sale value
- 348,040.00 £Decreased by 45.87 %
- Average area rental value
- 4,000.00 £/moIncreased by 70.00 %
- Est letting value
- 2,260.00 £/moIncreased by 100.00 %
- Est rental Yield
- 11.16 %Increased by 210.00 %
- Crime Rate
- 16.00 %Unchanged by 0.00 %
Agent Activity
Michael J Chapman created the listing.
Nearby Schools
| Name | Type | Ofsted | Distance |
|---|---|---|---|
| Alderley Edge School For Girls | Other Independent School | 1.13 KM | |
| Alderley Edge Community Primary School | Community School | Outstanding | 1.32 KM |
| Wilmslow High School | Community School | Good | 1.75 KM |
| The Ryleys School | Other Independent School | 1.80 KM | |
| Wilmslow Preparatory School | Other Independent School | 2.37 KM |
Images
Nearby Streets
| Name | Average Price | Average Sqft | Distance |
|---|---|---|---|
| Oakfield Close | £ 0 | 0 | 0.00 KM |
| Marlborough Avenue | £ 1,000,000 | 0 | 0.00 KM |
| Underwood Road | £ 0 | 0 | 0.00 KM |
| Greystoke Drive | £ 0 | 0 | 0.00 KM |
| West Bank | £ 0 | 0 | 0.00 KM |
Nearby Transport
| Name | NLC | TLC | Distance |
|---|---|---|---|
| Alderley Edge | 2760 | ALD | 1.01 KM |
| Wilmslow | 2774 | WML | 2.27 KM |
| Handforth | 2767 | HTH | 4.72 KM |
| Styal | 2868 | SYA | 4.84 KM |
| Heald Green | 2860 | HDG | 7.06 KM |
Nearby Listings
| Address | Price | Type | Score | Distance |
|---|---|---|---|---|
| Heyes Lane, Alderley Edge, SK9 | £ 550,000 | BUY | 6 / 10 | 0.00 KM |
| Heyes Lane, Alderley Edge | £ 899,950 | BUY | 9 / 10 | 0.06 KM |
| Moss Road, Alderley Edge, Cheshire, SK9 | £ 1,200,000 | BUY | Unknown | 0.07 KM |
| Heyes Lane, Alderley Edge, Cheshire, SK9 | £ 975,000 | BUY | 8 / 10 | 0.07 KM |
| Heyes Lane, Alderley Edge, SK9 | £ 615,000 | BUY | 7 / 10 | 0.10 KM |
Nearby Properties
| Address | Price | Distance |
|---|---|---|
| 118 Heyes Lane | £ 242,000 | 0.06 KM |
| 94 Heyes Lane | £ 430,000 | 0.06 KM |
| 72 Heyes Lane | £ 635,000 | 0.06 KM |
| 74 Heyes Lane | £ 700,000 | 0.06 KM |
| 76 Heyes Lane | £ 1,360,100 | 0.07 KM |