Two Building Plots, To The South Of Old Victorian School, Stepaside
By Guy Thomas & Co
£ 125,000
Guy Thomas & Co says ..
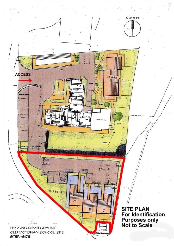
Preliminary Brochure<br /><br /><b>GENERAL</b> <br />The availability of this Site/Plot(s) in Stepaside provides a rare opportunity for both developers and/or "Self Builders".<br /><br />The Old Victorian School has been converted into seven Apartments. There is also a Terrace of three Cottages. Stepaside itself is adjacent to but not within the stunning southern section of the Pembrokeshire Coast National Park and the beach at Wiseman's Bridge is within walking distance along the beautiful Pleasant Valley.<br /><br /><b>PLANNING</b> <br />The existing permission is for Three Terraced Houses. This 2011 consent (Ref: 10/1309/PA) has been retained as the service road has been constructed (tbc). If the Site is developed as Three Terraced Houses, no Section 106 Payment or the like is required.<br /><br />However, the Site has potential for development as 2 Detached Houses or a large Detached House. In these cases, a Section 106 Payment may be required.<br /><br />* Interested parties must make their own enquiries with the Planning Department of Pembrokeshire County Council on 01437-764551.<br /><br /><b>ACCESS</b> <br />This will be via the existing access from the north-west corner of the Former School.<br /><br /><b>DRAINAGE</b> <br />Foul - "Brown" re WCs - to a cesspit lower south side of the Site. Will need to be emptied periodically but will be well positioned for possible future connection to the mains sewer if brought to Stepaside.<br />"Grey" - re sinks, baths and washing machines etc - to holding tank then filtered and discharged to soakaway (see below).<br /><br />Storm Water - Soakaway (see above).<br /><br />* Whether the Site/Plot(s) is developed as one, two or three Houses, there will be just one cesspit, one holding tank and one soakaway. A Management Company or the like will be created in order to administer the shared arrangement (tbc).<br /><br /><b>TENURE</b> <br />We understand that this is Freehold.<br /><br /><b>DIRECTIONS</b> <br />From the Kilgetty Roundabout proceed east along the A477T and take the first turning on the right hand side down to Stepaside. Turn left immediately after a small Block of Flats. This road swings up to the right hand side where the Old Victorian School will be found on the right. The Plots are to the lower south side of the Former School.<br /><br />
- Bedrooms
- 0
- Bathrooms
- 0
The heatmap indicates the level of crime in the area. The color of the heatmap indicates the crime severity and recency.
Metrics Year-on-Year
- Average area value
- 278,905.00 £Increased by 2.67 %
- Average area rental value
- 800.00 £/moDecreased by 34.53 %
- Est rental Yield
- 3.44 %Decreased by 36.30 %
- Crime Rate
- 16.00 %Unchanged by 0.00 %
Agent Activity
Guy Thomas & Co created the listing.
Nearby Schools
| Name | Type | Ofsted | Distance |
|---|---|---|---|
| Stepaside C.P. School | Welsh Establishment | 1.52 KM | |
| Saundersfoot C.P. School | Welsh Establishment | 2.75 KM | |
| Templeton C.P. School | Welsh Establishment | 5.73 KM | |
| St Teilos V.R.C. School | Welsh Establishment | 7.14 KM | |
| The Greenhill School | Welsh Establishment | 7.41 KM |
Images
Nearby Streets
| Name | Average Price | Average Sqft | Distance |
|---|---|---|---|
| Brook Cottages | £ 0 | 0 | 0.00 KM |
| Ivy Chimney Lane | £ 0 | 0 | 0.00 KM |
| Heritage View | £ 210,000 | 0 | 0.00 KM |
| New Buildings | £ 0 | 0 | 0.00 KM |
| Saint Mary's Place | £ 0 | 0 | 0.00 KM |
Nearby Transport
| Name | NLC | TLC | Distance |
|---|---|---|---|
| Kilgetty | 4083 | KGT | 1.92 KM |
| Saundersfoot | 4108 | SDF | 2.65 KM |
| Tenby | 4110 | TEN | 7.31 KM |
| Narberth | 4098 | NAR | 7.45 KM |
| Penally | 4129 | PNA | 9.18 KM |
Nearby Listings
| Address | Price | Type | Score | Distance |
|---|---|---|---|---|
| Two Building Plots, To The South Of Old Victorian School, Stepaside | £ 125,000 | COMMERCIAL_BUY | Unknown | 0.00 KM |
Nearby Properties
| Address | Price | Distance |
|---|---|---|
| 4 Clos Yr Ysgol | £ 270,000 | 0.07 KM |
| 3 Clos Yr Ysgol | £ 172,000 | 0.07 KM |
| 6 Clos Yr Ysgol | £ 295,000 | 0.07 KM |
| Lindsway | £ 245,000 | 0.17 KM |
| Dobbin Walls | £ 277,000 | 0.17 KM |