Beech Way, Basingstoke, Hampshire, RG23
By Bridges Estate Agents
£ 375,000
Reviews
2 out of 5 stars
Bridges Estate Agents says ..
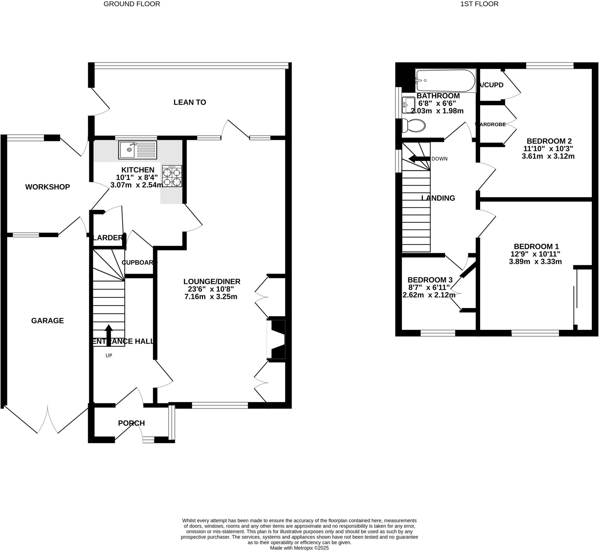
Offered to the market with no chain, this three bedroom semi-detached property is in need of refurbishment, presenting a great opportunity to personalize and enhance the space. Located in the popular Clarke Estate on the east side of Basingstoke, the property features a spacious lounge/dining roo...
Property Oracle says ..
This semi-detached property in Basingstoke is listed at £375,000. The property is situated in the Winklebury & Manydown area, close to local schools and Basingstoke train station. While the location is convenient, the property itself appears to be in need of modernisation and updating. The images show dated interiors and a garden that requires attention. Compared to nearby properties, the price seems slightly higher considering the condition and the relatively small plot size. The average price per sqft in the area is £431, while this property is significantly smaller than the average and needs updating. Therefore, a potential buyer should factor in renovation costs when considering the overall value.
Therefore, we give this property 5 / 10. *Disclaimer: This is our option and does constitute a recommendation or financial advice. Do your own research. *
- Price
- 6
- Condition
- 4
- Location
- 7
- Land
- 5
- Bedrooms
- 3
- Bathrooms
- 1
- Sqft (est)
- 882.21
The heatmap indicates the level of crime in the area. The color of the heatmap indicates the crime severity and recency.
Metrics Year-on-Year
- Average area value
- 1,258,750.00 £Increased by 38.62 %
- Est sale value
- 519,621.69 £Decreased by 3.13 %
- Average area rental value
- 2,017.00 £/moDecreased by 42.17 %
- Est letting value
- 0.00 £/moDecreased by 100.00 %
- Est rental Yield
- 1.92 %Decreased by 58.35 %
- Crime Rate
- 2.00 %Unchanged by 0.00 %
Agent Activity
Bridges Estate Agents marked this listing as sold.
Bridges Estate Agents created the listing.
Nearby Schools
| Name | Type | Ofsted | Distance |
|---|---|---|---|
| Saxon Wood School | Community Special School | Good | 0.66 KM |
| Castle Hill Infant School | Community School | Outstanding | 0.68 KM |
| Castle Hill Primary School | Community School | Good | 0.70 KM |
| Winklebury Infant School | Community School | Good | 1.06 KM |
| Winklebury Junior School | Community School | Good | 1.10 KM |
Images
Nearby Streets
| Name | Average Price | Average Sqft | Distance |
|---|---|---|---|
| Kenilworth Road | £ 0 | 0 | 0.00 KM |
| Nightingale Gardens | £ 240,000 | 0 | 0.00 KM |
| Spinney Mew | £ 300,000 | 0 | 0.00 KM |
| Furzelea Road | £ 450,000 | 0 | 0.00 KM |
| Ashwood Way | £ 0 | 0 | 0.00 KM |
Nearby Transport
| Name | NLC | TLC | Distance |
|---|---|---|---|
| Basingstoke | 5520 | BSK | 4.22 KM |
| Bramley (Hampshire) | 5500 | BMY | 9.43 KM |
Nearby Listings
| Address | Price | Type | Score | Distance |
|---|---|---|---|---|
| Beech Way, Basingstoke, Hampshire, RG23 | £ 375,000 | BUY | 5 / 10 | 0.00 KM |
| Beech Way, Basingstoke | £ 500,000 | BUY | 7 / 10 | 0.07 KM |
| Winklebury | £ 450,000 | BUY | 7 / 10 | 0.10 KM |
| Beech Way, Basingstoke, Hampshire, RG23 | £ 450,000 | BUY | 7 / 10 | 0.11 KM |
| Oaklands Way, Basingstoke | £ 375,000 | BUY | 6 / 10 | 0.14 KM |
Nearby Properties
| Address | Price | Distance |
|---|---|---|
| 63 Beech Way | £ 267,000 | 0.11 KM |
| 69 Beech Way | £ 355,000 | 0.11 KM |
| 81 Beech Way | £ 385,000 | 0.11 KM |
| 85 Beech Way | £ 240,000 | 0.11 KM |
| 61 Beech Way | £ 202,000 | 0.11 KM |