Joseph Scott says ..
Looking for a laid-back and charming family home that's as peaceful as it is convenient?
Property Oracle says ..
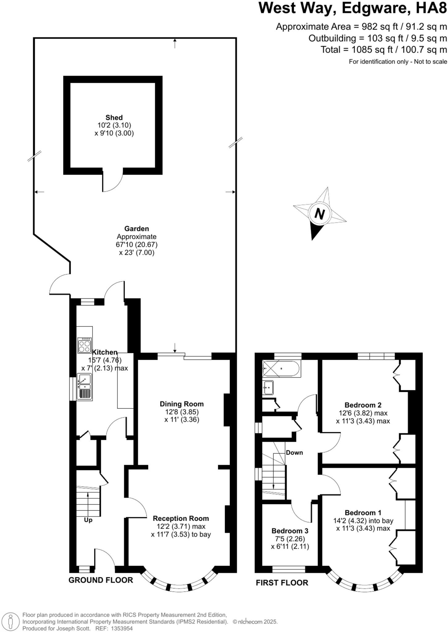
This is a three-bedroom semi-detached house located on West Way in Edgware. The property offers 1,085 sqft of living space and includes a garden. The house is situated in a convenient location, with access to nearby schools and transportation. The interior of the property is in generally good condition, although some areas could benefit from modernisation. The property is listed for £650,000, which is slightly above the average price per square foot for the area, but is justified by the overall condition and features of the house.
Therefore, we give this property 7 / 10. *Disclaimer: This is our option and does constitute a recommendation or financial advice. Do your own research. *
- Price
- 7
- Condition
- 7
- Location
- 7
- Land
- 8
- Bedrooms
- 3
- Bathrooms
- 1
- Sqft (est)
- 1,085.00
The heatmap indicates the level of crime in the area. The color of the heatmap indicates the crime severity and recency.
Metrics Year-on-Year
- Average area value
- 758,663.00 £Increased by 3.95 %
- Est sale value
- 516,460.00 £Decreased by 26.99 %
- Average area rental value
- 2,364.00 £/moDecreased by 11.43 %
- Est letting value
- 1,085.00 £/moDecreased by 50.00 %
- Est rental Yield
- 3.74 %Decreased by 14.81 %
- Crime Rate
- 4.00 %Unchanged by 0.00 %
Agent Activity
Joseph Scott created the listing.
Nearby Schools
| Name | Type | Ofsted | Distance |
|---|---|---|---|
| Watling Park School | Free Schools | Good | 0.56 KM |
| Menorah Grammar School | Other Independent School | Inadequate | 0.71 KM |
| Menorah Foundation School | Voluntary Aided School | Good | 0.71 KM |
| Beit Shvidler Primary School | Voluntary Aided School | Good | 0.71 KM |
| Edgware Primary School | Community School | Good | 0.82 KM |
Images
Nearby Streets
| Name | Average Price | Average Sqft | Distance |
|---|---|---|---|
| Langham Road | £ 350,000 | 0 | 0.00 KM |
| Compton Close | £ 339,000 | 0 | 0.00 KM |
| Station Road | £ 0 | 0 | 0.00 KM |
| A5 | £ 441,650 | 0 | 0.00 KM |
| Burnt Oak Broadway | £ 0 | 0 | 0.00 KM |
Nearby Transport
| Name | NLC | TLC | Distance |
|---|---|---|---|
| Mill Hill Broadway | 1527 | MIL | 2.11 KM |
| Elstree And Borehamwood | 1542 | ELS | 4.69 KM |
| Hendon | 1522 | HEN | 4.88 KM |
| Kenton | 1399 | KNT | 6.38 KM |
| South Kenton | 1453 | SOK | 6.48 KM |
Nearby Listings
| Address | Price | Type | Score | Distance |
|---|---|---|---|---|
| West Way, Edgware, HA8 | £ 650,000 | BUY | 7 / 10 | 0.00 KM |
| West Way, Edgware, Middlesex, HA8 | £ 800,000 | BUY | 7 / 10 | 0.06 KM |
| West Way, Edgware, HA8 | £ 650,000 | BUY | Unknown | 0.07 KM |
| West Way, Edgware, HA8 | £ 599,950 | BUY | Unknown | 0.07 KM |
| Farm Road, Edgware, HA8 | £ 675,000 | BUY | 6 / 10 | 0.18 KM |
Nearby Properties
| Address | Price | Distance |
|---|---|---|
| 32 West Way | £ 395,000 | 0.04 KM |
| 42 West Way | £ 250,000 | 0.04 KM |
| 20 West Way | £ 600,000 | 0.04 KM |
| 40 West Way | £ 295,000 | 0.04 KM |
| 22 West Way | £ 585,000 | 0.04 KM |