The Refinery, Jacob Street, Bristol BS2
By Newman Property Experts
£ 160,000
Reviews
3 out of 5 stars
Newman Property Experts says ..
Sold via Secure Sale online bidding. Terms & Conditions apply. Starting Bid £160,000. Spacious refurbished 1-bed in historic Refinery with large open-plan living in prime Old Market
Property Oracle says ..
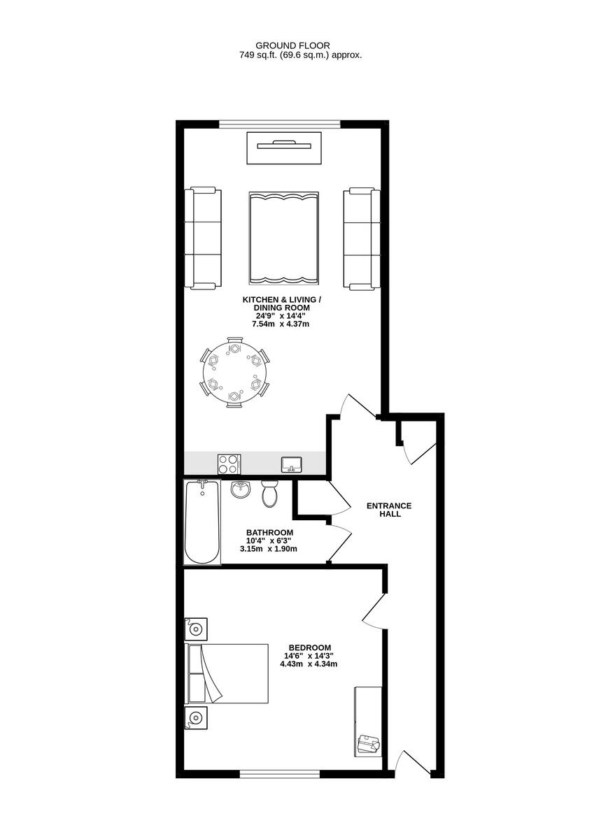
This is a one-bedroom apartment located in The Refinery, Jacob Street, Bristol. The property is listed for £160,000 and has a square footage of 749.17 sqft. The apartment appears to be in good condition, with modern interiors. The location is convenient, with proximity to transportation and local amenities. While there is some communal garden space, the property doesn’t have a private garden. Considering the location, condition, and size, the price seems reasonable compared to other properties in the area. The property is modern and doesn’t appear to need renovation.
Therefore, we give this property 7 / 10. *Disclaimer: This is our option and does constitute a recommendation or financial advice. Do your own research. *
- Price
- 9
- Condition
- 8
- Location
- 7
- Land
- 4
- Bedrooms
- 1
- Bathrooms
- 1
- Sqft (est)
- 749.17
The heatmap indicates the level of crime in the area. The color of the heatmap indicates the crime severity and recency.
Metrics Year-on-Year
- Average area value
- 250,313.00 £Decreased by 14.86 %
- Est sale value
- 307,159.70 £Increased by 4.86 %
- Average area rental value
- 1,834.00 £/moIncreased by 13.07 %
- Est letting value
- 2,247.51 £/moIncreased by 50.00 %
- Est rental Yield
- 8.79 %Increased by 32.78 %
- Crime Rate
- 6.00 %Unchanged by 0.00 %
Agent Activity
Newman Property Experts created the listing.
Nearby Schools
| Name | Type | Ofsted | Distance |
|---|---|---|---|
| Andalusia Academy Bristol | Other Independent School | Inadequate | 0.15 KM |
| Rosemary Early Years Centre | Children's Centre | 0.33 KM | |
| Rosemary Nursery School And Children'S Centre | Local Authority Nursery School | Outstanding | 0.33 KM |
| Hannah More Primary School | Community School | Good | 0.35 KM |
| St Nicholas Of Tolentine Catholic Primary School | Academy Converter | Special Measures | 0.76 KM |
Images
Nearby Streets
| Name | Average Price | Average Sqft | Distance |
|---|---|---|---|
| Temple Way | £ 0 | 0 | 0.00 KM |
| Temple Way Underpass | £ 0 | 0 | 0.00 KM |
| Saint Matthias Park | £ 0 | 0 | 0.00 KM |
| Babers Walk | £ 0 | 0 | 0.00 KM |
| Unity Street | £ 280,000 | 0 | 0.00 KM |
Nearby Transport
| Name | NLC | TLC | Distance |
|---|---|---|---|
| Bristol Temple Meads | 3231 | BRI | 0.70 KM |
| Montpelier | 3203 | MTP | 1.62 KM |
| Lawrence Hill | 3225 | LWH | 1.96 KM |
| Bedminster | 3245 | BMT | 2.18 KM |
| Stapleton Road | 3250 | SRD | 2.20 KM |
Nearby Listings
| Address | Price | Type | Score | Distance |
|---|---|---|---|---|
| The Refinery, Jacob Street, Bristol BS2 | £ 160,000 | BUY | 7 / 10 | 0.00 KM |
| Jacob Street, Bristol, BS2 | £ 190,000 | BUY | 6 / 10 | 0.01 KM |
| Jacob Street, BRISTOL, BS2 | £ 270,000 | BUY | 6 / 10 | 0.01 KM |
| Jacob Street, Old Market, Bristol, BS2 | £ 220,000 | BUY | Unknown | 0.01 KM |
| The Refinery, Jacob Street, Bristol, BS2 | £ 210,000 | BUY | 6 / 10 | 0.01 KM |
Nearby Properties
| Address | Price | Distance |
|---|---|---|
| 51 Old Market Street | £ 80,000 | 0.12 KM |
| 42a Old Market Street | £ 60,000 | 0.13 KM |
| 2 Lawford Street | £ 110,000 | 0.25 KM |
| 19a Midland Road | £ 82,500 | 0.30 KM |
| 19b Midland Road | £ 162,170 | 0.30 KM |