Flat 9, 14 Shirley Street, Canning Town, London, E16 1HU
By Auction House London
£ 400,000
Reviews
2 out of 5 stars
Auction House London says ..
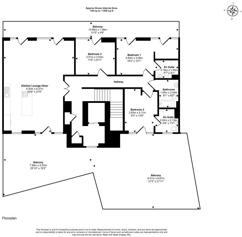
**For Sale By Public Auction 16th October 2025 09:30 AM To inspect the legal documents for this property go to our website to download the legal pack** A Fourth Floor Three Bedroom Flat Subject to a Lease Producing £36,600 Per Annum Long Leasehold. The pr...
Property Oracle says ..
This is a three-bedroom flat located in Canning Town, London. The property is in a modern building and appears to be in generally good condition. It benefits from a large roof terrace. The location is convenient for transportation, with easy access to the Jubilee Line and DLR. Several schools are located nearby. The asking price of £400,000 seems reasonable for the area and the type of property. While the immediate surroundings are not the most attractive, the ongoing regeneration of Canning Town makes this a potentially attractive investment.
Therefore, we give this property 5 / 10. *Disclaimer: This is our option and does constitute a recommendation or financial advice. Do your own research. *
- Price
- 6
- Condition
- 7
- Location
- 6
- Land
- 3
- Bedrooms
- 3
- Bathrooms
- 0
The heatmap indicates the level of crime in the area. The color of the heatmap indicates the crime severity and recency.
Metrics Year-on-Year
- Average area value
- 388,267.00 £Decreased by 11.51 %
- Average area rental value
- 2,387.00 £/moIncreased by 9.80 %
- Est rental Yield
- 7.38 %Increased by 24.03 %
- Crime Rate
- 15.00 %Unchanged by 0.00 %
Agent Activity
Auction House London created the listing.
Nearby Schools
| Name | Type | Ofsted | Distance |
|---|---|---|---|
| St Luke'S Primary School | Voluntary Aided School | Good | 0.23 KM |
| Learningsure College | Other Independent School | 0.55 KM | |
| Faraday School | Other Independent School | 0.60 KM | |
| Hallsville Primary School | Academy Converter | 0.61 KM | |
| Rokeby School | Academy Converter | 0.77 KM |
Images
Nearby Streets
| Name | Average Price | Average Sqft | Distance |
|---|---|---|---|
| St Luke's Square | £ 0 | 0 | 0.00 KM |
| Silvertown Way | £ 0 | 0 | 0.00 KM |
| Norah Smyth Road | £ 419,653 | 0 | 0.00 KM |
| Town Place | £ 0 | 0 | 0.00 KM |
| Dock Road | £ 0 | 0 | 0.00 KM |
Nearby Transport
| Name | NLC | TLC | Distance |
|---|---|---|---|
| West Ham | 7474 | WEH | 1.88 KM |
| Westcombe Park | 5151 | WCB | 3.27 KM |
| Maze Hill | 5149 | MZH | 3.51 KM |
| Charlton | 5144 | CTN | 3.61 KM |
| Stratford | 6969 | SRA | 3.64 KM |
Nearby Listings
| Address | Price | Type | Score | Distance |
|---|---|---|---|---|
| Flat 2, 14 Shirley Street, Canning Town, London, E16 1HU | £ 400,000 | BUY | 5 / 10 | 0.00 KM |
| Shirley Street, London, E16 | £ 800,000 | BUY | 5 / 10 | 0.00 KM |
| Flat 9, 14 Shirley Street, Canning Town, London, E16 1HU | £ 400,000 | BUY | 5 / 10 | 0.00 KM |
| Westgate Apartments, Royal Docks, London, E16 | £ 480,000 | BUY | Unknown | 0.06 KM |
| Westgate Apartments, Royal Docks, London, E16 | £ 315,000 | BUY | 6 / 10 | 0.06 KM |
Nearby Properties
| Address | Price | Distance |
|---|---|---|
| 31 Shirley Street | £ 455,000 | 0.01 KM |
| 9 Shirley Street | £ 412,000 | 0.02 KM |
| 7 Shirley Street | £ 110,000 | 0.02 KM |
| 5 Shirley Street | £ 167,500 | 0.02 KM |
| 11 Shirley Street | £ 237,995 | 0.02 KM |