Dalgarno Gardens, London, W10
By Mountgrange Heritage
£ 3,250,000
Reviews
3 out of 5 stars
Mountgrange Heritage says ..
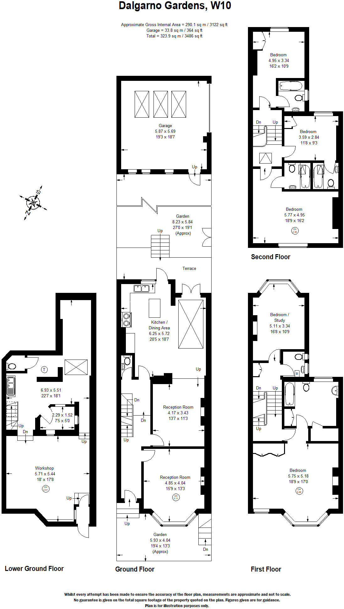
A five bedroom family home, with far reaching views, south-facing garden and double garage in North Kensington.
Property Oracle says ..
This is a substantial period property located in a prime area of London. The house offers ample living space with five bedrooms and four bathrooms, making it suitable for a large family. The modern kitchen and well-proportioned rooms are attractive features. While the property is generally in good condition, some areas could benefit from updating. The garden, although present, requires some attention to enhance its appeal. The location is a major selling point, with proximity to schools, transportation, and green spaces. The price is reflective of the location and size but may be a point of negotiation.
Therefore, we give this property 6 / 10. *Disclaimer: This is our option and does constitute a recommendation or financial advice. Do your own research. *
- Price
- 6
- Condition
- 7
- Location
- 8
- Land
- 6
- Bedrooms
- 5
- Bathrooms
- 4
- Sqft (est)
- 2,112.78
The heatmap indicates the level of crime in the area. The color of the heatmap indicates the crime severity and recency.
Metrics Year-on-Year
- Average area value
- 312,574.00 £Increased by 1.14 %
- Est sale value
- 709,894.08 £Decreased by 47.34 %
- Average area rental value
- 1,096.00 £/moIncreased by 18.74 %
- Est letting value
- 2,112.78 £/moUnchanged by 0.00 %
- Est rental Yield
- 4.21 %Increased by 17.60 %
- Crime Rate
- 3.00 %Unchanged by 0.00 %
Agent Activity
Mountgrange Heritage created the listing.
Nearby Schools
| Name | Type | Ofsted | Distance |
|---|---|---|---|
| Ark Burlington Danes Academy | Academy Sponsor Led | Requires improvement | 0.40 KM |
| St Quintin'S Children'S Centre | Children's Centre | 0.51 KM | |
| Woodlane High School | Community Special School | Outstanding | 0.69 KM |
| Ark Bentworth Primary Academy | Academy Converter | Good | 0.89 KM |
| Oxford Gardens Primary School | Community School | Good | 1.04 KM |
Images
Nearby Streets
| Name | Average Price | Average Sqft | Distance |
|---|---|---|---|
| Brewster Gardens | £ 783,333 | 0 | 0.00 KM |
| Westview Close | £ 0 | 0 | 0.00 KM |
| Scrubs Lane | £ 475,000 | 0 | 0.00 KM |
| Dorando Close | £ 0 | 0 | 0.00 KM |
| Australia Road | £ 0 | 0 | 0.00 KM |
Nearby Transport
| Name | NLC | TLC | Distance |
|---|---|---|---|
| Kensal Green | 1447 | KNL | 1.03 KM |
| Kensal Rise | 1448 | KNR | 1.66 KM |
| Shepherd'S Bush | 9587 | SPB | 2.09 KM |
| Willesden Junction | 1457 | WIJ | 2.28 KM |
| Queens Park (London) | 1419 | QPW | 2.82 KM |
Nearby Listings
| Address | Price | Type | Score | Distance |
|---|---|---|---|---|
| Dalgarno Gardens, London, W10 | £ 3,250,000 | BUY | 6 / 10 | 0.00 KM |
| Brewster Gardens, London | £ 525,000 | BUY | Unknown | 0.08 KM |
| Brewster Gardens, London, W10 | £ 525,000 | BUY | 6 / 10 | 0.09 KM |
| Brewster Gardens, North Kensington | £ 499,000 | BUY | 5 / 10 | 0.09 KM |
| Brewster Gardens, London, W10 | £ 575,000 | BUY | 7 / 10 | 0.10 KM |
Nearby Properties
| Address | Price | Distance |
|---|---|---|
| 48b Dalgarno Gardens | £ 353,000 | 0.07 KM |
| 38 Brewster Gardens | £ 110,000 | 0.07 KM |
| 48 Dalgarno Gardens | £ 1,000 | 0.07 KM |
| 32c Brewster Gardens | £ 164,000 | 0.07 KM |
| 54 Dalgarno Gardens | £ 753,000 | 0.07 KM |